MC
Generator Hall, Electric Wharf, Coventry, CV1
By McGowan Housing
£ 142,000
Reviews
2 out of 5 stars
McGowan Housing says ..
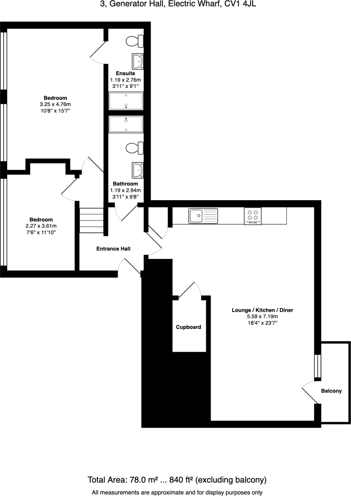
Buy-to-Let Opportunity | Long-Term Tenants Currently Situated | 2 Bedroom Flat | Well Maintained Property | Resident Parking| Two-Piece Bathroom| Easy Access to Local Amenities | Prime Rental Location Within Coventry
Property Oracle says ..
Therefore, we give this property 5 / 10. *Disclaimer: This is our option and does constitute a recommendation or financial advice. Do your own research. *
- Price
- 9
- Condition
- 6
- Location
- 7
- Land
- 1
- Bedrooms
- 2
- Bathrooms
- 2
- Sqft (est)
- 839.59
The heatmap indicates the level of crime in the area. The color of the heatmap indicates the crime severity and recency.
Metrics Year-on-Year
- Average area value
- 302,763.00 £Increased by 41.98 %
- Est sale value
- 285,460.60 £Increased by 53.85 %
- Average area rental value
- 888.00 £/moDecreased by 18.38 %
- Est letting value
- 0.00 £/moDecreased by 100.00 %
- Est rental Yield
- 3.52 %Decreased by 42.48 %
- Crime Rate
- 6.00 %Unchanged by 0.00 %
from 213,239.00 £
from 185,549.39 £
from 1,088.00 £/mo
from 839.59 £/mo
from 6.12 %
from 6.00 %
Agent Activity
McGowan Housing created the listing.
Nearby Schools
| Name | Type | Ofsted | Distance |
|---|---|---|---|
| Barr'S Hill School And Community College | Academy Converter | Good | 0.55 KM |
| Eden Girls' School Coventry | Free Schools | Outstanding | 0.92 KM |
| Bablake Junior And Pre-Prep School | Other Independent School | 0.97 KM | |
| Radford Primary Academy | Academy Sponsor Led | Requires improvement | 1.02 KM |
| Radford Children'S Centre | Children's Centre | 1.03 KM |
Images
Nearby Streets
| Name | Average Price | Average Sqft | Distance |
|---|---|---|---|
| Harnall Lane East | £ 0 | 0 | 0.00 KM |
| Green Park | £ 0 | 0 | 0.00 KM |
| Cook Street | £ 0 | 0 | 0.00 KM |
| Church Street | £ 0 | 0 | 0.00 KM |
| Gas Street | £ 0 | 0 | 0.00 KM |
Nearby Transport
| Name | NLC | TLC | Distance |
|---|---|---|---|
| Coventry | 1030 | COV | 1.91 KM |
| Coventry Arena | 7416 | CAA | 3.86 KM |
| Canley | 1129 | CNL | 4.45 KM |
| Bedworth | 1165 | BEH | 8.43 KM |
| Tile Hill | 1035 | THL | 9.72 KM |
Nearby Listings
| Address | Price | Type | Score | Distance |
|---|---|---|---|---|
| Generator Hall, Electric Wharf, Coventry, CV1 | £ 142,000 | BUY | 5 / 10 | 0.00 KM |
| Electric Wharf, COVENTRY, West Midlands, CV1 | £ 200,000 | BUY | 6 / 10 | 0.00 KM |
| Electric Wharf, Coventry | £ 185,000 | BUY | 6 / 10 | 0.01 KM |
| Electric Wharf, Coventry, West Midlands, CV1 4JU | £ 135,000 | BUY | Unknown | 0.02 KM |
| Turbine Hall, Electric Wharf, Coventry, CV1 | £ 140,000 | BUY | 6 / 10 | 0.04 KM |
Nearby Properties
| Address | Price | Distance |
|---|---|---|
| 34 Widdrington Road | £ 149,000 | 0.06 KM |
| 28 Widdrington Road | £ 95,000 | 0.06 KM |
| 24 Widdrington Road | £ 125,000 | 0.06 KM |
| 70 Widdrington Road | £ 170,001 | 0.06 KM |
| 18 Widdrington Road | £ 88,000 | 0.06 KM |