Mcquades Court, City Centre, York
By Milburns Commercial Ltd
£ 6,250,000
Reviews
3 out of 5 stars
Milburns Commercial Ltd says ..
McQuades Court is a substantial freehold block of apartments, occupying a prime city centre position with a number of apartments enjoying balconies overlooking York’s historic city walls. This is a rare opportunity to acquire a high quality, income producing residential investment within one of t...
Property Oracle says ..
This block of apartments is situated in a prime location in York City Centre, offering substantial square footage. The building appears modern and well-maintained. While the price is high compared to average residential properties in the area, it may be reasonable considering the size, location, and potential commercial use. Nearby schools and transportation links add to the convenience of the location.
Therefore, we give this property 7 / 10. *Disclaimer: This is our option and does constitute a recommendation or financial advice. Do your own research. *
- Price
- 6
- Condition
- 8
- Location
- 9
- Land
- 6
- Bedrooms
- 45
- Bathrooms
- 29
- Sqft (est)
- 64,400.00
The heatmap indicates the level of crime in the area. The color of the heatmap indicates the crime severity and recency.
Metrics Year-on-Year
- Average area value
- 366,047.00 £Decreased by 11.45 %
- Est sale value
- 28,980,000.00 £Increased by 3.21 %
- Average area rental value
- 1,355.00 £/moDecreased by 4.24 %
- Est letting value
- 64,400.00 £/moUnchanged by 0.00 %
- Est rental Yield
- 4.44 %Increased by 8.03 %
- Crime Rate
- 6.00 %Unchanged by 0.00 %
Agent Activity
Milburns Commercial Ltd created the listing.
Nearby Schools
| Name | Type | Ofsted | Distance |
|---|---|---|---|
| Fishergate Primary School | Community School | Good | 0.68 KM |
| St George'S Catholic Primary School - A Catholic Voluntary Academy | Academy Converter | 0.69 KM | |
| St Lawrence'S Children'S Centre | Children's Centre | 0.76 KM | |
| St Lawrence'S Church Of England Primary Academy | Academy Sponsor Led | Requires improvement | 0.76 KM |
| St Wilfrid'S Catholic Primary School - A Catholic Voluntary Academy | Academy Converter | 1.15 KM |
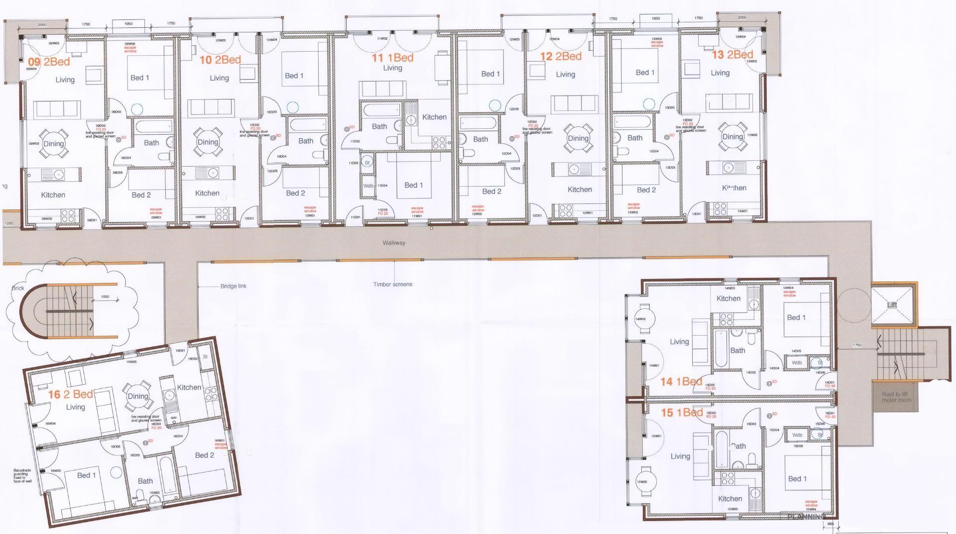
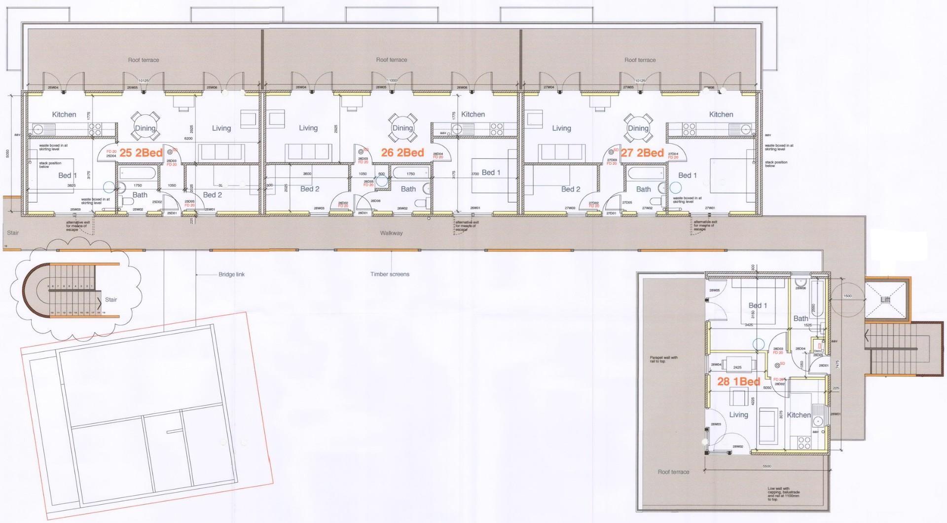
Images
Nearby Streets
| Name | Average Price | Average Sqft | Distance |
|---|---|---|---|
| St Margarets Terrace | £ 0 | 0 | 0.00 KM |
| Lawrence Court | £ 0 | 0 | 0.00 KM |
| James Street | £ 0 | 0 | 0.00 KM |
| Thistleton Court | £ 159,950 | 0 | 0.00 KM |
| Hungate/Leethams Bridge | £ 0 | 0 | 0.00 KM |
Nearby Transport
| Name | NLC | TLC | Distance |
|---|---|---|---|
| York | 8263 | YRK | 2.45 KM |
| Poppleton | 8254 | POP | 8.85 KM |
Nearby Listings
| Address | Price | Type | Score | Distance |
|---|---|---|---|---|
| Mcquades Court, City Centre, York | £ 6,250,000 | BUY | 7 / 10 | 0.00 KM |
| Mcquades Court, York | £ 6,250,000 | BUY | 5 / 10 | 0.03 KM |
| Huby Court, York, YO1 | £ 195,000 | BUY | 6 / 10 | 0.06 KM |
| Navigation Road, York | £ 165,000 | BUY | 6 / 10 | 0.08 KM |
| Navigation Road, York | £ 195,000 | BUY | 5 / 10 | 0.09 KM |
Nearby Properties
| Address | Price | Distance |
|---|---|---|
| 6 Huby Court | £ 180,000 | 0.07 KM |
| 21 Huby Court | £ 120,000 | 0.07 KM |
| 7 Huby Court | £ 174,250 | 0.07 KM |
| 18 Huby Court | £ 134,000 | 0.07 KM |
| 17 Huby Court | £ 167,500 | 0.07 KM |