ST
Ledbury Road, Hereford, HR1
By Stooke Hill & Walshe
£ 150,000
Reviews
3 out of 5 stars
Stooke Hill & Walshe says ..
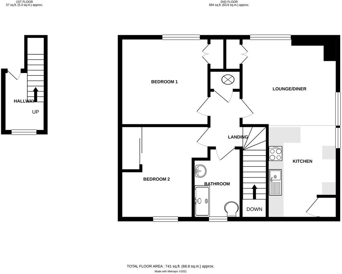
This spacious 2 bedroomed top floor apartment has the benefit of double glazing, electric heating, an allocated parking space, and a private communal garden, situated in a very popular residential area. This property has NO ONWARD CHAIN.
Property Oracle says ..
Therefore, we give this property 6 / 10. *Disclaimer: This is our option and does constitute a recommendation or financial advice. Do your own research. *
- Price
- 4
- Condition
- 8
- Location
- 7
- Land
- 7
- Bedrooms
- 2
- Bathrooms
- 1
- Sqft (est)
- 57.00
- Lot (est)
- 741.00
The heatmap indicates the level of crime in the area. The color of the heatmap indicates the crime severity and recency.
Metrics Year-on-Year
- Average area value
- 225,619.00 £Decreased by 6.60 %
- Est sale value
- 12,369.00 £Decreased by 18.73 %
- Average area rental value
- 850.00 £/moDecreased by 4.92 %
- Est letting value
- 0.00 £/mo
- Est rental Yield
- 4.52 %Increased by 1.80 %
- Crime Rate
- 3.00 %Unchanged by 0.00 %
from 241,550.00 £
from 15,219.00 £
from 894.00 £/mo
from 0.00 £/mo
from 4.44 %
from 3.00 %
Agent Activity
Stooke Hill & Walshe created the listing.
Nearby Schools
| Name | Type | Ofsted | Distance |
|---|---|---|---|
| Hampton Dene Primary School | Community School | Good | 0.60 KM |
| Aylestone School | Community School | Requires improvement | 0.65 KM |
| Broadlands Children Centre | Children's Centre | 0.71 KM | |
| Hereford College Of Arts | Further Education | Good | 0.78 KM |
| The Bishop Of Hereford'S Bluecoat School | Voluntary Aided School | Good | 0.79 KM |
Images
Nearby Streets
| Name | Average Price | Average Sqft | Distance |
|---|---|---|---|
| Lyndhurst Avenue | £ 0 | 0 | 0.00 KM |
| Salisbury Avenue | £ 650,000 | 0 | 0.00 KM |
| Lincoln Close | £ 399,500 | 0 | 0.00 KM |
| Underhill Road | £ 0 | 0 | 0.00 KM |
| Longworth Road | £ 0 | 0 | 0.00 KM |
Nearby Transport
| Name | NLC | TLC | Distance |
|---|---|---|---|
| Hereford | 3607 | HFD | 2.00 KM |
Nearby Listings
| Address | Price | Type | Score | Distance |
|---|---|---|---|---|
| Ledbury Road, Hereford, HR1 | £ 150,000 | BUY | 6 / 10 | 0.00 KM |
| Ledbury Road, Tupsley, Hereford | £ 450,000 | BUY | 7 / 10 | 0.05 KM |
| Church Road, Tupsley, Hereford, HR1 | £ 485,000 | BUY | 7 / 10 | 0.09 KM |
| Church Road, Tupsley, Hereford, HR1 | £ 395,000 | BUY | 8 / 10 | 0.09 KM |
| Seaton Avenue, Tupsley, Hereford | £ 360,000 | BUY | 6 / 10 | 0.10 KM |
Nearby Properties
| Address | Price | Distance |
|---|---|---|
| 238 Ledbury Road | £ 227,600 | 0.01 KM |
| 236 Ledbury Road | £ 345,000 | 0.01 KM |
| 179 Ledbury Road | £ 283,000 | 0.01 KM |
| 246 Ledbury Road | £ 275,000 | 0.01 KM |
| 171 Ledbury Road | £ 220,000 | 0.02 KM |