WI
Phoenix Street, Sandycroft, Deeside, Flintshire, CH5
By William Gleave
£ 175,000
Reviews
3 out of 5 stars
William Gleave says ..
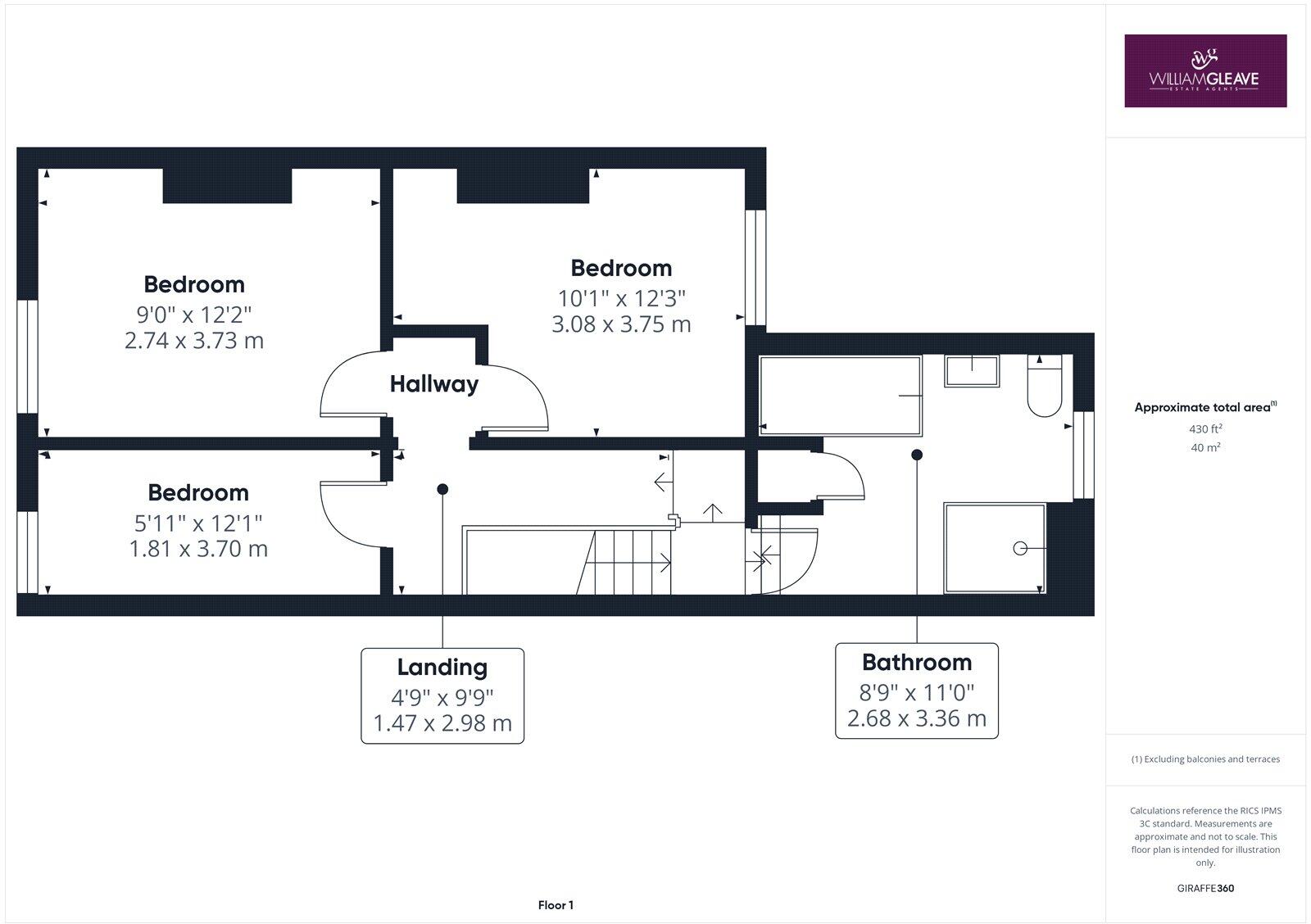
ATTENTION FIRST TIME BUYERS | SPACIOUS THROUGHOUT | THREE BEDROOMS | LOW MAINTENANCE REAR YARD | SOUGHT AFTER LOCATION | MODERN KITCHEN We are pleased to market this stunning three-bedroom mid-terraced property situated in the sought-after area of Sandycroft, close to local schools,...
Property Oracle says ..
Therefore, we give this property 6 / 10. *Disclaimer: This is our option and does constitute a recommendation or financial advice. Do your own research. *
- Price
- 7
- Condition
- 8
- Location
- 7
- Land
- 3
- Bedrooms
- 3
- Bathrooms
- 1
- Sqft (est)
- 458.54
The heatmap indicates the level of crime in the area. The color of the heatmap indicates the crime severity and recency.
Metrics Year-on-Year
- Average area value
- 267,500.00 £Decreased by 0.99 %
- Est sale value
- 117,844.78 £Increased by 5.33 %
- Average area rental value
- 1,107.00 £/moDecreased by 6.11 %
- Est letting value
- 458.54 £/moUnchanged by 0.00 %
- Est rental Yield
- 4.97 %Decreased by 5.15 %
- Crime Rate
- 148.00 %Unchanged by 0.00 %
from 270,182.00 £
from 111,883.76 £
from 1,179.00 £/mo
from 458.54 £/mo
from 5.24 %
from 148.00 %
Agent Activity
William Gleave created the listing.
Nearby Schools
| Name | Type | Ofsted | Distance |
|---|---|---|---|
| Sandycroft C.P. School | Welsh Establishment | 1.55 KM | |
| Sealand C.P. School | Welsh Establishment | 2.37 KM | |
| Queens Ferry C.P. School | Welsh Establishment | 3.73 KM | |
| St Ethelwold'S Primary School | Welsh Establishment | 4.55 KM | |
| Hawarden High School | Welsh Establishment | 4.86 KM |
Images
Nearby Streets
| Name | Average Price | Average Sqft | Distance |
|---|---|---|---|
| Whittle Close | £ 0 | 0 | 0.00 KM |
| Fairway | £ 203,333 | 0 | 0.00 KM |
| Baggage Road | £ 87,475 | 0 | 0.00 KM |
| Rake Lane | £ 625,000 | 0 | 0.00 KM |
| Moor Lane | £ 0 | 0 | 0.00 KM |
Nearby Transport
| Name | NLC | TLC | Distance |
|---|---|---|---|
| Hawarden | 2428 | HWD | 3.92 KM |
| Hawarden Bridge | 2146 | HWB | 4.47 KM |
| Shotton | 2546 | SHT | 4.76 KM |
| Buckley | 2422 | BCK | 7.37 KM |
| Penyffordd | 2433 | PNF | 8.62 KM |
Nearby Listings
| Address | Price | Type | Score | Distance |
|---|---|---|---|---|
| Phoenix Street, Sandycroft, Deeside, Flintshire, CH5 | £ 175,000 | BUY | 6 / 10 | 0.00 KM |
| Harrison Grove, Sandycroft, Deeside | £ 170,000 | BUY | 7 / 10 | 0.09 KM |
| Phoenix Street, Sandycroft, Deeside, Flintshire, CH5 | £ 145,000 | BUY | 7 / 10 | 0.17 KM |
| Phoenix Street, Sandycroft, Deeside, Flintshire, CH5 | £ 160,000 | BUY | 7 / 10 | 0.17 KM |
| Phoenix Street, Deeside, CH5 | £ 130,000 | BUY | 5 / 10 | 0.17 KM |
Nearby Properties
| Address | Price | Distance |
|---|---|---|
| 16 Queens Avenue | £ 96,000 | 0.05 KM |
| 3 Queens Avenue | £ 78,000 | 0.05 KM |
| 13 Queens Avenue | £ 115,000 | 0.05 KM |
| 14 Queens Avenue | £ 94,250 | 0.05 KM |
| 32 Queens Avenue | £ 105,000 | 0.05 KM |