Mead Crescent, Birmingham, West Midlands, B9
By YOUR MOVE Murray Rogers
£ 220,000
Reviews
2 out of 5 stars
YOUR MOVE Murray Rogers says ..
Situated in a desirable residential area, this charming semi-detached house offers a perfect blend of comfort and style. Boasting three well-appointed bedrooms, this property is ideal for families or professionals seeking a peaceful retreat. The two reception rooms give great living space, and t...
Property Oracle says ..
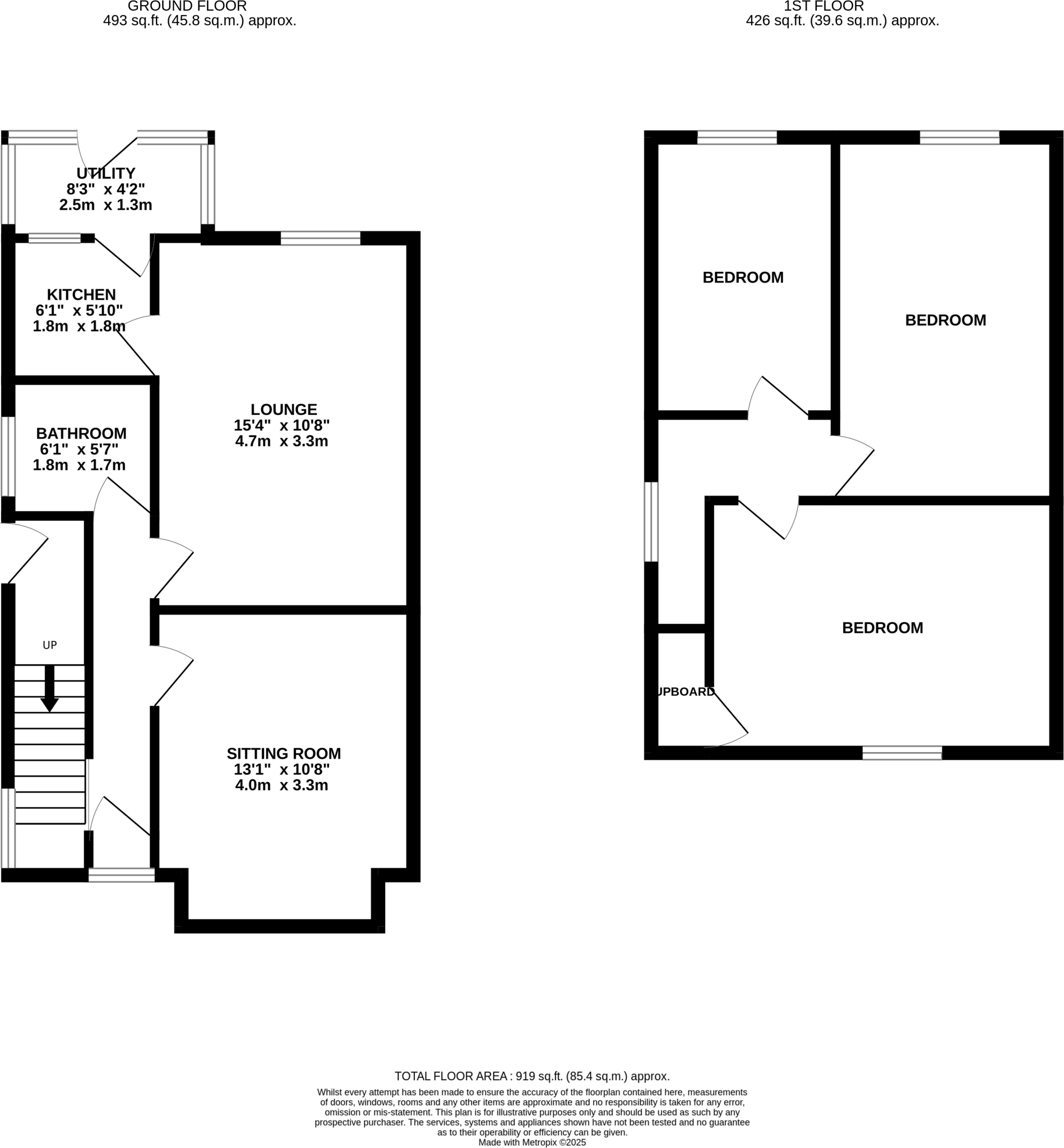
This property is a 3-bedroom semi-detached house located in Mead Crescent, Birmingham. The location benefits from being relatively close to several schools and train stations, although the immediate vicinity appears to require some attention. The property itself is in need of modernisation and updating, as evidenced by the dated interior and exterior. The garden is present but requires significant maintenance. While the list price is above the average for the area, the larger than average size of the property may justify this to some extent. However, the required renovations would significantly impact the overall value.
Therefore, we give this property 5 / 10. *Disclaimer: This is our option and does constitute a recommendation or financial advice. Do your own research. *
- Price
- 5
- Condition
- 4
- Location
- 6
- Land
- 6
- Bedrooms
- 3
- Bathrooms
- 0
- Sqft (est)
- 1,013.00
- Lot (est)
- 919.00
The heatmap indicates the level of crime in the area. The color of the heatmap indicates the crime severity and recency.
Metrics Year-on-Year
- Average area value
- 210,398.00 £Decreased by 9.64 %
- Est sale value
- 254,263.00 £Increased by 22.44 %
- Average area rental value
- 1,204.00 £/moIncreased by 43.33 %
- Est letting value
- 1,013.00 £/mo
- Est rental Yield
- 6.87 %Increased by 58.66 %
- Crime Rate
- 8.00 %Unchanged by 0.00 %
Agent Activity
YOUR MOVE Murray Rogers created the listing.
Nearby Schools
| Name | Type | Ofsted | Distance |
|---|---|---|---|
| Alston Primary School | Academy Sponsor Led | Good | 0.64 KM |
| Saltley Academy | Academy Sponsor Led | Good | 0.66 KM |
| Thornton Primary School | Community School | Good | 0.76 KM |
| St Cuthbert'S Rc Junior And Infant (Nc) School | Voluntary Aided School | Good | 0.85 KM |
| Washwood Heath Academy | Academy Converter | Good | 1.01 KM |
Images
Nearby Streets
| Name | Average Price | Average Sqft | Distance |
|---|---|---|---|
| Reigate Avenue | £ 0 | 0 | 0.00 KM |
| Eastfield Road | £ 202,475 | 0 | 0.00 KM |
| Pelham Road | £ 0 | 0 | 0.00 KM |
| Eastfield Road | £ 207,500 | 0 | 0.00 KM |
| Chetwynd Road | £ 230,000 | 0 | 0.00 KM |
Nearby Transport
| Name | NLC | TLC | Distance |
|---|---|---|---|
| Stechford | 1043 | SCF | 1.66 KM |
| Adderley Park | 1036 | ADD | 3.31 KM |
| Tyseley | 4518 | TYS | 3.66 KM |
| Acocks Green | 4529 | ACG | 3.96 KM |
| Small Heath | 4530 | SMA | 4.34 KM |
Nearby Listings
| Address | Price | Type | Score | Distance |
|---|---|---|---|---|
| Mead Crescent, Birmingham, West Midlands, B9 | £ 220,000 | BUY | 5 / 10 | 0.00 KM |
| Caldwell Road, Birmingham, West Midlands, B9 | £ 220,000 | BUY | 6 / 10 | 0.07 KM |
| Caldwell Road, Birmingham, West Midlands, B9 | £ 220,000 | BUY | 5 / 10 | 0.07 KM |
| Denville Crescent, Birmingham, B9 | £ 190,000 | BUY | 6 / 10 | 0.23 KM |
| Cotterills Avenue, Birmingham, West Midlands | £ 219,950 | BUY | 6 / 10 | 0.23 KM |
Nearby Properties
| Address | Price | Distance |
|---|---|---|
| 46 Mead Crescent | £ 124,000 | 0.05 KM |
| 13 Mead Crescent | £ 126,000 | 0.05 KM |
| 20 Mead Crescent | £ 124,000 | 0.05 KM |
| 2 Mead Crescent | £ 220,000 | 0.05 KM |
| 83 Caldwell Road | £ 100,000 | 0.07 KM |