Higher Sandygate, Kingsteignton
By Woods Estate Agents & Auctioneers
£ 335,000
Reviews
3 out of 5 stars
Woods Estate Agents & Auctioneers says ..
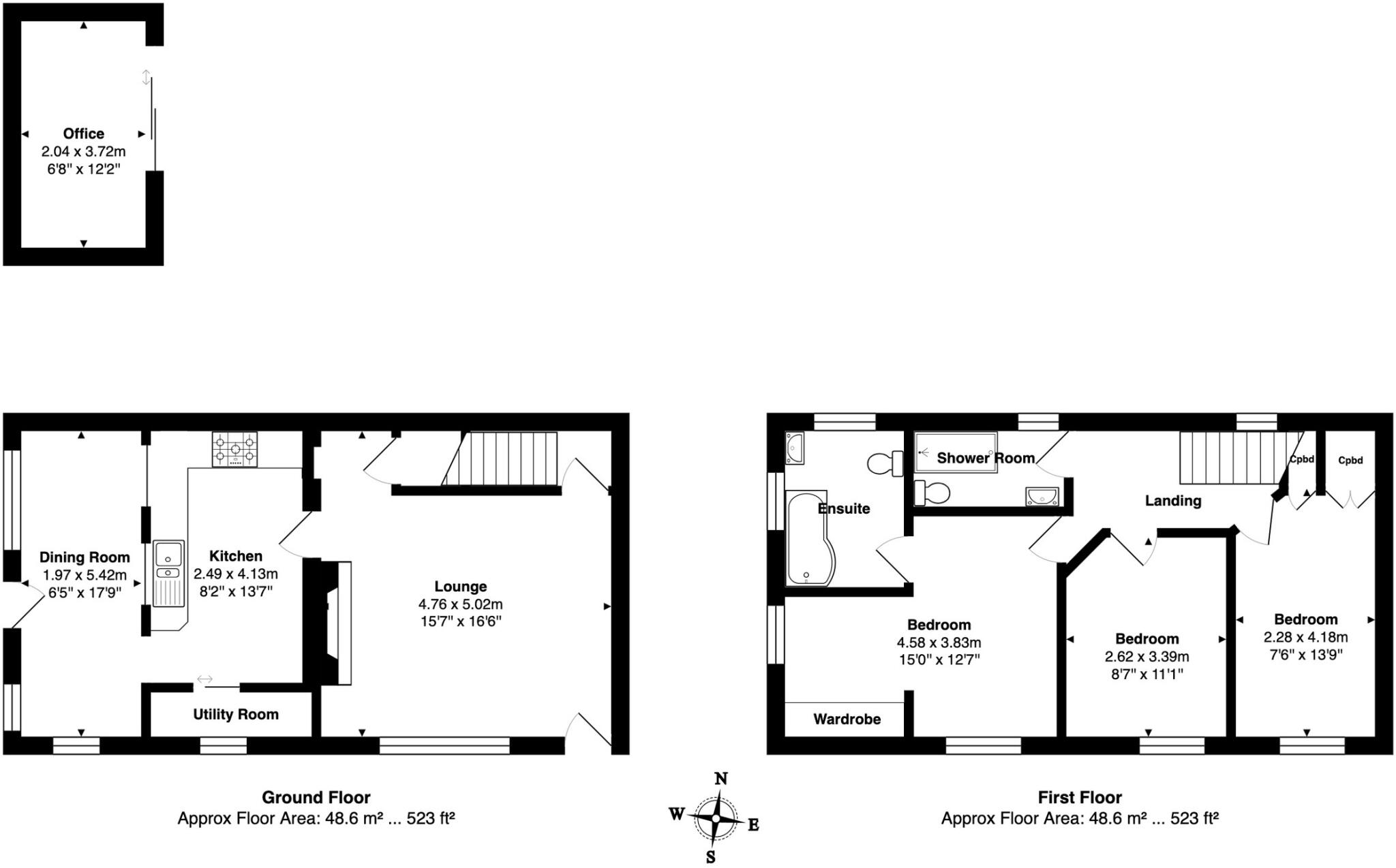
Nestled in a charming semi-rural setting, this delightful three-bedroom end of terrace cottage offers a harmonious blend of traditional character and modern convenience. With far reaching views over the surrounding fields and countryside, it still has the advantage of been close to all the amenit...
Property Oracle says ..
This is a charming cottage located in Kingsteignton West, Devon. The property features three bedrooms and two bathrooms. The interior is well-presented, with a modern kitchen and bathrooms, while retaining some traditional features like a fireplace. The property benefits from a generous garden that backs onto a large green field. The location offers convenient access to local schools and transport links, making it a desirable family home. The price is reasonable for the area and the condition of the property.
Therefore, we give this property 7 / 10. *Disclaimer: This is our option and does constitute a recommendation or financial advice. Do your own research. *
- Price
- 7
- Condition
- 8
- Location
- 7
- Land
- 9
- Bedrooms
- 3
- Bathrooms
- 2
- Sqft (est)
- 223.24
The heatmap indicates the level of crime in the area. The color of the heatmap indicates the crime severity and recency.
Metrics Year-on-Year
- Average area value
- 305,488.00 £Decreased by 9.52 %
- Est sale value
- 78,580.48 £Increased by 33.84 %
- Average area rental value
- 1,004.00 £/moDecreased by 1.08 %
- Est letting value
- 223.24 £/mo
- Est rental Yield
- 3.94 %Increased by 9.14 %
- Crime Rate
- 17.00 %Unchanged by 0.00 %
Agent Activity
Woods Estate Agents & Auctioneers created the listing.
Nearby Schools
| Name | Type | Ofsted | Distance |
|---|---|---|---|
| Kingsteignton School | Free Schools | Good | 1.40 KM |
| Teign School | Academy Converter | Requires improvement | 1.40 KM |
| Rydon Primary School | Academy Converter | Good | 1.56 KM |
| St Michael'S Church Of England Primary School | Voluntary Controlled School | Requires improvement | 2.21 KM |
| South Devon Utc | University Technical College | Good | 3.63 KM |
Images
Nearby Streets
| Name | Average Price | Average Sqft | Distance |
|---|---|---|---|
| The Bungalows | £ 0 | 0 | 0.00 KM |
| Burnham Court | £ 0 | 0 | 0.00 KM |
Nearby Transport
| Name | NLC | TLC | Distance |
|---|---|---|---|
| Newton Abbot | 3426 | NTA | 4.00 KM |
Nearby Listings
| Address | Price | Type | Score | Distance |
|---|---|---|---|---|
| Higher Sandygate, Kingsteignton | £ 335,000 | BUY | 7 / 10 | 0.00 KM |
| Higher Sandygate, Newton Abbot, TQ12 3PZ | £ 250,000 | BUY | 7 / 10 | 0.01 KM |
| Higher Sandygate, Kingsteignton, Newton Abbot, TQ12 3PZ | £ 400,000 | BUY | Unknown | 0.01 KM |
| Higher Sandygate, Newton Abbot, TQ12 | £ 240,000 | BUY | 6 / 10 | 0.01 KM |
| Sandygate Mill, Kingsteignton, Newton Abbot, TQ12 3PG | £ 425,000 | BUY | 7 / 10 | 0.15 KM |
Nearby Properties
| Address | Price | Distance |
|---|---|---|
| 2 Orchard Close | £ 240,500 | 0.08 KM |
| 17 Woodlands | £ 285,000 | 0.13 KM |
| 16 Woodlands | £ 380,000 | 0.13 KM |
| 10 Woodlands | £ 392,500 | 0.13 KM |
| 8 Woodlands | £ 333,000 | 0.13 KM |