, Madron Avenue, Macclesfield
By Meller Braggins
£ 239,950
Reviews
2 out of 5 stars
Meller Braggins says ..
This well proportioned semi detached house is situated in the sought after village of Henbury on Madron Avenue which is a quiet cul de sac. It therefore has ease of access to Macclesfield town centre but also, Wilmslow, Knutsford and Alderley Edge. The accommodation itself wou...
Property Oracle says ..
This property is a 2-bedroom semi-detached house located in Macclesfield, Cheshire. The property benefits from a good-sized garden. However, the interior images suggest the property is in need of modernisation and updating. The asking price of £239,950 is below the average price for the area, but significantly higher than other comparable properties on the same street. Transport links and local schools are nearby.
Therefore, we give this property 5 / 10. *Disclaimer: This is our option and does constitute a recommendation or financial advice. Do your own research. *
- Price
- 5
- Condition
- 4
- Location
- 7
- Land
- 7
- Bedrooms
- 2
- Bathrooms
- 1
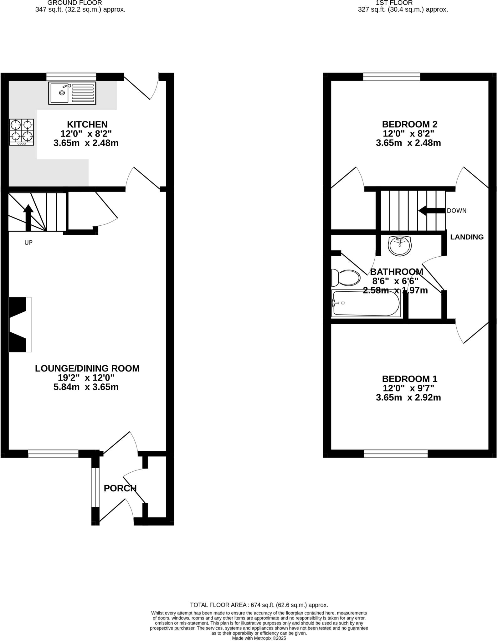
- Sqft (est)
- 674.00
The heatmap indicates the level of crime in the area. The color of the heatmap indicates the crime severity and recency.
Metrics Year-on-Year
- Average area value
- 326,658.00 £Decreased by 2.34 %
- Est sale value
- 260,164.00 £Increased by 11.24 %
- Average area rental value
- 975.00 £/moDecreased by 11.04 %
- Est letting value
- 674.00 £/moUnchanged by 0.00 %
- Est rental Yield
- 3.58 %Decreased by 8.91 %
- Crime Rate
- 0.00 %
Agent Activity
Meller Braggins created the listing.
Nearby Schools
| Name | Type | Ofsted | Distance |
|---|---|---|---|
| Whirley Primary School | Academy Converter | Good | 0.60 KM |
| Eden School | Other Independent Special School | Good | 0.76 KM |
| The Fallibroome Academy | Academy Converter | Outstanding | 0.88 KM |
| St Alban'S Catholic Primary School, A Voluntary Academy | Academy Converter | 1.13 KM | |
| Broken Cross Children'S Centre | Children's Centre | 1.13 KM |
Images
Nearby Streets
| Name | Average Price | Average Sqft | Distance |
|---|---|---|---|
| St. Ives Close | £ 279,995 | 0 | 0.00 KM |
| Newlands Road | £ 0 | 0 | 0.00 KM |
| Suffolk Close | £ 0 | 0 | 0.00 KM |
| Toll Bar Road | £ 290,000 | 0 | 0.00 KM |
| Princes Way | £ 260,000 | 0 | 0.00 KM |
Nearby Transport
| Name | NLC | TLC | Distance |
|---|---|---|---|
| Prestbury | 2875 | PRB | 4.03 KM |
| Macclesfield | 2871 | MAC | 5.06 KM |
| Adlington (Cheshire) | 2939 | ADC | 7.18 KM |
| Alderley Edge | 2760 | ALD | 8.82 KM |
| Wilmslow | 2774 | WML | 9.51 KM |
Nearby Listings
| Address | Price | Type | Score | Distance |
|---|---|---|---|---|
| , Madron Avenue, Macclesfield | £ 239,950 | BUY | 5 / 10 | 0.00 KM |
| Madron Avenue, Macclesfield | £ 250,000 | BUY | 6 / 10 | 0.01 KM |
| Madron Avenue, Macclesfield, SK10 | £ 250,000 | BUY | 7 / 10 | 0.02 KM |
| Birtles Road, Macclesfield, SK10 | £ 495,000 | BUY | 7 / 10 | 0.09 KM |
| Birtles Road, Macclesfield, Cheshire, SK10 | £ 450,000 | BUY | 6 / 10 | 0.14 KM |
Nearby Properties
| Address | Price | Distance |
|---|---|---|
| 11 Madron Avenue | £ 153,500 | 0.05 KM |
| 5 Madron Avenue | £ 173,950 | 0.05 KM |
| 16 Madron Avenue | £ 150,000 | 0.05 KM |
| 3 Madron Avenue | £ 212,000 | 0.06 KM |
| 19 Madron Avenue | £ 187,000 | 0.06 KM |