LI
Alston Mews, St. Helens
By Lifestyle Sales & Lettings
£ 175,000
Reviews
3 out of 5 stars
Lifestyle Sales & Lettings says ..
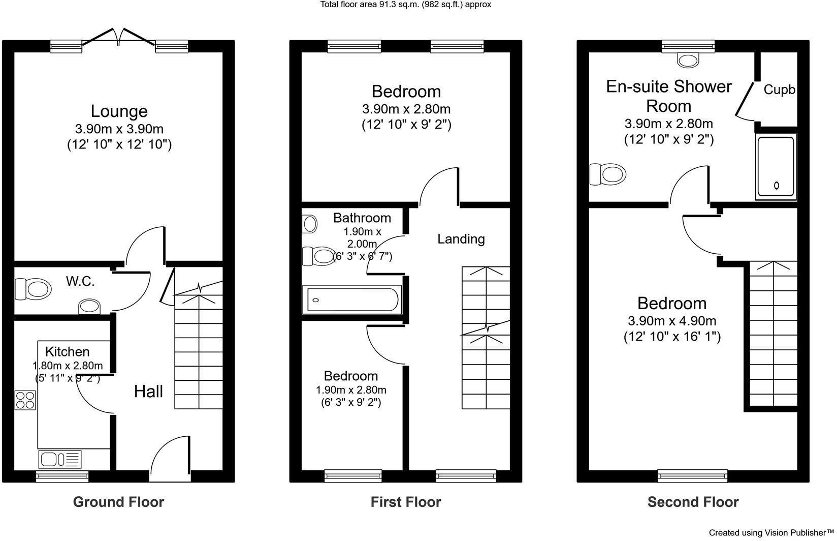
***MUST VIEW *** A SPACIOUS, WELL PRESENTED, three-bedroom mid terrace situated just of Scholes Lane in a popular location in Saint Helens and within a short distance to the Centre as well as within easy reach to the various motorway links. The property comprises; hallway, fitted kitche...
Property Oracle says ..
Therefore, we give this property 7 / 10. *Disclaimer: This is our option and does constitute a recommendation or financial advice. Do your own research. *
- Price
- 8
- Condition
- 8
- Location
- 7
- Land
- 6
- Bedrooms
- 3
- Bathrooms
- 2
The heatmap indicates the level of crime in the area. The color of the heatmap indicates the crime severity and recency.
Metrics Year-on-Year
- Average area value
- 543,800.00 £Increased by 17.00 %
- Average area rental value
- 1,669.00 £/moDecreased by 26.99 %
- Est rental Yield
- 3.68 %Decreased by 37.63 %
- Crime Rate
- 12.00 %Unchanged by 0.00 %
from 464,776.00 £
from 2,286.00 £/mo
from 5.90 %
from 12.00 %
Agent Activity
Lifestyle Sales & Lettings created the listing.
Nearby Schools
| Name | Type | Ofsted | Distance |
|---|---|---|---|
| Carmel College | Further Education | Outstanding | 0.93 KM |
| Longton Lane Community Primary School | Community School | Good | 1.41 KM |
| Nutgrove Methodist Primary School | Academy Converter | 1.64 KM | |
| St Austin'S Catholic Primary School | Voluntary Aided School | Requires improvement | 1.66 KM |
| Eccleston Mere Primary School | Community School | Good | 1.79 KM |
Images
Nearby Streets
| Name | Average Price | Average Sqft | Distance |
|---|---|---|---|
| Prescot Road | £ 280,000 | 0 | 0.00 KM |
| The Boulevard | £ 0 | 0 | 0.00 KM |
| Two Butt Lane | £ 0 | 0 | 0.00 KM |
| B5201 | £ 375,000 | 0 | 0.00 KM |
| Plum Tree Close | £ 234,279 | 0 | 0.00 KM |
Nearby Transport
| Name | NLC | TLC | Distance |
|---|---|---|---|
| Eccleston Park | 2227 | ECL | 0.76 KM |
| Thatto Heath | 2264 | THH | 1.72 KM |
| Rainhill | 2296 | RNH | 2.22 KM |
| Prescot | 2337 | PSC | 2.98 KM |
| Whiston | 2161 | WHN | 3.36 KM |
Nearby Listings
| Address | Price | Type | Score | Distance |
|---|---|---|---|---|
| Alston Mews, St. Helens | £ 175,000 | BUY | 7 / 10 | 0.00 KM |
| Alston Mews, St. Helens | £ 185,000 | BUY | 6 / 10 | 0.01 KM |
| Penrith Road, St. Helens, WA10 | £ 325,000 | BUY | 6 / 10 | 0.08 KM |
| Penrith Road, St. Helens | £ 215,000 | BUY | Unknown | 0.08 KM |
| Winster Mews, St. Helens, Merseyside, WA10 | £ 180,000 | BUY | 7 / 10 | 0.09 KM |
Nearby Properties
| Address | Price | Distance |
|---|---|---|
| 17 Alston Mews | £ 128,500 | 0.01 KM |
| 4 Alston Mews | £ 131,000 | 0.01 KM |
| 15 Alston Mews | £ 110,000 | 0.01 KM |
| 11 Alston Mews | £ 160,000 | 0.01 KM |
| 6 Alston Mews | £ 144,500 | 0.01 KM |