Julie Philpot says ..
This presents a great opportunity to purchase a traditional semi-detached property with many original features providing great scope for further improvement and extension with the added benefit of a large rear garden and well planned accommodation with three bedrooms. The property is in much love...
Property Oracle says ..
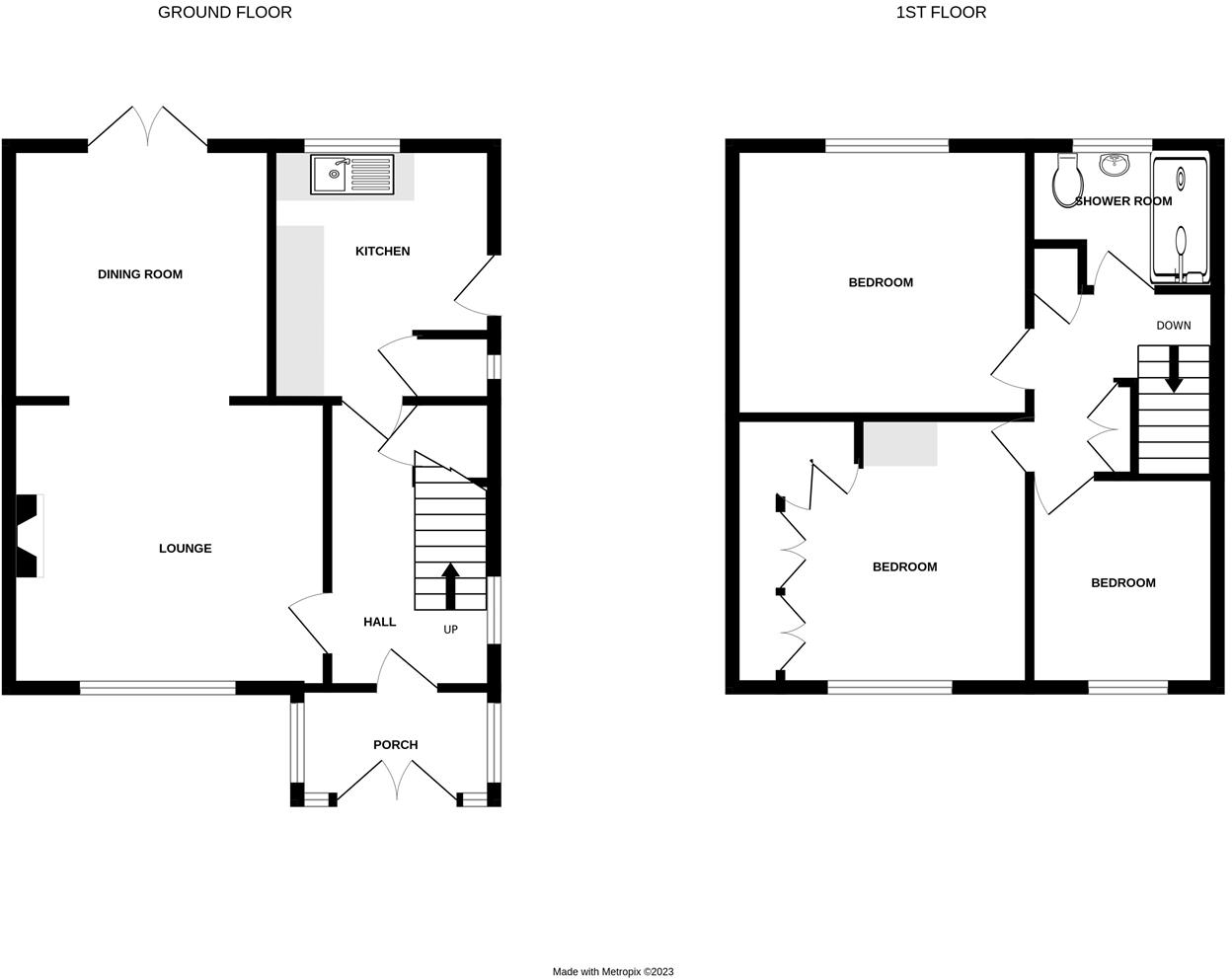
This three-bedroom semi-detached house located on Leagh Close in Kenilworth, Warwickshire, offers a blend of traditional features and potential for improvement. The property presents a comfortable living space with a spacious living room, dining room, and three bedrooms. The kitchen and bathroom, while functional, appear dated and could benefit from modernization. A significant advantage is the substantial rear garden which includes a decked area, greenhouse, and mature plants, offering considerable outdoor space. The proximity to several schools, including the ‘Good’-rated Park Hill Junior School, and Kenilworth train station enhances its appeal. However, the property’s condition requires careful consideration. While habitable, the kitchen and bathroom display features suggesting renovations would be needed to improve the property. The overall value is dependent on the buyer’s willingness to invest in potential updates. The price reflects the location, size, and garden; the buyer should factor in a possible budget for improvement works.
Therefore, we give this property 6 / 10. *Disclaimer: This is our option and does constitute a recommendation or financial advice. Do your own research. *
- Price
- 7
- Condition
- 6
- Location
- 7
- Land
- 7
- Bedrooms
- 3
- Bathrooms
- 1
- Sqft (est)
- 920.75
The heatmap indicates the level of crime in the area. The color of the heatmap indicates the crime severity and recency.
Metrics Year-on-Year
- Average area value
- 450,680.00 £Increased by 2.66 %
- Est sale value
- 433,673.25 £Increased by 11.61 %
- Average area rental value
- 1,290.00 £/moIncreased by 8.77 %
- Est letting value
- 920.75 £/moUnchanged by 0.00 %
- Est rental Yield
- 3.43 %Increased by 5.86 %
- Crime Rate
- 12.00 %Unchanged by 0.00 %
Agent Activity
Julie Philpot marked this listing as sold.
Julie Philpot created the listing.
Nearby Schools
| Name | Type | Ofsted | Distance |
|---|---|---|---|
| Crackley Hall School | Other Independent School | 0.38 KM | |
| Park Hill Junior School | Community School | Good | 1.09 KM |
| Kenilworth School And Sixth Form | Academy Converter | 1.39 KM | |
| St Nicholas Cofe Primary School | Voluntary Controlled School | Good | 1.63 KM |
| Thorns Community Infant School | Community School | Good | 1.81 KM |
Images
Nearby Streets
| Name | Average Price | Average Sqft | Distance |
|---|---|---|---|
| Arbourfields Close | £ 0 | 0 | 0.00 KM |
| Dalebrook Place | £ 0 | 0 | 0.00 KM |
| Stoneleigh Avenue | £ 0 | 0 | 0.00 KM |
| Field Close | £ 0 | 0 | 0.00 KM |
| Glendale Avenue | £ 0 | 0 | 0.00 KM |
Nearby Transport
| Name | NLC | TLC | Distance |
|---|---|---|---|
| Kenilworth | 7985 | KNW | 1.84 KM |
| Canley | 1129 | CNL | 5.05 KM |
| Tile Hill | 1035 | THL | 5.46 KM |
| Coventry | 1030 | COV | 7.49 KM |
| Warwick | 4600 | WRW | 8.10 KM |
Nearby Listings
| Address | Price | Type | Score | Distance |
|---|---|---|---|---|
| Leagh Close, Kenilworth | £ 380,000 | BUY | 6 / 10 | 0.00 KM |
| Leagh Close, Kenilworth, CV8 | £ 350,000 | BUY | 7 / 10 | 0.01 KM |
| Leagh Close, Kenilworth, CV8 | £ 590,000 | BUY | 8 / 10 | 0.04 KM |
| Woodland Road, Kenilworth | £ 490,000 | BUY | 7 / 10 | 0.07 KM |
| Leagh Close, Kenilworth, CV8 | £ 375,000 | BUY | Unknown | 0.07 KM |
Nearby Properties
| Address | Price | Distance |
|---|---|---|
| 8 Leagh Close | £ 286,105 | 0.00 KM |
| 7 Leagh Close | £ 360,000 | 0.00 KM |
| 16 Leagh Close | £ 295,000 | 0.00 KM |
| 6 Leagh Close | £ 373,000 | 0.00 KM |
| 4 Leagh Close | £ 239,500 | 0.00 KM |