N
Kew Road, Failsworth, Manchester
By N P Estates
£ 255,000
Reviews
3 out of 5 stars
N P Estates says ..
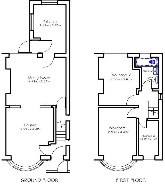
****CHAIN FREE****SPACIOUS & MODERN INTERIOR****EXTENDED TO REAR**** 2 RECEPTION ROOMS****IDEAL FOR FIRST TIME BUYER, FAMILY OR INVESTOR**** We offer for sale this deceptively spacious, modern & extended 3 bedroom semi detached property, situated in a popular location, ideal for the first time bu...
Property Oracle says ..
Therefore, we give this property 7 / 10. *Disclaimer: This is our option and does constitute a recommendation or financial advice. Do your own research. *
- Price
- 8
- Condition
- 8
- Location
- 7
- Land
- 7
- Bedrooms
- 3
- Bathrooms
- 1
The heatmap indicates the level of crime in the area. The color of the heatmap indicates the crime severity and recency.
Metrics Year-on-Year
- Average area value
- 541,429.00 £Decreased by 23.20 %
- Average area rental value
- 2,040.00 £/moIncreased by 13.71 %
- Est rental Yield
- 4.52 %Increased by 48.20 %
- Crime Rate
- 0.00 %
from 705,020.00 £
from 1,794.00 £/mo
from 3.05 %
from 0.00 %
Agent Activity
N P Estates created the listing.
Nearby Schools
| Name | Type | Ofsted | Distance |
|---|---|---|---|
| Higher Failsworth Primary School | Community School | Good | 0.37 KM |
| Co-Op Academy Failsworth | Academy Sponsor Led | 0.60 KM | |
| St John'S Church Of England Primary School | Academy Sponsor Led | 0.60 KM | |
| Sms Changing Lives School | Other Independent Special School | Requires improvement | 0.64 KM |
| Teenage Works | Other Independent School | 0.97 KM |
Images
Nearby Streets
| Name | Average Price | Average Sqft | Distance |
|---|---|---|---|
| Duke Street | £ 160,000 | 0 | 0.00 KM |
| James Street | £ 269,950 | 0 | 0.00 KM |
| Peace Street | £ 0 | 0 | 0.00 KM |
| Manchester Road | £ 0 | 0 | 0.00 KM |
| Rutland Street | £ 0 | 0 | 0.00 KM |
Nearby Transport
| Name | NLC | TLC | Distance |
|---|---|---|---|
| Moston | 2973 | MSO | 2.99 KM |
| Fairfield | 2780 | FRF | 4.54 KM |
| Mills Hill (Manchester) | 2920 | MIH | 5.16 KM |
| Gorton | 2962 | GTO | 5.26 KM |
| Guide Bridge | 2955 | GUI | 5.53 KM |
Nearby Listings
| Address | Price | Type | Score | Distance |
|---|---|---|---|---|
| Kew Road, Failsworth, Manchester | £ 255,000 | BUY | 7 / 10 | 0.00 KM |
| Kew Road, Failsworth, Manchester | £ 260,000 | BUY | 6 / 10 | 0.01 KM |
| Kew Road, Failsworth, Manchester | £ 300,000 | BUY | 7 / 10 | 0.04 KM |
| Kew Road, Failsworth, Manchester | £ 299,950 | BUY | 7 / 10 | 0.05 KM |
| Kew Road, Failsworth | £ 319,995 | BUY | 7 / 10 | 0.07 KM |
Nearby Properties
| Address | Price | Distance |
|---|---|---|
| 105 Kew Road | £ 226,000 | 0.07 KM |
| 108 Kew Road | £ 175,000 | 0.07 KM |
| 94 Kew Road | £ 129,950 | 0.07 KM |
| 124 Kew Road | £ 102,500 | 0.07 KM |
| 83 Kew Road | £ 150,000 | 0.07 KM |