Hunters says ..
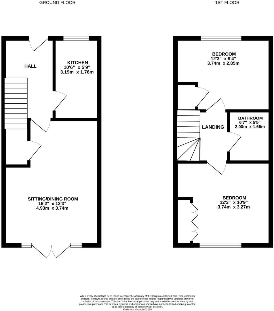
GUIDE PRICE £300,000- £315000 Set in the tranquil cul-de-sac of Armada Way, Chatham, this light and airy modern mid-terrace house offers a delightful living experience. With a well-thought-out layout, the property features two comfortable bedrooms and a welcoming reception room, perfect ...
Property Oracle says ..
A well-presented terraced property in Chatham Central, Kent. Close to local schools and transport links. The property benefits from a modern kitchen and bathroom, and a garden.
Therefore, we give this property 7 / 10. *Disclaimer: This is our option and does constitute a recommendation or financial advice. Do your own research. *
- Price
- 7
- Condition
- 8
- Location
- 7
- Land
- 7
- Bedrooms
- 2
- Bathrooms
- 1
The heatmap indicates the level of crime in the area. The color of the heatmap indicates the crime severity and recency.
Metrics Year-on-Year
- Average area value
- 281,500.00 £Increased by 3.99 %
- Average area rental value
- 1,328.00 £/moIncreased by 4.08 %
- Est rental Yield
- 5.66 %Unchanged by 0.00 %
- Crime Rate
- 4.00 %Unchanged by 0.00 %
Agent Activity
Hunters created the listing.
Nearby Schools
| Name | Type | Ofsted | Distance |
|---|---|---|---|
| St Michael'S Rc Primary School | Voluntary Aided School | Good | 0.26 KM |
| Blue Skies School | Other Independent Special School | Requires improvement | 0.39 KM |
| St John'S Church Of England Infant School | Academy Converter | Good | 0.46 KM |
| Phoenix Primary School | Academy Sponsor Led | Requires improvement | 0.63 KM |
| St John Fisher Catholic Comprehensive School | Voluntary Aided School | Good | 0.68 KM |
Images
Nearby Streets
| Name | Average Price | Average Sqft | Distance |
|---|---|---|---|
| The Mount | £ 0 | 0 | 0.00 KM |
| New Road | £ 231,105 | 0 | 0.00 KM |
| St Alban's Walk | £ 0 | 0 | 0.00 KM |
| Claremont Way | £ 0 | 0 | 0.00 KM |
| The Paddock | £ 0 | 0 | 0.00 KM |
Nearby Transport
| Name | NLC | TLC | Distance |
|---|---|---|---|
| Chatham | 5199 | CTM | 0.48 KM |
| Rochester | 5203 | RTR | 1.75 KM |
| Gillingham (Kent) | 5169 | GLM | 3.13 KM |
| Strood (Kent) | 5191 | SOO | 3.38 KM |
| Cuxton | 5201 | CUX | 6.82 KM |
Nearby Listings
| Address | Price | Type | Score | Distance |
|---|---|---|---|---|
| Armada Way, Chatham | £ 290,000 | BUY | 7 / 10 | 0.00 KM |
| Armada Way, Chatham | £ 300,000 | BUY | 7 / 10 | 0.00 KM |
| Armada Way, Chatham | £ 178,950 | BUY | 5 / 10 | 0.02 KM |
| Armada Way, Chatham, Kent, ME4 6PH | £ 280,000 | BUY | 6 / 10 | 0.05 KM |
| Mount Road, Chatham, Kent | £ 225,000 | BUY | 6 / 10 | 0.10 KM |
Nearby Properties
| Address | Price | Distance |
|---|---|---|
| 8 Armada Way | £ 177,000 | 0.04 KM |
| 13 Armada Way | £ 187,000 | 0.04 KM |
| 46 Armada Way | £ 160,000 | 0.04 KM |
| 6 Armada Way | £ 127,500 | 0.04 KM |
| 30 Armada Way | £ 165,000 | 0.04 KM |