Harris & Harris says ..
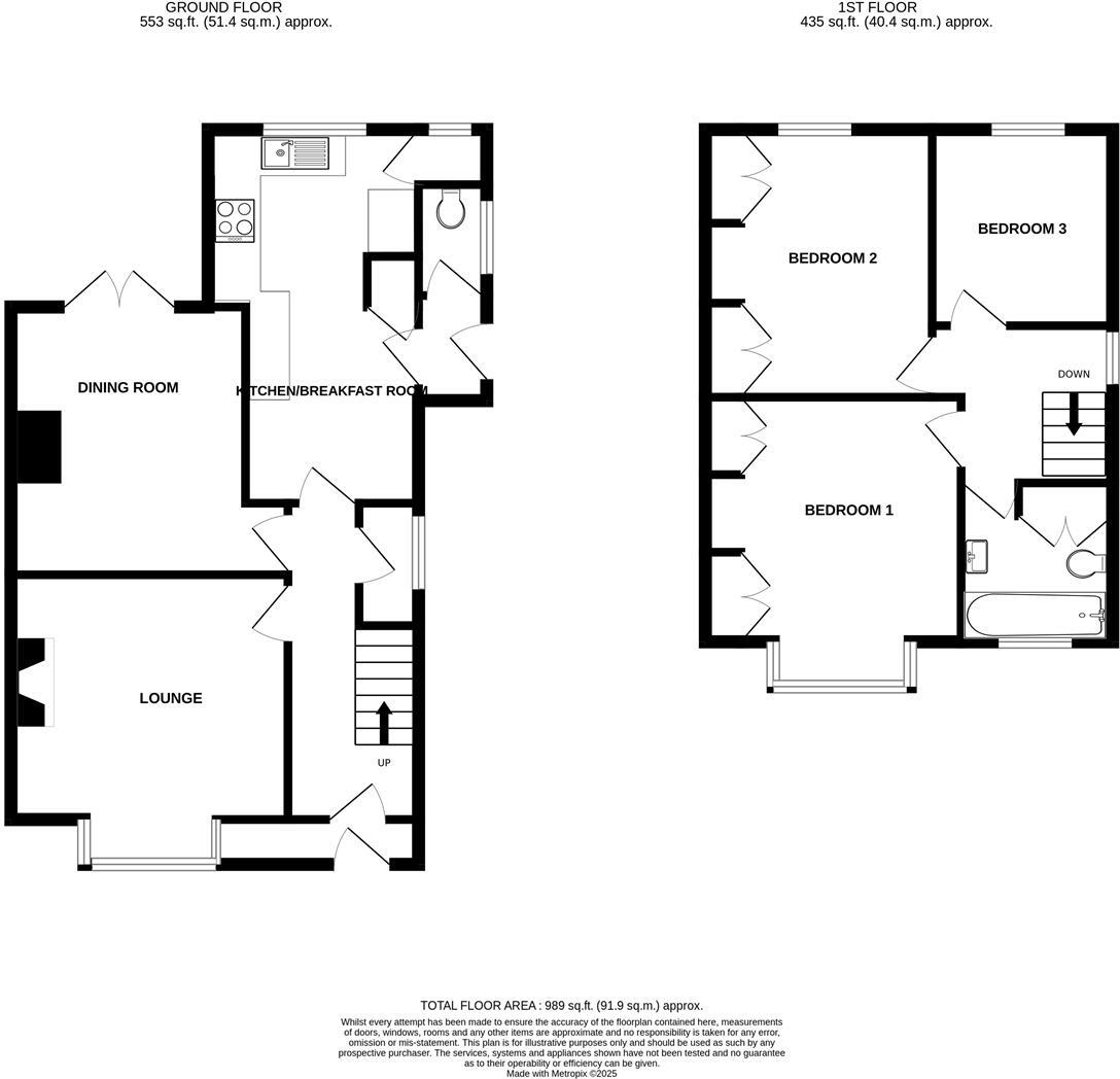
Nestled on Lyme Street in the charming town of Axminster, this delightful three-bedroom semi-detached house offers a perfect blend of comfort and convenience making it an ideal family home. Upon entering, you are greeted by two inviting reception rooms, providing ample space for relaxation and en...
Property Oracle says ..
Therefore, we give this property 7 / 10. *Disclaimer: This is our option and does constitute a recommendation or financial advice. Do your own research. *
- Price
- 8
- Condition
- 8
- Location
- 7
- Land
- 7
- Bedrooms
- 3
- Bathrooms
- 1
- Sqft (est)
- 989.00
The heatmap indicates the level of crime in the area. The color of the heatmap indicates the crime severity and recency.
Metrics Year-on-Year
- Average area value
- 409,094.00 £Increased by 31.35 %
- Est sale value
- 340,216.00 £Increased by 41.56 %
- Average area rental value
- 1,235.00 £/moIncreased by 34.24 %
- Est letting value
- 989.00 £/mo
- Est rental Yield
- 3.62 %Increased by 2.26 %
- Crime Rate
- 22.00 %Unchanged by 0.00 %
from 311,458.00 £
from 240,327.00 £
from 920.00 £/mo
from 0.00 £/mo
from 3.54 %
from 22.00 %
Agent Activity
Harris & Harris created the listing.
Nearby Schools
| Name | Type | Ofsted | Distance |
|---|---|---|---|
| Axe Valley Academy | Academy Sponsor Led | Requires improvement | 0.19 KM |
| St Mary'S Catholic Primary School, Axminster | Academy Converter | Good | 0.41 KM |
| Axminster Community Primary Academy | Academy Converter | Good | 0.48 KM |
| All Saints Church Of England Primary School | Academy Converter | Good | 2.80 KM |
| Kilmington Primary School | Community School | Outstanding | 4.10 KM |
Images
Nearby Streets
| Name | Average Price | Average Sqft | Distance |
|---|---|---|---|
| Pig Lane | £ 0 | 0 | 0.00 KM |
| Norman Close | £ 0 | 0 | 0.00 KM |
| King Edward Road | £ 337,500 | 0 | 0.00 KM |
| St George's Avenue | £ 210,000 | 0 | 0.00 KM |
| B3261 | £ 0 | 0 | 0.00 KM |
Nearby Transport
| Name | NLC | TLC | Distance |
|---|---|---|---|
| Axminster | 5714 | AXM | 1.03 KM |
Nearby Listings
| Address | Price | Type | Score | Distance |
|---|---|---|---|---|
| Lyme Street, Axminster | £ 275,000 | BUY | 7 / 10 | 0.00 KM |
| Lyme Street, Axminster | £ 699,000 | BUY | 6 / 10 | 0.04 KM |
| Pig Lane, Axminster, Devon | £ 165,000 | BUY | 6 / 10 | 0.14 KM |
| Chard Street, Axminster | £ 210,000 | BUY | 7 / 10 | 0.16 KM |
| George House, George Street, Axminster, Devon | £ 285,000 | BUY | 6 / 10 | 0.18 KM |
Nearby Properties
| Address | Price | Distance |
|---|---|---|
| Lyme House | £ 975,000 | 0.05 KM |
| Kylemore Gardens | £ 225,000 | 0.05 KM |
| Ivy House | £ 417,500 | 0.05 KM |
| The Laurels | £ 277,000 | 0.05 KM |
| The Elms | £ 680,000 | 0.08 KM |