The Willows, Hill Crest Country Park, B47
By Yopa
£ 160,000
Reviews
3 out of 5 stars
Yopa says ..
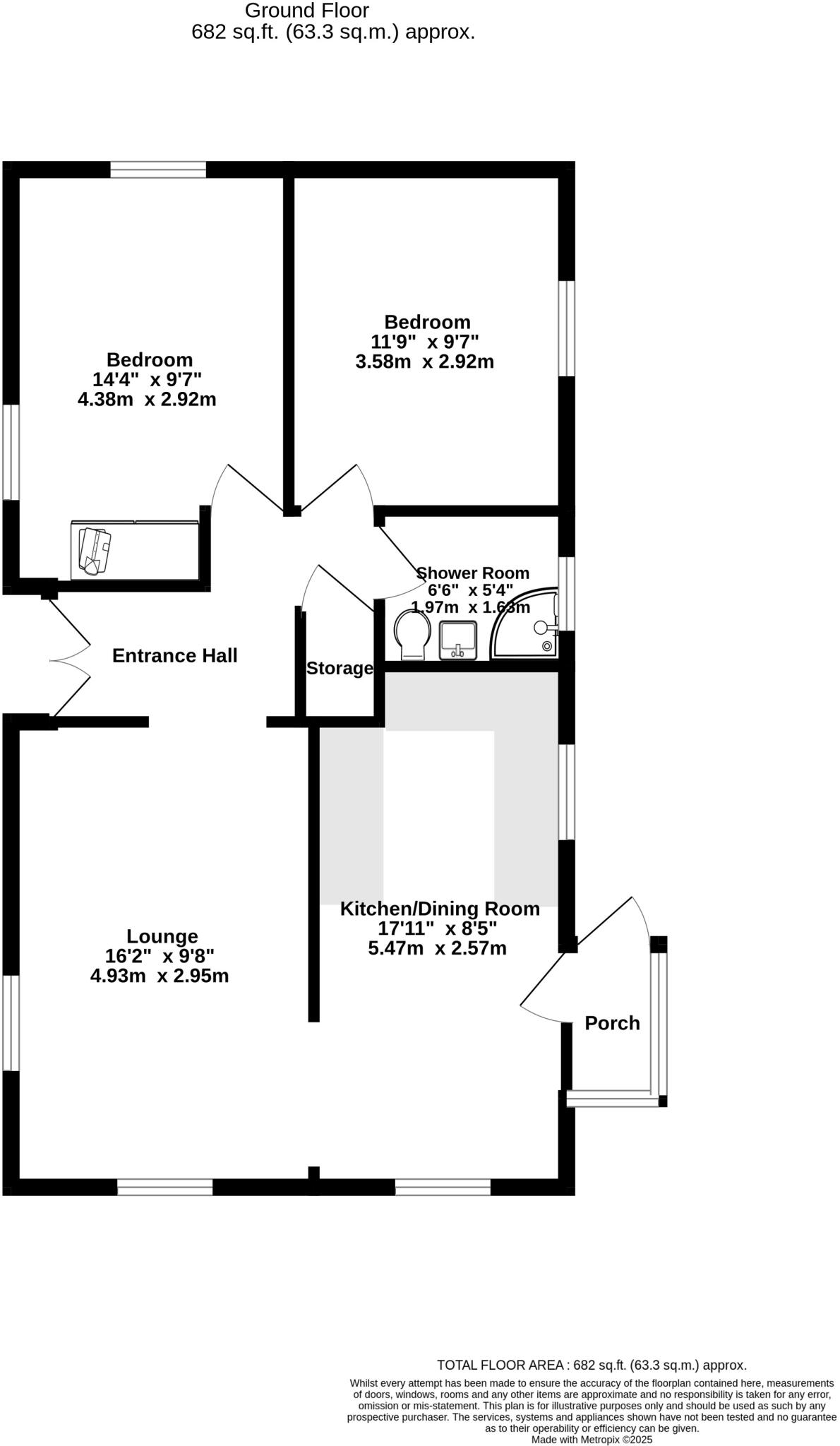
A larger style two bedroom park home situated on this popular over 50s development on the outskirts of Wythall. The property is in good order throughout with plenty of space, a private garden, and allocated parking. Perfect for a mature/retiring couple, viewing is highly recommended.
Property Oracle says ..
This two-bedroom park home located in Hill Crest Country Park offers a blend of comfortable living and a semi-rural setting. The property is well-maintained, featuring a modern interior and a functional layout. The inclusion of a garden adds to its appeal, providing outdoor space. While the location in a park home setting may have some limitations, the proximity to local amenities, schools, and transportation options enhances its desirability. The asking price of £160,000 appears reasonable when compared to similar properties in the area, making it a potentially attractive option for those seeking a more affordable and manageable home.
Therefore, we give this property 7 / 10. *Disclaimer: This is our option and does constitute a recommendation or financial advice. Do your own research. *
- Price
- 8
- Condition
- 7
- Location
- 7
- Land
- 6
- Bedrooms
- 2
- Bathrooms
- 1
- Sqft (est)
- 598.00
The heatmap indicates the level of crime in the area. The color of the heatmap indicates the crime severity and recency.
Metrics Year-on-Year
- Average area value
- 608,463.00 £Increased by 42.12 %
- Est sale value
- 263,718.00 £Increased by 92.58 %
- Average area rental value
- 1,050.00 £/moDecreased by 0.76 %
- Est letting value
- 0.00 £/mo
- Est rental Yield
- 2.07 %Decreased by 30.30 %
- Crime Rate
- 35.00 %Unchanged by 0.00 %
Agent Activity
Yopa created the listing.
Nearby Schools
| Name | Type | Ofsted | Distance |
|---|---|---|---|
| Meadow Green Primary School | Community School | Good | 1.99 KM |
| Cottonwood Children'S Centre | Children's Centre | 2.03 KM | |
| Woodrush High School | Academy Converter | Good | 3.49 KM |
| Coppice Primary School | Academy Converter | Good | 3.67 KM |
| Beoley First School | Community School | Good | 3.95 KM |
Images
Nearby Streets
| Name | Average Price | Average Sqft | Distance |
|---|---|---|---|
| The Laurels | £ 165,000 | 0 | 0.00 KM |
| The Lawns | £ 0 | 0 | 0.00 KM |
| A435 | £ 1,500,000 | 0 | 0.00 KM |
| A435 | £ 0 | 0 | 0.00 KM |
| A435 | £ 170,000 | 0 | 0.00 KM |
Nearby Transport
| Name | NLC | TLC | Distance |
|---|---|---|---|
| Earlswood (West Midlands) | 4520 | EWD | 3.34 KM |
| Wythall | 4532 | WYT | 3.59 KM |
| The Lakes (Warks) | 4538 | TLK | 5.06 KM |
| Wood End | 4536 | WDE | 5.39 KM |
| Whitlocks End | 4539 | WTE | 5.63 KM |
Nearby Listings
| Address | Price | Type | Score | Distance |
|---|---|---|---|---|
| The Willows, Hill Crest Country Park, B47 | £ 160,000 | BUY | 7 / 10 | 0.00 KM |
| The Oaks, Wythall, Birmingham | £ 195,000 | BUY | 6 / 10 | 0.10 KM |
| The Oaks, Wythall, Birmingham | £ 130,000 | BUY | 5 / 10 | 0.13 KM |
| Ash Crescent, Wythall, Birmingham | £ 220,000 | BUY | 7 / 10 | 0.13 KM |
| Ash Crescent, Hillcrest Park, Wythall | £ 175,000 | BUY | 6 / 10 | 0.13 KM |
Nearby Properties
| Address | Price | Distance |
|---|---|---|
| West Winds | £ 499,950 | 0.55 KM |
| 43 Barkers Lane | £ 540,000 | 0.77 KM |
| 9 Barkers Lane | £ 352,000 | 0.77 KM |
| 45 Barkers Lane | £ 460,000 | 0.77 KM |
| 31 Barkers Lane | £ 331,000 | 0.77 KM |