Links Estate Agents says ..
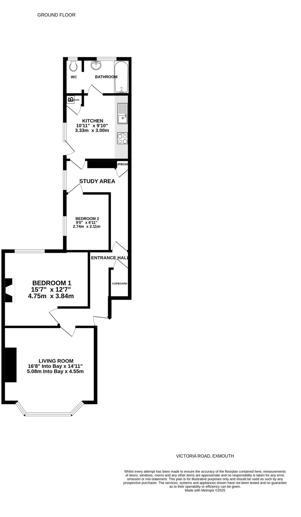
Offered for sale with NO ONWARD CHAIN and situated within level walking distance of Exmouth Town Centre, Train Station, Seafront & Marina is this 2 bedroom ground floor flat with an equal share of the Freehold and a long lease.
Property Oracle says ..
This two-bedroom property located on Victoria Road, Exmouth, presents a mixed bag of positives and negatives. The location in Exmouth is generally favorable, being a sought-after coastal town in Devon. Proximity to the town centre, railway station, and schools enhances its appeal. The interior shows signs of recent renovation in the kitchen and bathroom, contributing positively to its condition. However, some cosmetic work is needed in other areas of the house, such as repainting and potentially upgrading the flooring. The property lacks outdoor space with only a very small, unkempt, paved area available.
The list price of £169,950 appears reasonable based on comparable properties in the area, although the lack of garden and need for further cosmetic work could potentially justify a slightly lower price. Prospective buyers should factor in potential costs of cosmetic improvement works into their purchase consideration and view this property as a sound investment offering a reasonable return on investment once improvements have been carried out. The property’s character and location are its main selling points, offset by the minimal external space and the need for ongoing work. The property would ideally suit a first-time buyer or someone looking for a reasonably priced property in a convenient location that has space for further enhancement and modernisation to their taste.
Therefore, we give this property 5 / 10. *Disclaimer: This is our option and does constitute a recommendation or financial advice. Do your own research. *
- Price
- 7
- Condition
- 6
- Location
- 7
- Land
- 2
- Bedrooms
- 2
- Bathrooms
- 1
- Sqft (est)
- 964.45
The heatmap indicates the level of crime in the area. The color of the heatmap indicates the crime severity and recency.
Metrics Year-on-Year
- Average area value
- 353,125.00 £Increased by 13.69 %
- Est sale value
- 413,749.05 £Increased by 22.92 %
- Average area rental value
- 1,100.00 £/moDecreased by 4.18 %
- Est letting value
- 964.45 £/moUnchanged by 0.00 %
- Est rental Yield
- 3.74 %Decreased by 15.77 %
- Crime Rate
- 35.00 %Unchanged by 0.00 %
Agent Activity
Links Estate Agents created the listing.
Nearby Schools
| Name | Type | Ofsted | Distance |
|---|---|---|---|
| The Beacon Church Of England (Va) Primary School | Voluntary Aided School | Good | 0.47 KM |
| Exeter Road Community Primary School | Foundation School | Good | 0.73 KM |
| Exeter Royal Academy For Deaf Education | Non-maintained Special School | Requires improvement | 1.27 KM |
| St Joseph'S Catholic Primary School, Exmouth | Academy Converter | Good | 1.45 KM |
| Exmouth Community College | Academy Converter | Requires improvement | 1.51 KM |
Images
Nearby Streets
| Name | Average Price | Average Sqft | Distance |
|---|---|---|---|
| Beacon Hill | £ 0 | 0 | 0.00 KM |
| South Street | £ 0 | 0 | 0.00 KM |
| Albion Terrace | £ 200,000 | 0 | 0.00 KM |
| Southern Road | £ 425,000 | 0 | 0.00 KM |
| Admirals Court | £ 119,488 | 0 | 0.00 KM |
Nearby Transport
| Name | NLC | TLC | Distance |
|---|---|---|---|
| Exmouth | 5756 | EXM | 0.38 KM |
| Starcross | 3413 | SCS | 3.53 KM |
| Lympstone Village | 5761 | LYM | 3.61 KM |
| Dawlish Warren | 3409 | DWW | 3.69 KM |
| Lympstone Commando | 5762 | LYC | 5.49 KM |
Nearby Listings
| Address | Price | Type | Score | Distance |
|---|---|---|---|---|
| Victoria Road, Exmouth | £ 169,950 | BUY | 5 / 10 | 0.00 KM |
| Victoria Road, Exmouth | £ 235,000 | BUY | 6 / 10 | 0.07 KM |
| Victoria Road, Exmouth | £ 199,950 | BUY | 5 / 10 | 0.07 KM |
| Victoria Road, Exmouth, EX8 1DW | £ 460,000 | BUY | 6 / 10 | 0.07 KM |
| Victoria Road, EXMOUTH, Devon, EX8 | £ 300,000 | BUY | 6 / 10 | 0.07 KM |
Nearby Properties
| Address | Price | Distance |
|---|---|---|
| 26 Imperial Road | £ 380,000 | 0.07 KM |
| 18a Imperial Road | £ 247,500 | 0.07 KM |
| 35 Victoria Road | £ 303,000 | 0.07 KM |
| 30 Victoria Road | £ 360,000 | 0.07 KM |
| 17 Victoria Road | £ 220,000 | 0.07 KM |