Elm Park, Hill of Beath, Cowdenbeath, KY4
By Delmor Estate & Lettings Agents
£ 174,500
Reviews
3 out of 5 stars
Delmor Estate & Lettings Agents says ..
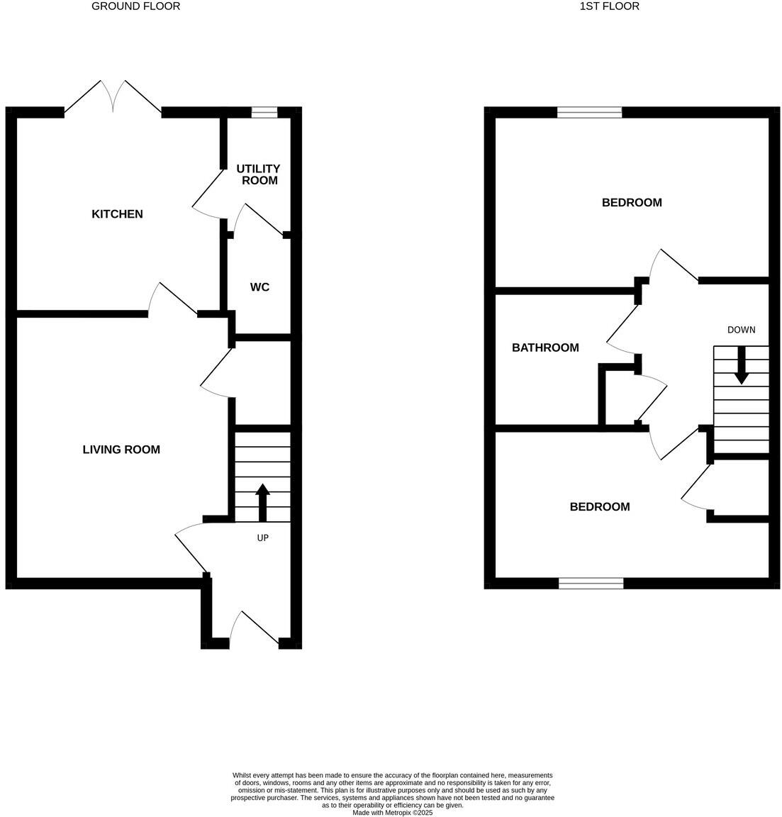
28 Elm Park is a modern mid terraced villa with modern kitchen, utility and downstairs WC. There are two double bedrooms and private parking space. Early viewing is highly recommended.
Property Oracle says ..
This is a well-presented terraced house in Cowdenbeath, Fife. The property benefits from a modern interior, a garden, and proximity to transportation links. While Cowdenbeath is not a major urban center, it offers local amenities and is within commuting distance of larger cities. The property is a good option for first-time buyers, small families, or investors.
Therefore, we give this property 7 / 10. *Disclaimer: This is our option and does constitute a recommendation or financial advice. Do your own research. *
- Price
- 7
- Condition
- 8
- Location
- 6
- Land
- 7
- Bedrooms
- 2
- Bathrooms
- 1
- Sqft (est)
- 880.00
The heatmap indicates the level of crime in the area. The color of the heatmap indicates the crime severity and recency.
Metrics Year-on-Year
- Average area value
- 546,663.00 £Increased by 20.32 %
- Est sale value
- 522,720.00 £Increased by 55.50 %
- Average area rental value
- 2,315.00 £/moIncreased by 58.13 %
- Est letting value
- 1,760.00 £/moIncreased by 100.00 %
- Est rental Yield
- 5.08 %Increased by 31.27 %
- Crime Rate
- 0.00 %
Agent Activity
Delmor Estate & Lettings Agents created the listing.
Images
Nearby Streets
| Name | Average Price | Average Sqft | Distance |
|---|---|---|---|
| Dalbeath Gardens | £ 0 | 0 | 0.00 KM |
| Hawthorn Crescent | £ 111,500 | 0 | 0.00 KM |
| Green Mount | £ 95,000 | 0 | 0.00 KM |
| Dalbeath Crescent | £ 0 | 0 | 0.00 KM |
| Braemount | £ 119,500 | 0 | 0.00 KM |
Nearby Transport
| Name | NLC | TLC | Distance |
|---|---|---|---|
| Cowdenbeath | 9185 | COW | 3.49 KM |
| Dunfermline Queen Margaret | 9186 | DFL | 5.87 KM |
| Dalgety Bay | 9135 | DAG | 6.21 KM |
| Inverkeithing | 9136 | INK | 7.54 KM |
| Lochgelly | 9156 | LCG | 7.68 KM |
Nearby Listings
| Address | Price | Type | Score | Distance |
|---|---|---|---|---|
| Elm Park, Hill of Beath, Cowdenbeath, KY4 | £ 174,500 | BUY | 7 / 10 | 0.00 KM |
| Elm Park, Hill of Beath, Cowdenbeath, KY4 | £ 220,000 | BUY | 7 / 10 | 0.05 KM |
| Elm Park, Hill of Beath, Cowdenbeath, Fife, KY4 | £ 170,000 | BUY | 7 / 10 | 0.09 KM |
| Elm Park, Hill of Beath, Cowdenbeath, KY4 | £ 259,500 | BUY | 7 / 10 | 0.12 KM |
| Elm Park, Hill of Beath, Cowdenbeath, KY4 | £ 210,000 | BUY | 7 / 10 | 0.12 KM |