HO
Quarryknowe Place, Bellshill, ML4
By Housespotters Estate Agents
£ 140,000
Reviews
3 out of 5 stars
Housespotters Estate Agents says ..
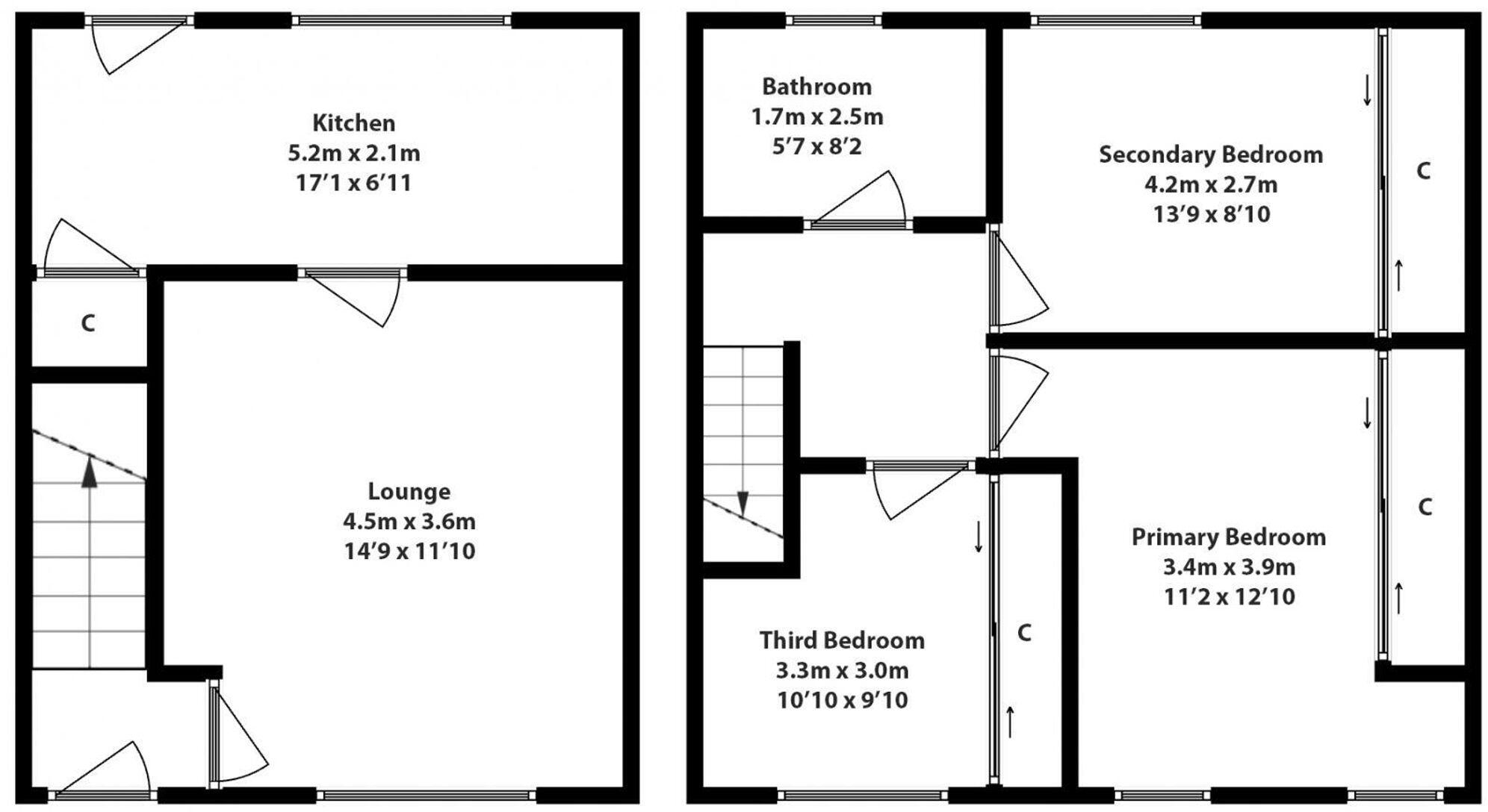
Refurbished Mid-Terraced Villa in Popular Bellshill Location. This stunning externally and internally refurbished mid-terraced villa enjoys a sought-after position within a popular address.
Property Oracle says ..
Therefore, we give this property 7 / 10. *Disclaimer: This is our option and does constitute a recommendation or financial advice. Do your own research. *
- Price
- 8
- Condition
- 8
- Location
- 7
- Land
- 6
- Bedrooms
- 3
- Bathrooms
- 1
The heatmap indicates the level of crime in the area. The color of the heatmap indicates the crime severity and recency.
Metrics Year-on-Year
- Average area value
- 925,000.00 £Increased by 139.51 %
- Average area rental value
- 825.00 £/moDecreased by 10.71 %
- Est rental Yield
- 1.07 %Decreased by 62.72 %
- Crime Rate
- 0.00 %
from 386,204.00 £
from 924.00 £/mo
from 2.87 %
from 0.00 %
Agent Activity
Housespotters Estate Agents created the listing.
Images
Nearby Streets
| Name | Average Price | Average Sqft | Distance |
|---|---|---|---|
| Quarry Knowe Place | £ 0 | 0 | 0.00 KM |
| Cameronian Place | £ 244,000 | 0 | 0.00 KM |
| Croftcot Avenue | £ 105,000 | 0 | 0.00 KM |
| Crofthead Place | £ 0 | 0 | 0.00 KM |
| Argyll Place | £ 0 | 0 | 0.00 KM |
Nearby Transport
| Name | NLC | TLC | Distance |
|---|---|---|---|
| Bellshill | 9714 | BLH | 1.15 KM |
| Hamilton Central | 9726 | HNC | 4.11 KM |
| Hamilton West | 9727 | HNW | 4.26 KM |
| Motherwell | 9691 | MTH | 4.56 KM |
| Airbles | 9695 | AIR | 5.07 KM |
Nearby Listings
| Address | Price | Type | Score | Distance |
|---|---|---|---|---|
| Quarryknowe Place, Bellshill, ML4 | £ 140,000 | BUY | 7 / 10 | 0.00 KM |
| Quarryknowe Place, Bellshill | £ 90,000 | BUY | 5 / 10 | 0.04 KM |
| Cameronian Place, Bellshill, ML4 | £ 210,000 | BUY | 7 / 10 | 0.13 KM |
| Crofthead Crescent, Bellshill, Lanarkshire, ML4 | £ 120,000 | BUY | Unknown | 0.24 KM |
| 12 Macdonald Grove, ML4 | £ 63,000 | BUY | 6 / 10 | 0.27 KM |