FI
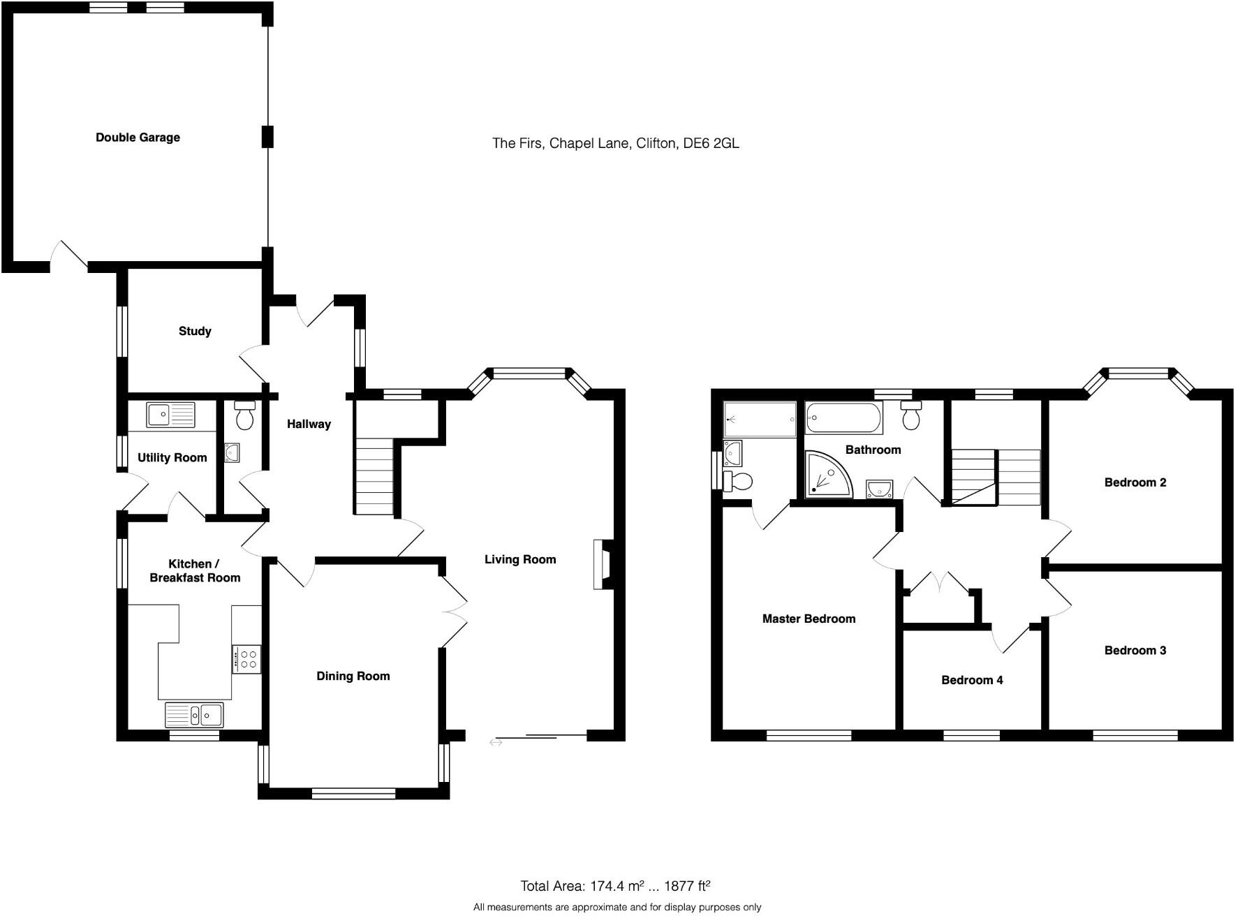
The Firs, Chapel Lane, Clifton, DE6 2GL
By Fidler Taylor
£ 750,000
Reviews
3 out of 5 stars
Fidler Taylor says ..
An excellent, individual and well-designed four bedroomed detached residence built in the late 1980s, occupying an enviable position within the sought after village of Clifton, enjoying south-westerly facing gardens overlooking open countryside.
Property Oracle says ..
Therefore, we give this property 7 / 10. *Disclaimer: This is our option and does constitute a recommendation or financial advice. Do your own research. *
- Price
- 6
- Condition
- 7
- Location
- 7
- Land
- 8
- Bedrooms
- 4
- Bathrooms
- 2
The heatmap indicates the level of crime in the area. The color of the heatmap indicates the crime severity and recency.
Metrics Year-on-Year
- Average area value
- 230,000.00 £Decreased by 5.21 %
- Average area rental value
- 1,183.00 £/moIncreased by 14.30 %
- Est rental Yield
- 6.17 %Increased by 20.51 %
- Crime Rate
- 0.00 %
from 242,632.00 £
from 1,035.00 £/mo
from 5.12 %
from 0.00 %
Agent Activity
Fidler Taylor created the listing.
Nearby Schools
| Name | Type | Ofsted | Distance |
|---|---|---|---|
| Clifton Cofe Primary School | Voluntary Controlled School | Good | 0.29 KM |
| St Oswald'S Cofe Primary School | Voluntary Controlled School | Good | 2.43 KM |
| Ashbourne Hilltop Primary And Nursery School | Community School | Requires improvement | 2.95 KM |
| Queen Elizabeth'S Grammar School | Academy Converter | Good | 3.65 KM |
| Ashbourne Primary School | Community School | Good | 3.78 KM |
Images
Nearby Streets
| Name | Average Price | Average Sqft | Distance |
|---|---|---|---|
| Church View | £ 395,000 | 0 | 0.00 KM |
| South View | £ 0 | 0 | 0.00 KM |
| West View | £ 0 | 0 | 0.00 KM |
| Mayfield Road | £ 143,781 | 0 | 0.00 KM |
Nearby Listings
| Address | Price | Type | Score | Distance |
|---|---|---|---|---|
| The Firs, Chapel Lane, Clifton, DE6 2GL | £ 750,000 | BUY | 7 / 10 | 0.00 KM |
| Church View, Clifton, Ashbourne | £ 500,000 | BUY | 7 / 10 | 0.12 KM |
| Cock Hill, Clifton | £ 465,000 | BUY | 7 / 10 | 0.23 KM |
| 3 Cock Hill, Clifton, Ashbourne, Derbyshire, DE6 | £ 300,000 | BUY | 7 / 10 | 0.25 KM |
| The Fairways, Clifton, DE6 | £ 570,000 | BUY | 8 / 10 | 0.31 KM |
Nearby Properties
| Address | Price | Distance |
|---|---|---|
| 6 Church View | £ 210,000 | 0.10 KM |
| Willowbrook | £ 1,185,500 | 0.10 KM |
| 5 Church View | £ 139,000 | 0.10 KM |
| 2 Church View | £ 210,000 | 0.10 KM |
| 4 Church View | £ 60,000 | 0.10 KM |