Chancellors says ..
Forming part of this popular modern gated development we offer this second floor purpose built apartment. The property is chain free and offers the following accommodation:
Property Oracle says ..
This two-bedroom, two-bathroom apartment in Hendon, NW4, is situated in a modern gated development. The apartment benefits from built-in wardrobes, a modern kitchen, and what appears to be a spacious living area with wood flooring. The photos reveal a clean and generally well-maintained interior, though some minor cosmetic upgrades might improve its appeal. While the apartment itself appears in fair condition, the provided external views suggest a clean and well-kept complex. The location is attractive due to its proximity to schools, although it’s worth noting that the nearest train station is a reasonable distance away (2.86km from Hendon station). The absence of a private garden or significant outdoor space is a notable limitation. In summary, this property appears to be an appealing option for buyers seeking a modern apartment in a relatively convenient location but with limited outdoor space. More detailed information on the property’s precise location within the development and the condition of some areas not readily visible in the pictures would further refine this assessment.
Therefore, we give this property 5 / 10. *Disclaimer: This is our option and does constitute a recommendation or financial advice. Do your own research. *
- Price
- 7
- Condition
- 6
- Location
- 7
- Land
- 1
- Bedrooms
- 2
- Bathrooms
- 2
- Sqft (est)
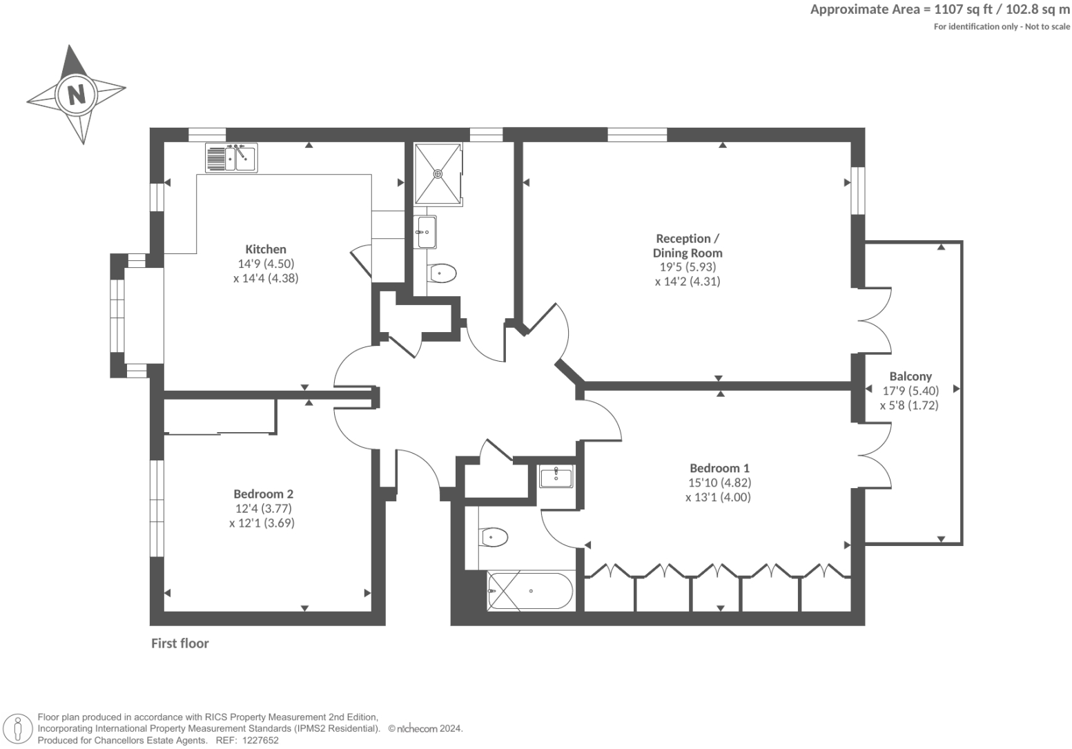
- 1,107.00
The heatmap indicates the level of crime in the area. The color of the heatmap indicates the crime severity and recency.
Metrics Year-on-Year
- Average area value
- 502,893.00 £Increased by 16.71 %
- Est sale value
- 363,096.00 £Increased by 0.92 %
- Average area rental value
- 1,587.00 £/moDecreased by 12.80 %
- Est letting value
- 1,107.00 £/moUnchanged by 0.00 %
- Est rental Yield
- 3.79 %Decreased by 25.25 %
- Crime Rate
- 4.00 %Unchanged by 0.00 %
Agent Activity
Chancellors created the listing.
Nearby Schools
| Name | Type | Ofsted | Distance |
|---|---|---|---|
| Hendon Preparatory School | Other Independent School | 0.36 KM | |
| Kisharon College | Miscellaneous | 0.36 KM | |
| Hasmonean High School For Boys | Academy Converter | Outstanding | 0.39 KM |
| Nancy Reuben Primary School | Other Independent School | 0.53 KM | |
| Bell Lane Primary School | Community School | Requires improvement | 0.77 KM |
Images
Nearby Streets
| Name | Average Price | Average Sqft | Distance |
|---|---|---|---|
| North Street | £ 0 | 0 | 0.00 KM |
| Hillcrest Gardens | £ 0 | 0 | 0.00 KM |
| Church End | £ 0 | 0 | 0.00 KM |
| Bethel Close | £ 0 | 0 | 0.00 KM |
| Brent Green | £ 0 | 0 | 0.00 KM |
Nearby Transport
| Name | NLC | TLC | Distance |
|---|---|---|---|
| Hendon | 1522 | HEN | 2.86 KM |
| Cricklewood | 1519 | CRI | 4.03 KM |
| Mill Hill Broadway | 1527 | MIL | 4.11 KM |
| Brondesbury | 1437 | BSY | 5.72 KM |
| West Hampstead Thameslink | 1525 | WHP | 5.83 KM |
Nearby Listings
| Address | Price | Type | Score | Distance |
|---|---|---|---|---|
| Parson Street, Hendon, NW4 | £ 650,000 | BUY | 5 / 10 | 0.00 KM |
| HENDON HALL COURT, PARSON STREET, HENDON, NW4 | £ 399,950 | BUY | 6 / 10 | 0.04 KM |
| Parson Street, Hendon | £ 525,000 | BUY | 5 / 10 | 0.04 KM |
| Parson Street, Hendon | £ 550,000 | BUY | 4 / 10 | 0.07 KM |
| Hendon Hall Court, NW4 | £ 375,000 | BUY | 5 / 10 | 0.07 KM |
Nearby Properties
| Address | Price | Distance |
|---|---|---|
| 4 Westchester Drive | £ 765,750 | 0.12 KM |
| 13 Westchester Drive | £ 720,000 | 0.12 KM |
| 11 Westchester Drive | £ 705,296 | 0.12 KM |
| 16 Westchester Drive | £ 860,000 | 0.12 KM |
| 10 Westchester Drive | £ 555,000 | 0.14 KM |