Mayflower Drive , Binley, Coventry
By Cloud9 Estates Ltd
£ 210,000
Reviews
2 out of 5 stars
Cloud9 Estates Ltd says ..
Ideal as a first time buy to create your perfect three bedroom family home, includes a conservatory and garage to the rear. Benefits from a bathroom and separate W/C and a low maintenance rear garden.
Property Oracle says ..
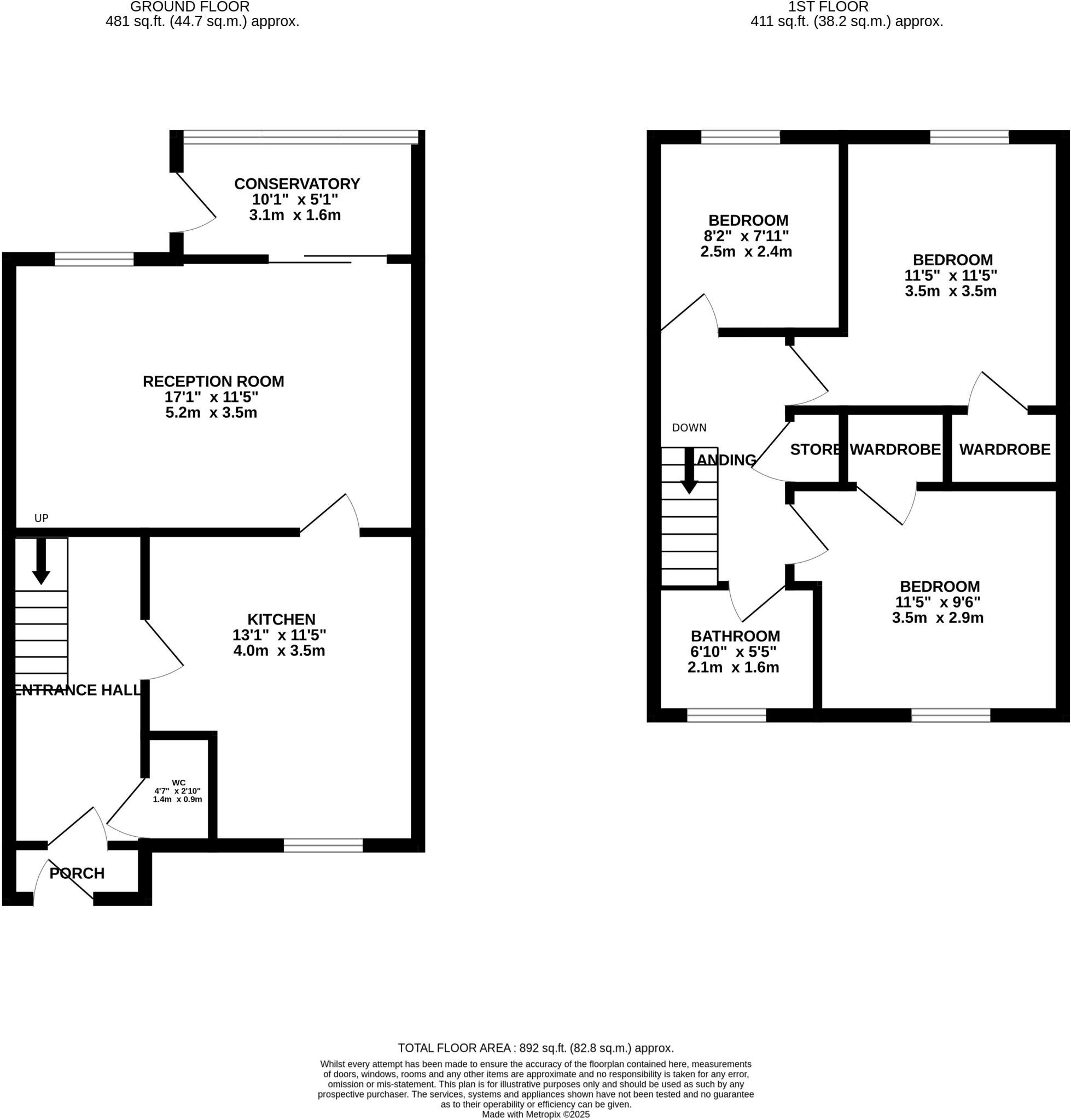
The property is a 3-bedroom terraced house located in Binley, Coventry, with a list price of £210,000. The property has 892 sqft of living space and a small garden. The property’s location in Binley, Coventry, places it within reasonable proximity to several schools, including St Gregory’s Catholic Primary School (rated ‘Good’ by Ofsted) and several others within a 1km radius. Transportation links to Coventry city centre are also relatively close, approximately 6km to Coventry Arena train station. The area has a mix of property types and price points, with some properties commanding significantly higher prices, suggesting potential for future property value appreciation. However, without further information on the specific amenities and services available in the immediate vicinity, a definitive location score is difficult to assign. Based on the provided images, the property appears to be in need of some modernisation. The kitchen and bathrooms show signs of age and require updating. The décor throughout is dated and would benefit from refurbishment. The overall condition is fair, but significant improvements would enhance its appeal and market value. The property includes a small paved rear garden, which is a positive aspect. However, the size is limited, and the overall land area is relatively small for a terraced property. Considering the list price of £210,000, the average price in the area is £259,799, and the average price per sqft is £284. The property’s size of 892 sqft suggests a price of approximately £253,000 based on the average price per sqft. However, this calculation does not account for the condition of the property, which requires modernisation, and the relatively small garden. Therefore, while the list price is below the average for the area, it may still reflect a reasonable price considering the necessary renovations. A more precise price assessment would require a detailed survey and consideration of comparable properties in similar condition.
Therefore, we give this property 4 / 10. *Disclaimer: This is our option and does constitute a recommendation or financial advice. Do your own research. *
- Price
- 6
- Condition
- 5
- Location
- 0
- Land
- 3
- Bedrooms
- 3
- Bathrooms
- 1
- Sqft (est)
- 892.00
The heatmap indicates the level of crime in the area. The color of the heatmap indicates the crime severity and recency.
Metrics Year-on-Year
- Average area value
- 282,000.00 £Increased by 12.12 %
- Est sale value
- 256,004.00 £Increased by 7.49 %
- Average area rental value
- 952.00 £/moDecreased by 13.30 %
- Est letting value
- 0.00 £/moDecreased by 100.00 %
- Est rental Yield
- 4.05 %Decreased by 22.71 %
- Crime Rate
- 5.00 %Unchanged by 0.00 %
Agent Activity
Cloud9 Estates Ltd created the listing.
Nearby Schools
| Name | Type | Ofsted | Distance |
|---|---|---|---|
| Richard Lee Primary School | Academy Converter | 0.32 KM | |
| St Gregory'S Catholic Primary School | Academy Converter | Good | 0.44 KM |
| Richard Lee Children'S Centre | Children's Centre | 0.46 KM | |
| Ernesford Grange Primary School | Community School | Good | 0.85 KM |
| Caludon Castle School | Academy Converter | Good | 1.00 KM |
Images
Nearby Streets
| Name | Average Price | Average Sqft | Distance |
|---|---|---|---|
| Brookedale Avenue | £ 0 | 0 | 0.00 KM |
| Bronte Walk | £ 0 | 0 | 0.00 KM |
| The Pavilion | £ 310,000 | 0 | 0.00 KM |
| Colebrook Close | £ 245,000 | 0 | 0.00 KM |
| Binley Cycleway | £ 0 | 0 | 0.00 KM |
Nearby Transport
| Name | NLC | TLC | Distance |
|---|---|---|---|
| Coventry Arena | 7416 | CAA | 6.26 KM |
| Coventry | 1030 | COV | 6.37 KM |
| Bedworth | 1165 | BEH | 8.25 KM |
Nearby Listings
| Address | Price | Type | Score | Distance |
|---|---|---|---|---|
| Mayflower Drive , Binley, Coventry | £ 210,000 | BUY | 4 / 10 | 0.00 KM |
| Allerton Close, Binley, Coventry, CV2 | £ 190,000 | BUY | 6 / 10 | 0.07 KM |
| Sandgate Crescent, Wyken, Coventry, CV2 | £ 280,000 | BUY | 7 / 10 | 0.08 KM |
| Mayflower Drive, Coventry | £ 254,750 | BUY | 7 / 10 | 0.09 KM |
| Crakston Close, Coventry, CV2 | £ 260,000 | BUY | 5 / 10 | 0.11 KM |
Nearby Properties
| Address | Price | Distance |
|---|---|---|
| 51 Mayflower Drive | £ 160,000 | 0.00 KM |
| 109 Mayflower Drive | £ 53,000 | 0.00 KM |
| 103 Mayflower Drive | £ 160,000 | 0.00 KM |
| 3 Mayflower Drive | £ 380,000 | 0.00 KM |
| 63 Mayflower Drive | £ 49,000 | 0.00 KM |