Lawson Grange, Holly Road North, Wilmslow
By Gascoigne Halman
£ 460,000
Reviews
3 out of 5 stars
Gascoigne Halman says ..
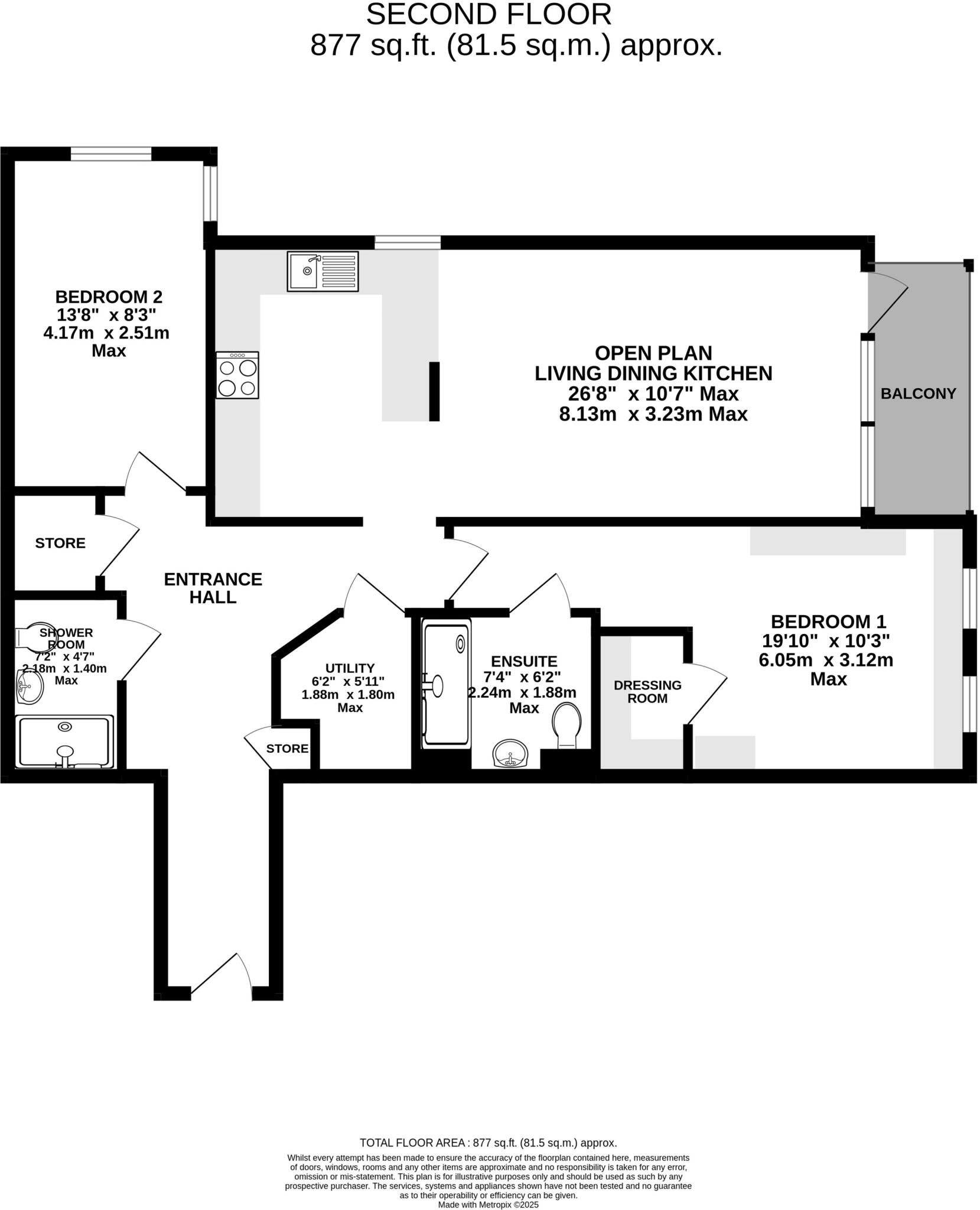
A spacious 'light and airy' second floor retirement apartment boasting beautifully appointed accommodation with two double bedrooms, two stylish shower rooms and private South facing balcony. Situated on one of Wilmslow's most sought after tree-lined roads moments from Wilmslow town c...
Property Oracle says ..
This is a modern two-bedroom apartment in Lawson Grange, Wilmslow East. The property is in excellent condition, featuring a modern kitchen and bathrooms. It benefits from a balcony and access to communal gardens. The location is convenient, with good schools and transportation links nearby. However, the price seems high for the size of the apartment.
Therefore, we give this property 7 / 10. *Disclaimer: This is our option and does constitute a recommendation or financial advice. Do your own research. *
- Price
- 6
- Condition
- 9
- Location
- 7
- Land
- 7
- Bedrooms
- 2
- Bathrooms
- 2
- Sqft (est)
- 64.08
The heatmap indicates the level of crime in the area. The color of the heatmap indicates the crime severity and recency.
Metrics Year-on-Year
- Average area value
- 1,168,333.00 £Increased by 51.76 %
- Est sale value
- 37,807.20 £Increased by 37.53 %
- Average area rental value
- 8,690.00 £/moIncreased by 118.12 %
- Est letting value
- 256.32 £/moIncreased by 100.00 %
- Est rental Yield
- 8.93 %Increased by 43.80 %
- Crime Rate
- 2.00 %Unchanged by 0.00 %
Agent Activity
Gascoigne Halman created the listing.
Nearby Schools
| Name | Type | Ofsted | Distance |
|---|---|---|---|
| Wilmslow High School | Community School | Good | 0.55 KM |
| Wilmslow Preparatory School | Other Independent School | 0.58 KM | |
| St Anne'S Fulshaw C Of E Primary School | Voluntary Controlled School | Good | 0.93 KM |
| Ashdene Primary School | Community School | Outstanding | 1.48 KM |
| Gorsey Bank Primary School | Academy Converter | Good | 1.59 KM |
Images
Nearby Streets
| Name | Average Price | Average Sqft | Distance |
|---|---|---|---|
| Fulshaw Cross | £ 345,000 | 0 | 0.00 KM |
| Fulshaw Cross | £ 525,000 | 0 | 0.00 KM |
| Queen's Road | £ 299,950 | 0 | 0.00 KM |
| Hawthorn Square | £ 0 | 0 | 0.00 KM |
| Grove Street | £ 135,000 | 0 | 0.00 KM |
Nearby Transport
| Name | NLC | TLC | Distance |
|---|---|---|---|
| Wilmslow | 2774 | WML | 1.11 KM |
| Alderley Edge | 2760 | ALD | 2.02 KM |
| Styal | 2868 | SYA | 3.01 KM |
| Handforth | 2767 | HTH | 3.62 KM |
| Heald Green | 2860 | HDG | 5.30 KM |
Nearby Listings
| Address | Price | Type | Score | Distance |
|---|---|---|---|---|
| Lawson Grange, Holly Road North, Wilmslow | £ 425,000 | BUY | 8 / 10 | 0.00 KM |
| Lawson Grange, Holly Road North, Wilmslow | £ 460,000 | BUY | 7 / 10 | 0.00 KM |
| Lawson Grange, Holly Road North, Wilmslow | £ 300,000 | BUY | Unknown | 0.03 KM |
| Lawson Grange, Holly Road North, Wilmslow | £ 350,000 | BUY | 7 / 10 | 0.03 KM |
| Holly Road North, Wilmslow, Cheshire, SK9 | £ 1,400,000 | BUY | 7 / 10 | 0.07 KM |
Nearby Properties
| Address | Price | Distance |
|---|---|---|
| 1e Holly Road North | £ 590,000 | 0.06 KM |
| 1d Holly Road North | £ 350,000 | 0.07 KM |
| 1a Holly Road North | £ 460,000 | 0.07 KM |
| 7 Holly Road North | £ 760,000 | 0.07 KM |
| 19 Holly Road North | £ 800,000 | 0.07 KM |