DP
Fortescue Road, Colliers Wood, SW19
By DPS London
£ 450,000
Reviews
3 out of 5 stars
DPS London says ..
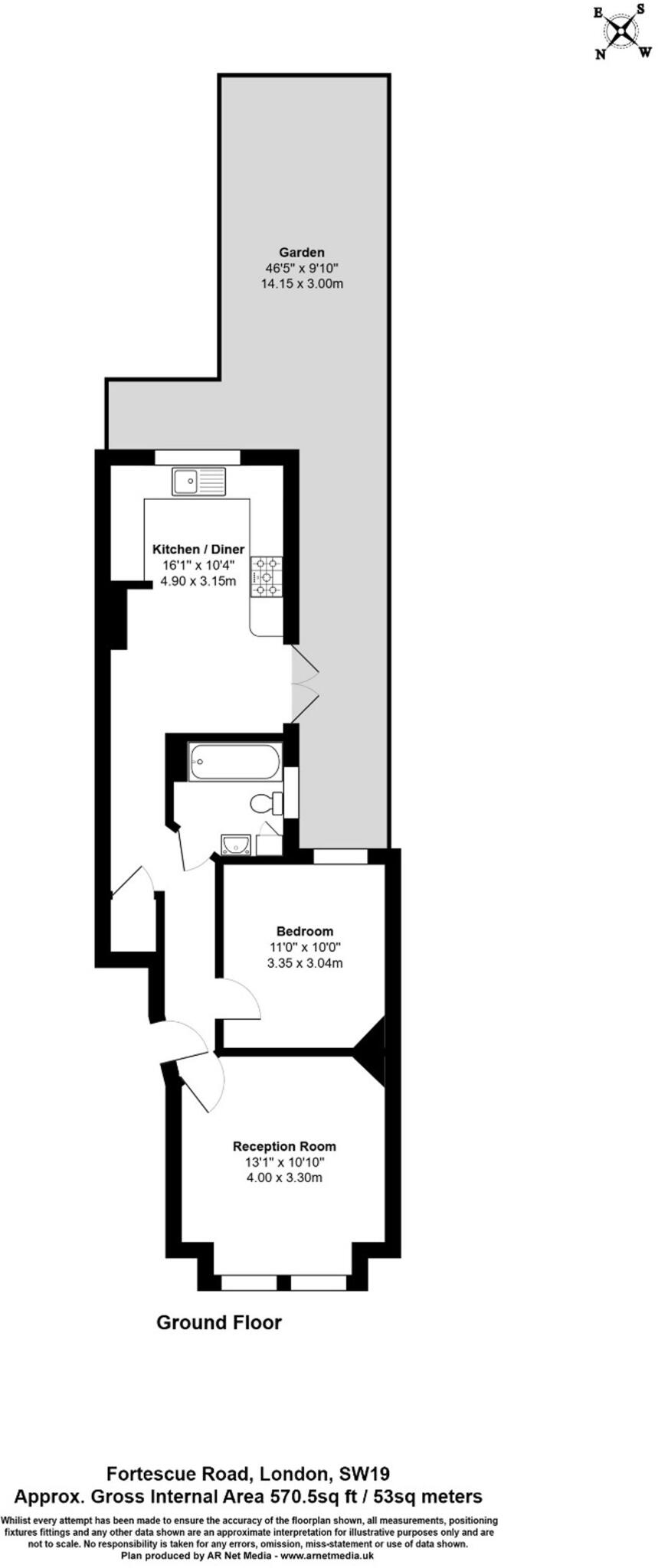
A beautifully renovated one-bedroom ground floor flat with a private south-facing garden and a share of freehold, set on a quiet residential road in Colliers Wood.Tucked away on the ever-popular Fortescue Road, this stylish flat is ideal for a first-time buyer looking for a home ready to move int...
Property Oracle says ..
Therefore, we give this property 7 / 10. *Disclaimer: This is our option and does constitute a recommendation or financial advice. Do your own research. *
- Price
- 8
- Condition
- 8
- Location
- 8
- Land
- 7
- Bedrooms
- 1
- Bathrooms
- 1
The heatmap indicates the level of crime in the area. The color of the heatmap indicates the crime severity and recency.
Metrics Year-on-Year
- Average area value
- 578,333.00 £Increased by 10.22 %
- Average area rental value
- 2,070.00 £/moIncreased by 12.32 %
- Est rental Yield
- 4.30 %Increased by 2.14 %
- Crime Rate
- 3.00 %Unchanged by 0.00 %
from 524,724.00 £
from 1,843.00 £/mo
from 4.21 %
from 3.00 %
Agent Activity
DPS London created the listing.
Nearby Schools
| Name | Type | Ofsted | Distance |
|---|---|---|---|
| Singlegate Primary School | Community School | Outstanding | 0.37 KM |
| Liberty Primary | Community School | Good | 0.73 KM |
| Church Road Children'S Centre | Children's Centre Linked Site | 0.91 KM | |
| Sellincourt Primary School | Community School | Good | 1.05 KM |
| Steers Mead Children'S Centres | Children's Centre | 1.07 KM |
Images
Nearby Streets
| Name | Average Price | Average Sqft | Distance |
|---|---|---|---|
| Breakspear Gardens | £ 0 | 0 | 0.00 KM |
| Holmbury Court | £ 0 | 0 | 0.00 KM |
| Watson Close | £ 375,000 | 0 | 0.00 KM |
| North Place | £ 0 | 0 | 0.00 KM |
| Douglas Court | £ 0 | 0 | 0.00 KM |
Nearby Transport
| Name | NLC | TLC | Distance |
|---|---|---|---|
| Tooting | 5389 | TOO | 1.45 KM |
| Haydons Road | 5289 | HYR | 1.99 KM |
| Mitcham Eastfields | 5069 | MTC | 2.29 KM |
| Mitcham Junction | 5427 | MIJ | 3.09 KM |
| Earlsfield | 5584 | EAD | 3.34 KM |
Nearby Listings
| Address | Price | Type | Score | Distance |
|---|---|---|---|---|
| Fortescue Road, Colliers Wood, SW19 | £ 450,000 | BUY | 7 / 10 | 0.00 KM |
| Fortescue Road, Colliers Wood, London, SW19 | £ 450,000 | BUY | Unknown | 0.01 KM |
| Fortescue Road, Colliers Wood | £ 725,000 | BUY | Unknown | 0.02 KM |
| Clarendon Road, Colliers Wood | £ 785,000 | BUY | Unknown | 0.04 KM |
| Clarendon Road, Colliers Wood | £ 990,000 | BUY | 7 / 10 | 0.07 KM |
Nearby Properties
| Address | Price | Distance |
|---|---|---|
| 100 Clarendon Road | £ 100,000 | 0.08 KM |
| 74 Clarendon Road | £ 300,000 | 0.08 KM |
| 78 Clarendon Road | £ 735,000 | 0.08 KM |
| 70a Clarendon Road | £ 515,000 | 0.08 KM |
| 104 Clarendon Road | £ 823,000 | 0.08 KM |