Yopa says ..
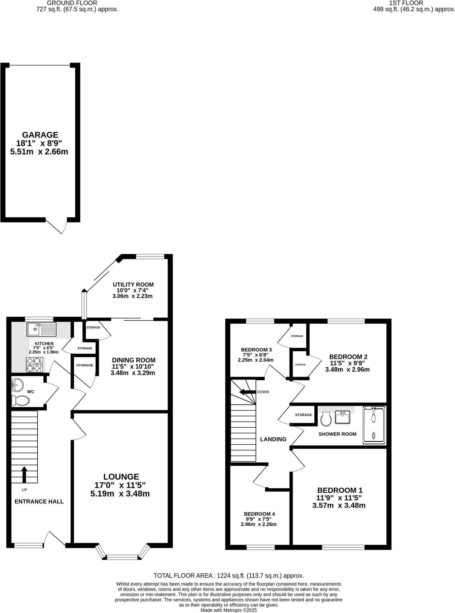
An extended and spacious 4 bedroom semi detached family home. Ideally located to be within walking distance to good local shops, schools and Basingstoke mainline train station and Festival Place. Garage and driveway to the rear, 2 reception rooms, refitted 3 piece shower room and 20ft entrance hall
Property Oracle says ..
The property is located in Basingstoke, an area with good transport links and schools. The property itself is in reasonable condition, though some cosmetic updates may be desirable. It benefits from a small garden. The list price is slightly above average for the area, but may be justified by the size and condition of the property and the inclusion of a garden. More comparative market data would be beneficial for a conclusive price assessment.
Therefore, we give this property 6 / 10. *Disclaimer: This is our option and does constitute a recommendation or financial advice. Do your own research. *
- Price
- 7
- Condition
- 7
- Location
- 8
- Land
- 4
- Bedrooms
- 4
- Bathrooms
- 1
- Sqft (est)
- 1,223.86
The heatmap indicates the level of crime in the area. The color of the heatmap indicates the crime severity and recency.
Metrics Year-on-Year
- Average area value
- 306,071.00 £Decreased by 10.61 %
- Est sale value
- 449,156.62 £Increased by 25.26 %
- Average area rental value
- 1,246.00 £/moDecreased by 2.58 %
- Est letting value
- 1,223.86 £/moUnchanged by 0.00 %
- Est rental Yield
- 4.89 %Increased by 9.15 %
- Crime Rate
- 10.00 %Unchanged by 0.00 %
Agent Activity
Yopa created the listing.
Nearby Schools
| Name | Type | Ofsted | Distance |
|---|---|---|---|
| Dove House School | Academy Special Converter | Outstanding | 0.34 KM |
| The Vyne Community School | Community School | Good | 0.48 KM |
| Maple Ridge School | Community Special School | Good | 0.54 KM |
| South View Junior School | Community School | Good | 0.62 KM |
| South View Infant And Nursery School | Community School | Good | 0.65 KM |
Images
Nearby Streets
| Name | Average Price | Average Sqft | Distance |
|---|---|---|---|
| Pear Tree Way | £ 0 | 0 | 0.00 KM |
| Wordsworth Close | £ 0 | 0 | 0.00 KM |
| Walnut Way | £ 0 | 0 | 0.00 KM |
| Abbey Court | £ 0 | 0 | 0.00 KM |
| Darcy Close | £ 400,000 | 0 | 0.00 KM |
Nearby Transport
| Name | NLC | TLC | Distance |
|---|---|---|---|
| Basingstoke | 5520 | BSK | 1.06 KM |
| Bramley (Hampshire) | 5500 | BMY | 6.51 KM |
Nearby Listings
| Address | Price | Type | Score | Distance |
|---|---|---|---|---|
| Hailstone Road, Basingstoke, RG21 | £ 350,000 | BUY | 6 / 10 | 0.00 KM |
| Lansley Road, Basingstoke | £ 410,000 | BUY | 6 / 10 | 0.08 KM |
| Stratfield Road, Basingstoke | £ 425,000 | BUY | 6 / 10 | 0.11 KM |
| Normanton Road, Basingstoke, Hampshire | £ 325,000 | BUY | 7 / 10 | 0.12 KM |
| Stratfield Road, Basingstoke, Hampshire, RG21 | £ 425,000 | BUY | 6 / 10 | 0.13 KM |
Nearby Properties
| Address | Price | Distance |
|---|---|---|
| 26 Hailstone Road | £ 285,000 | 0.01 KM |
| 14 Hailstone Road | £ 265,000 | 0.01 KM |
| 18 Hailstone Road | £ 227,000 | 0.01 KM |
| 24 Hailstone Road | £ 245,000 | 0.01 KM |
| 36 Hailstone Road | £ 273,000 | 0.01 KM |