Grenfell Road, Manchester, Greater Manchester, M20
By British Homesellers
£ 425,000
Reviews
3 out of 5 stars
British Homesellers says ..
A Charming Victorian Terrace in the Heart of Didsbury Village. This beautifully presented Victorian terrace blends period character with modern living, perfectly positioned in the centre of Didsbury Village. A superb selection of independent shops, bars, restaurants, and cafés ...
Property Oracle says ..
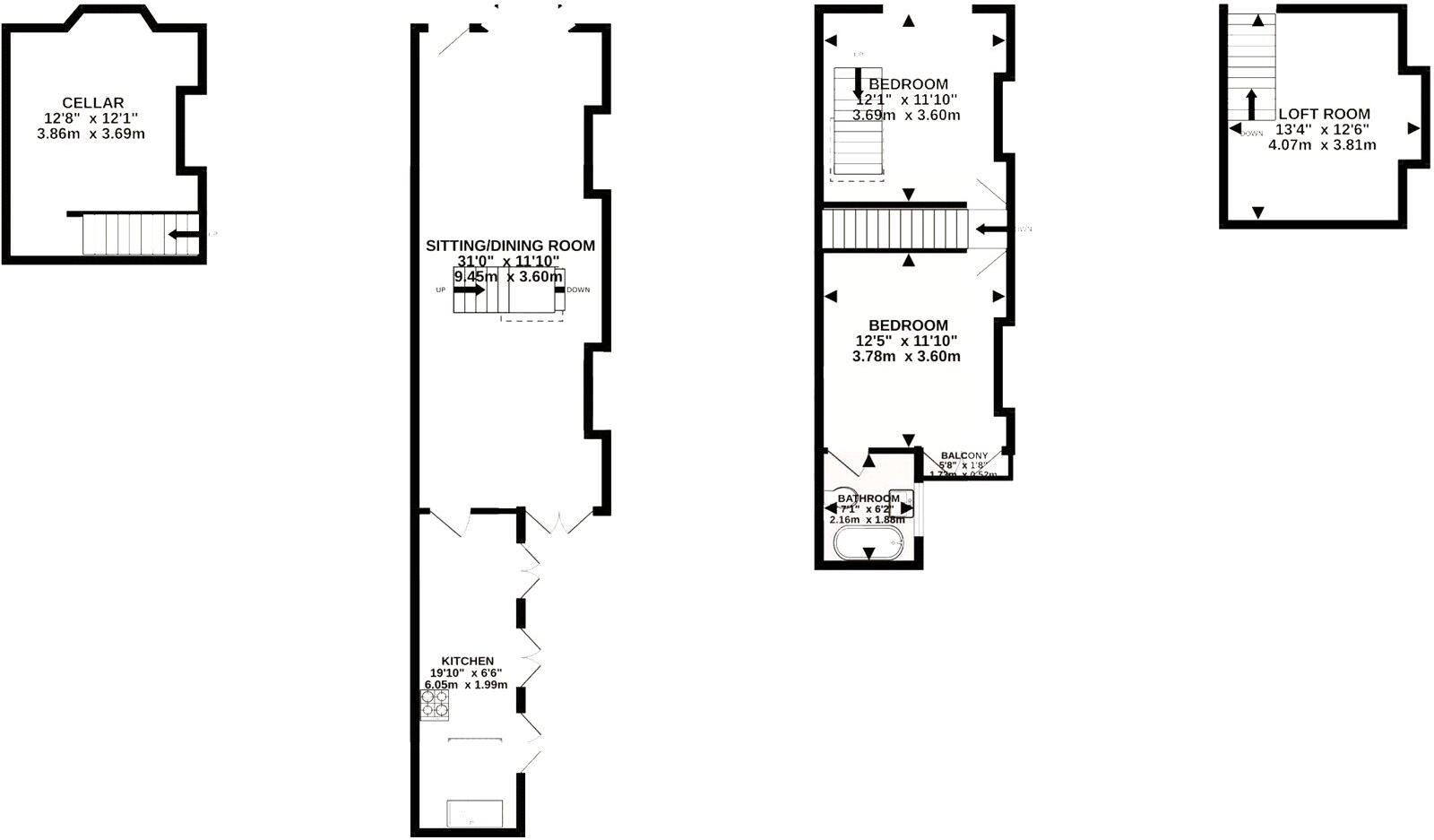
This terraced property on Grenfell Road, Didsbury West, offers a blend of traditional charm and modern living. The house benefits from its proximity to local schools, transportation and shops. The property has a small outdoor area. The house is in generally good condition, but some areas could benefit from cosmetic improvements. Overall, this property presents a good opportunity for buyers looking for a home in a popular and well-connected location.
Therefore, we give this property 6 / 10. *Disclaimer: This is our option and does constitute a recommendation or financial advice. Do your own research. *
- Price
- 7
- Condition
- 7
- Location
- 8
- Land
- 4
- Bedrooms
- 2
- Bathrooms
- 1
- Sqft (est)
- 1,149.18
The heatmap indicates the level of crime in the area. The color of the heatmap indicates the crime severity and recency.
Metrics Year-on-Year
- Average area value
- 672,916.00 £Increased by 59.57 %
- Est sale value
- 586,081.80 £Increased by 35.64 %
- Average area rental value
- 1,415.00 £/moIncreased by 3.89 %
- Est letting value
- 1,149.18 £/moUnchanged by 0.00 %
- Est rental Yield
- 2.52 %Decreased by 35.05 %
- Crime Rate
- 0.00 %
Agent Activity
British Homesellers created the listing.
Nearby Schools
| Name | Type | Ofsted | Distance |
|---|---|---|---|
| Didsbury Cofe Primary School | Academy Converter | 0.47 KM | |
| Didsbury Park | Children's Centre | 0.71 KM | |
| Beaver Road Primary School | Academy Converter | 0.78 KM | |
| West Didsbury Ce Primary School | Free Schools | Good | 1.06 KM |
| Moor Allerton Preparatory School | Other Independent School | 1.06 KM |
Images
Nearby Streets
| Name | Average Price | Average Sqft | Distance |
|---|---|---|---|
| Eversley Road | £ 665,000 | 0 | 0.00 KM |
| Victoria Avenue | £ 0 | 0 | 0.00 KM |
| Oakfield Road | £ 0 | 0 | 0.00 KM |
| King's Lynn Close | £ 448,333 | 0 | 0.00 KM |
| Ford Lodge | £ 750,000 | 0 | 0.00 KM |
Nearby Transport
| Name | NLC | TLC | Distance |
|---|---|---|---|
| East Didsbury | 2949 | EDY | 1.69 KM |
| Burnage | 2945 | BNA | 2.16 KM |
| Gatley | 2953 | GTY | 2.76 KM |
| Mauldeth Road | 2867 | MAU | 3.32 KM |
| Heald Green | 2860 | HDG | 5.35 KM |
Nearby Listings
| Address | Price | Type | Score | Distance |
|---|---|---|---|---|
| Grenfell Road, Manchester, Greater Manchester, M20 | £ 425,000 | BUY | 6 / 10 | 0.00 KM |
| Grenfell Road, Didsbury, M20 | £ 500,000 | BUY | Unknown | 0.00 KM |
| Eversley Road, Didsbury Village | £ 725,000 | BUY | 6 / 10 | 0.04 KM |
| Osborne Street, Didsbury Village, M20 | £ 825,000 | BUY | 7 / 10 | 0.05 KM |
| Churchwood Road, Manchester, Greater Manchester, M20 | £ 475,000 | BUY | 7 / 10 | 0.09 KM |
Nearby Properties
| Address | Price | Distance |
|---|---|---|
| 6 Grenfell Road | £ 725,000 | 0.01 KM |
| 14 Grenfell Road | £ 732,000 | 0.01 KM |
| 12 Grenfell Road | £ 355,000 | 0.01 KM |
| 30 Grenfell Road | £ 318,000 | 0.01 KM |
| 8 Grenfell Road | £ 810,000 | 0.01 KM |