George Street, Whalley, Ribble Valley
By Athertons
£ 275,000
Reviews
3 out of 5 stars
Athertons says ..
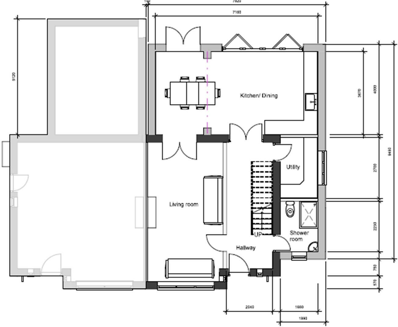
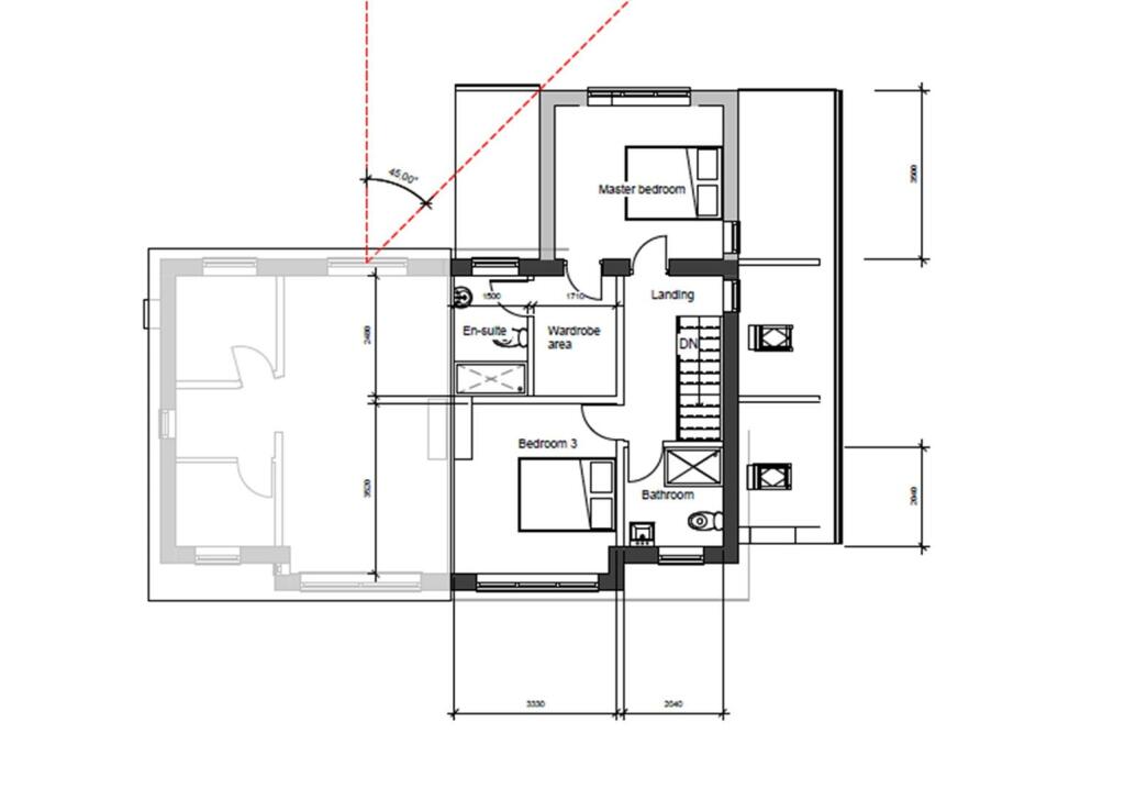
Athertons Property & Land are delighted to bring to market this spacious semi-detached property sat on a fantastically sized plot with planning approved for a substantial single storey extension and erection of garage building in a very popular residential area of Whalley village. The house requi...
Property Oracle says ..
This property is a 3-bedroom semi-detached house located in Whalley, Lancashire. It benefits from a large plot size of 768.54 sqft and planning permission for a substantial extension and garage. The property is listed at £275,000, which is below the average price for the area (£337,511). However, the average property size in the area is significantly larger (1007 sqft vs 727 sqft). The property appears to be in need of some modernisation, as seen in the provided photos. The location is described as popular and convenient, with nearby schools and transportation links. The presence of a garden adds to the property’s appeal. Overall, the property presents a potentially good value opportunity for buyers willing to undertake some renovations.
Therefore, we give this property 7 / 10. *Disclaimer: This is our option and does constitute a recommendation or financial advice. Do your own research. *
- Price
- 7
- Condition
- 6
- Location
- 8
- Land
- 8
- Bedrooms
- 3
- Bathrooms
- 1
- Sqft (est)
- 727.21
- Lot (est)
- 768.54
The heatmap indicates the level of crime in the area. The color of the heatmap indicates the crime severity and recency.
Metrics Year-on-Year
- Average area value
- 400,774.00 £Decreased by 17.12 %
- Est sale value
- 276,339.80 £Decreased by 27.06 %
- Average area rental value
- 1,410.00 £/moIncreased by 93.68 %
- Est letting value
- 727.21 £/mo
- Est rental Yield
- 4.22 %Increased by 133.15 %
- Crime Rate
- 94.00 %Unchanged by 0.00 %
Agent Activity
Athertons created the listing.
Nearby Schools
| Name | Type | Ofsted | Distance |
|---|---|---|---|
| Whalley Church Of England Primary School | Voluntary Aided School | Good | 0.21 KM |
| Spring Wood Children'S Centre | Children's Centre Linked Site | 0.48 KM | |
| Oakhill School | Other Independent School | 1.08 KM | |
| St Augustine'S Roman Catholic High School, Billington | Voluntary Aided School | Outstanding | 2.25 KM |
| Barrow Urc Primary School | Voluntary Controlled School | Outstanding | 2.48 KM |
Images
Nearby Streets
| Name | Average Price | Average Sqft | Distance |
|---|---|---|---|
| Manor Road | £ 0 | 0 | 0.00 KM |
| Jubilee Drive | £ 0 | 0 | 0.00 KM |
| Fountain Way | £ 249,995 | 0 | 0.00 KM |
| Treetops | £ 0 | 0 | 0.00 KM |
| Bennetts Close | £ 0 | 0 | 0.00 KM |
Nearby Transport
| Name | NLC | TLC | Distance |
|---|---|---|---|
| Whalley (Lancashire) | 2736 | WHE | 0.59 KM |
| Langho | 2735 | LHO | 4.95 KM |
| Clitheroe | 2574 | CLH | 5.90 KM |
| Rishton | 2580 | RIS | 6.63 KM |
| Church And Oswaldtwistle | 2556 | CTW | 8.15 KM |
Nearby Listings
| Address | Price | Type | Score | Distance |
|---|---|---|---|---|
| Station Road, Whalley, Ribble Valley | £ 450,000 | BUY | 7 / 10 | 0.21 KM |
| Brookside Close, Whalley, Ribble Valley | £ 695,000 | BUY | 6 / 10 | 0.23 KM |
| Brookside Close, Whalley, Ribble Valley | £ 675,000 | BUY | 7 / 10 | 0.23 KM |
| Woodlands Drive, Whalley | £ 275,000 | BUY | 7 / 10 | 0.23 KM |
| Corn Mill Mews, Whalley, Ribble Valley | £ 350,000 | BUY | 8 / 10 | 0.24 KM |
Nearby Properties
| Address | Price | Distance |
|---|---|---|
| 4 George Street | £ 249,500 | 0.04 KM |
| 14 George Street | £ 235,000 | 0.04 KM |
| 85 King Street | £ 200,000 | 0.05 KM |
| 77a King Street | £ 90,000 | 0.05 KM |
| 91 King Street | £ 290,000 | 0.05 KM |