Longfield Avenue, Kingsteignton
By Woods Estate Agents & Auctioneers
£ 175,000
Reviews
3 out of 5 stars
Woods Estate Agents & Auctioneers says ..
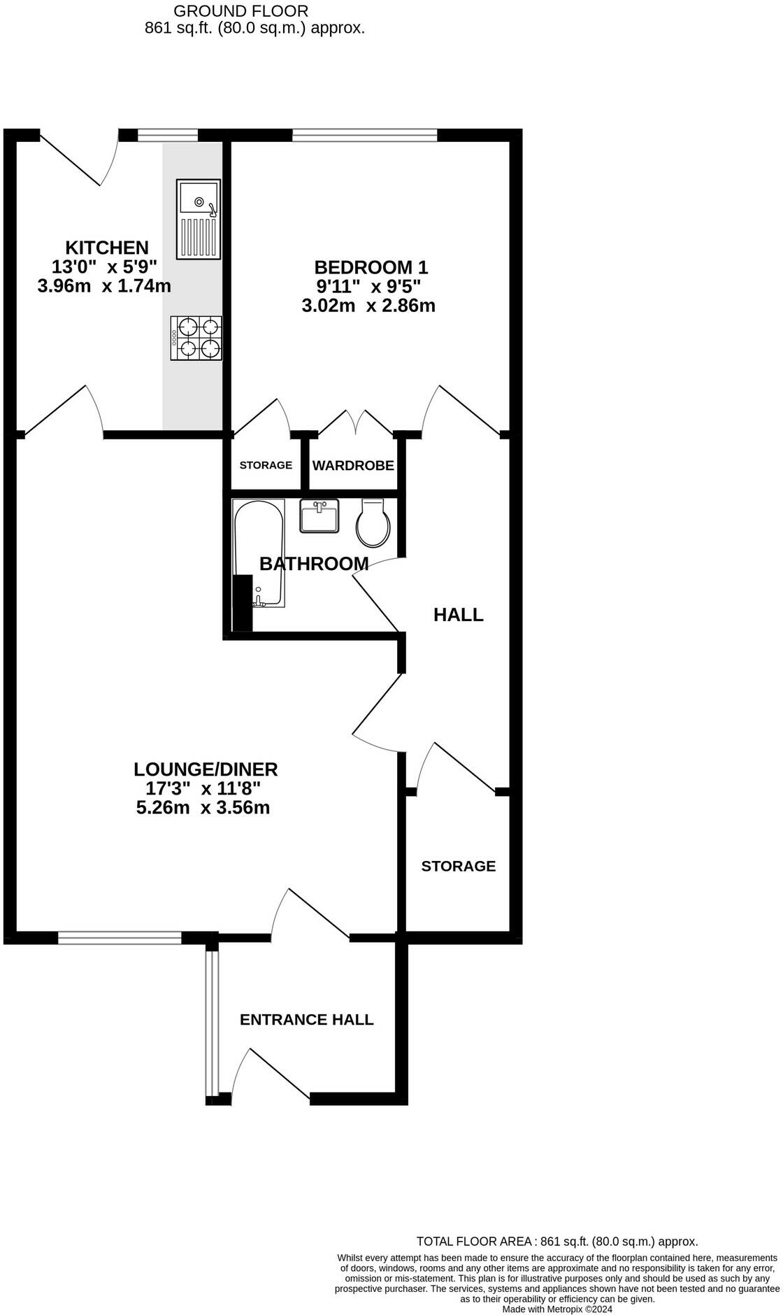
This immaculately presented one bedroom apartment would suit a range of purchasers, from first time buyers, to buy-to-let investors. This property is presented to a very high standard throughout and an internal viewing comes highly recommended to fully appreciate all the property has to offer.
Property Oracle says ..
This one-bedroom property in Kingsteignton, Devon, is presented to a high standard. The property’s interior is notably modern and well-maintained, as evidenced by the photographs showing a stylish and recently updated kitchen and bathroom. The living area and bedroom also benefit from the contemporary design. The small garden provides some private outdoor space. The location is convenient; it offers reasonably close access to local amenities, schools and the railway station in Newton Abbot. While the lack of precise square footage data in the provided information makes a complete comparison with similar properties challenging, the price appears to align with current market trends in this area, given the property’s overall condition and the desirable features such as updated interiors and a convenient location. Potential buyers should be aware that the property is relatively small and the garden is compact, this is a significant factor to consider. Overall, this property would suit a single occupant, a couple, or a buy-to-let investor looking for a move-in ready property in a convenient location.
Therefore, we give this property 6 / 10. *Disclaimer: This is our option and does constitute a recommendation or financial advice. Do your own research. *
- Price
- 7
- Condition
- 9
- Location
- 7
- Land
- 4
- Bedrooms
- 1
- Bathrooms
- 1
- Sqft (est)
- 861.11
The heatmap indicates the level of crime in the area. The color of the heatmap indicates the crime severity and recency.
Metrics Year-on-Year
- Average area value
- 267,143.00 £Decreased by 13.18 %
- Est sale value
- 355,638.43 £Increased by 48.56 %
- Average area rental value
- 1,280.00 £/moIncreased by 3.64 %
- Est letting value
- 861.11 £/moUnchanged by 0.00 %
- Est rental Yield
- 5.75 %Increased by 19.29 %
- Crime Rate
- 13.00 %Unchanged by 0.00 %
Agent Activity
Woods Estate Agents & Auctioneers marked this listing as sold.
Woods Estate Agents & Auctioneers created the listing.
Nearby Schools
| Name | Type | Ofsted | Distance |
|---|---|---|---|
| Rydon Primary School | Academy Converter | Good | 0.59 KM |
| St Michael'S Church Of England Primary School | Voluntary Controlled School | Requires improvement | 1.06 KM |
| Teign School | Academy Converter | Requires improvement | 1.67 KM |
| Kingsteignton School | Free Schools | Good | 1.84 KM |
| Glendinning Academy | Free Schools Special | 2.38 KM |
Images
Nearby Streets
| Name | Average Price | Average Sqft | Distance |
|---|---|---|---|
| Winston Close | £ 0 | 0 | 0.00 KM |
| Teignmouth Road | £ 400,000 | 0 | 0.00 KM |
| Crossley Moor Road | £ 0 | 0 | 0.00 KM |
| Honeywell Road | £ 0 | 0 | 0.00 KM |
| Fore Street | £ 0 | 0 | 0.00 KM |
Nearby Transport
| Name | NLC | TLC | Distance |
|---|---|---|---|
| Newton Abbot | 3426 | NTA | 2.69 KM |
| Torre | 3432 | TRR | 9.74 KM |
Nearby Listings
| Address | Price | Type | Score | Distance |
|---|---|---|---|---|
| Longfield Avenue, Kingsteignton | £ 175,000 | BUY | 6 / 10 | 0.00 KM |
| Gate Tree Close, Kingsteignton, TQ12 3RB | £ 170,000 | BUY | Unknown | 0.09 KM |
| Gate Tree Close, Kingsteignton, Newton Abbot | £ 230,000 | BUY | 7 / 10 | 0.09 KM |
| Longfield Avenue, Kingsteignton | £ 400,000 | BUY | 7 / 10 | 0.12 KM |
| Longfield Avenue, Kingsteignton, Newton Abbot, TQ12 3RA | £ 320,000 | BUY | 7 / 10 | 0.12 KM |
Nearby Properties
| Address | Price | Distance |
|---|---|---|
| 7 Gate Tree Close | £ 199,950 | 0.09 KM |
| 26 Gate Tree Close | £ 110,000 | 0.09 KM |
| 15 Gate Tree Close | £ 135,500 | 0.09 KM |
| 16 Gate Tree Close | £ 152,000 | 0.09 KM |
| 28 Gate Tree Close | £ 118,000 | 0.09 KM |