Quarely Road, Leigh Park
By Archbold & Edwards
£ 239,995
Reviews
3 out of 5 stars
Archbold & Edwards says ..
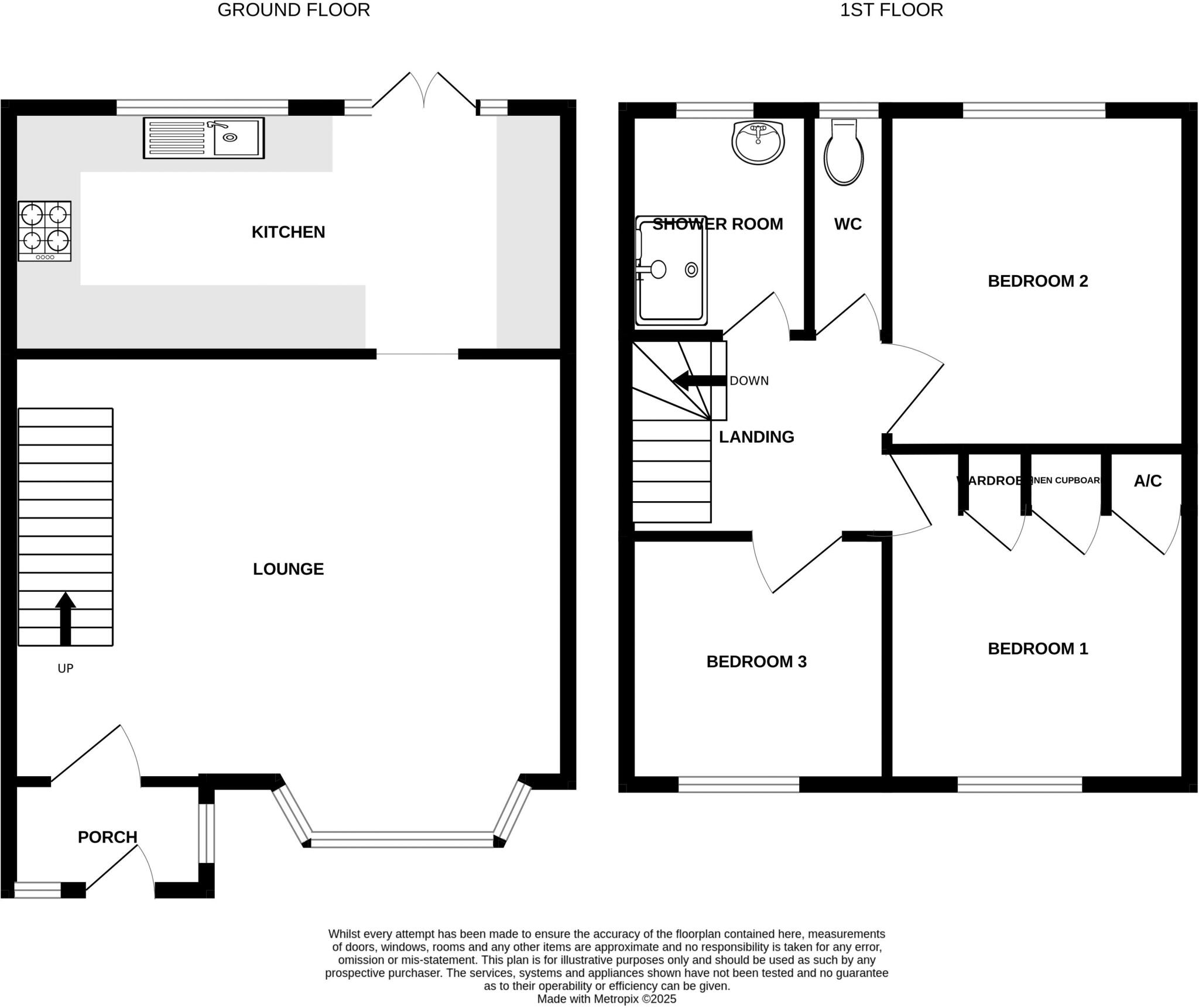
THREE BEDROOM HOME OFFERED WITH NO CHAIN AHEAD LOCATED IN LEIGH PARK. A three bedroom middle terrace house located in Leigh Park, Havant. This property benefits from double glazing, gas central heating system, lounge, modern fitted kitchen, modern wet/shower room, separate W.C, garden front and r...
Property Oracle says ..
This is a three-bedroom terraced house located in Leigh Park, Havant. The property features a modern kitchen and bathroom, suggesting recent updates. While some areas of the house appear dated, the overall condition seems decent. The property includes a garden, although it is mostly paved. The location is reasonably convenient, with schools and transportation within a manageable distance. Considering the property’s size, condition, and location, the list price of £239,995 appears to be in line with the local market.
Therefore, we give this property 6 / 10. *Disclaimer: This is our option and does constitute a recommendation or financial advice. Do your own research. *
- Price
- 7
- Condition
- 6
- Location
- 6
- Land
- 5
- Bedrooms
- 3
- Bathrooms
- 1
- Sqft (est)
- 880.00
The heatmap indicates the level of crime in the area. The color of the heatmap indicates the crime severity and recency.
Metrics Year-on-Year
- Average area value
- 543,000.00 £Increased by 8.02 %
- Est sale value
- 250,800.00 £Decreased by 1.72 %
- Average area rental value
- 1,400.00 £/moDecreased by 23.75 %
- Est letting value
- 0.00 £/moDecreased by 100.00 %
- Est rental Yield
- 3.09 %Decreased by 29.45 %
- Crime Rate
- 5.00 %Unchanged by 0.00 %
Agent Activity
Archbold & Edwards created the listing.
Nearby Schools
| Name | Type | Ofsted | Distance |
|---|---|---|---|
| Prospect School | Community Special School | Good | 0.24 KM |
| Park Community School | Community School | Good | 0.30 KM |
| Park Futures Children'S Centre | Children's Centre Linked Site | 0.86 KM | |
| Warren Park Primary School | Foundation School | Outstanding | 0.96 KM |
| Barncroft Primary School | Community School | Good | 1.12 KM |
Images
Nearby Streets
| Name | Average Price | Average Sqft | Distance |
|---|---|---|---|
| Amport Court | £ 260,000 | 0 | 0.00 KM |
| Naish Court | £ 0 | 0 | 0.00 KM |
| Conford Court | £ 240,000 | 0 | 0.00 KM |
| Strouden Court | £ 220,000 | 0 | 0.00 KM |
| Hockham Court | £ 124,750 | 0 | 0.00 KM |
Nearby Transport
| Name | NLC | TLC | Distance |
|---|---|---|---|
| Bedhampton | 5538 | BDH | 2.17 KM |
| Havant | 5532 | HAV | 3.04 KM |
| Warblington | 5264 | WBL | 4.42 KM |
| Rowlands Castle | 5658 | RLN | 5.42 KM |
| Emsworth | 5257 | EMS | 7.43 KM |
Nearby Listings
| Address | Price | Type | Score | Distance |
|---|---|---|---|---|
| Quarely Road, Leigh Park | £ 239,995 | BUY | 6 / 10 | 0.00 KM |
| Quarely Road, Havant, PO9 | £ 265,000 | BUY | 6 / 10 | 0.01 KM |
| Penfold Way, Havant, PO9 4DF | £ 215,000 | BUY | 6 / 10 | 0.09 KM |
| Penfold Way, Havant, Hampshire | £ 320,000 | BUY | 7 / 10 | 0.11 KM |
| Penfold Way, Havant, Hampshire | £ 211,500 | BUY | Unknown | 0.11 KM |
Nearby Properties
| Address | Price | Distance |
|---|---|---|
| 30 Quarely Road | £ 190,000 | 0.01 KM |
| 18 Quarely Road | £ 122,500 | 0.01 KM |
| 21 Quarely Road | £ 115,000 | 0.01 KM |
| 34 Quarely Road | £ 192,500 | 0.01 KM |
| 4 Quarely Road | £ 191,000 | 0.01 KM |