AL
Snowden Avenue, Hillingdon.
By Allday & Miller
£ 500,000
Reviews
3 out of 5 stars
Allday & Miller says ..
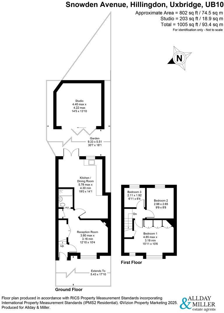
This extended three bedroom home enjoys a spacious kitchen breakfast room and a new high quality outbuilding. Located in the Oak Farm Development
Property Oracle says ..
Therefore, we give this property 6 / 10. *Disclaimer: This is our option and does constitute a recommendation or financial advice. Do your own research. *
- Price
- 5
- Condition
- 8
- Location
- 7
- Land
- 7
- Bedrooms
- 3
- Bathrooms
- 1
- Sqft (est)
- 802.00
The heatmap indicates the level of crime in the area. The color of the heatmap indicates the crime severity and recency.
Metrics Year-on-Year
- Average area value
- 491,250.00 £Decreased by 2.14 %
- Est sale value
- 450,724.00 £Increased by 21.91 %
- Average area rental value
- 1,654.00 £/moDecreased by 17.30 %
- Est letting value
- 802.00 £/moUnchanged by 0.00 %
- Est rental Yield
- 4.04 %Decreased by 15.48 %
- Crime Rate
- 3.00 %Unchanged by 0.00 %
from 502,018.00 £
from 369,722.00 £
from 2,000.00 £/mo
from 802.00 £/mo
from 4.78 %
from 3.00 %
Agent Activity
Allday & Miller marked this listing as sold.
Allday & Miller created the listing.
Nearby Schools
| Name | Type | Ofsted | Distance |
|---|---|---|---|
| St Bernadette Catholic Primary School | Voluntary Aided School | Good | 0.17 KM |
| Oak Wood School | Foundation School | Requires improvement | 0.39 KM |
| Oak Farm Children'S Centre | Children's Centre | 0.58 KM | |
| Swakeleys School For Girls | Academy Converter | Outstanding | 0.59 KM |
| Oak Farm Primary School | Foundation School | Outstanding | 0.64 KM |
Images
Nearby Streets
| Name | Average Price | Average Sqft | Distance |
|---|---|---|---|
| Sheridan Close | £ 0 | 0 | 0.00 KM |
| Collingwood Road | £ 555,625 | 0 | 0.00 KM |
| The Oaks | £ 0 | 0 | 0.00 KM |
| The Crossway | £ 0 | 0 | 0.00 KM |
| Auriol Drive | £ 220,909 | 0 | 0.00 KM |
Nearby Transport
| Name | NLC | TLC | Distance |
|---|---|---|---|
| West Ruislip | 3059 | WRU | 3.71 KM |
| West Drayton | 3174 | WDT | 4.02 KM |
| Hayes And Harlington | 3186 | HAY | 5.14 KM |
| South Ruislip | 3057 | SRU | 5.98 KM |
| Denham | 3052 | DNM | 6.87 KM |
Nearby Listings
| Address | Price | Type | Score | Distance |
|---|---|---|---|---|
| Snowden Avenue, Hillingdon. | £ 500,000 | BUY | 6 / 10 | 0.00 KM |
| Snowden Avenue, Hillingdon, UB10 | £ 450,000 | BUY | Unknown | 0.01 KM |
| Snowden Avenue, Hillingdon, UB10 | £ 580,000 | BUY | 7 / 10 | 0.01 KM |
| Clifton Gardens, Hillingdon, UB10 | £ 500,000 | BUY | 6 / 10 | 0.07 KM |
| Oakdene Road, Hillingdon, UB10 | £ 500,000 | BUY | 6 / 10 | 0.07 KM |
Nearby Properties
| Address | Price | Distance |
|---|---|---|
| 41 Snowden Avenue | £ 328,000 | 0.01 KM |
| 28 Snowden Avenue | £ 452,900 | 0.01 KM |
| 27 Snowden Avenue | £ 400,000 | 0.01 KM |
| 10 Snowden Avenue | £ 136,000 | 0.01 KM |
| 12 Snowden Avenue | £ 493,000 | 0.01 KM |