Chancellors says ..
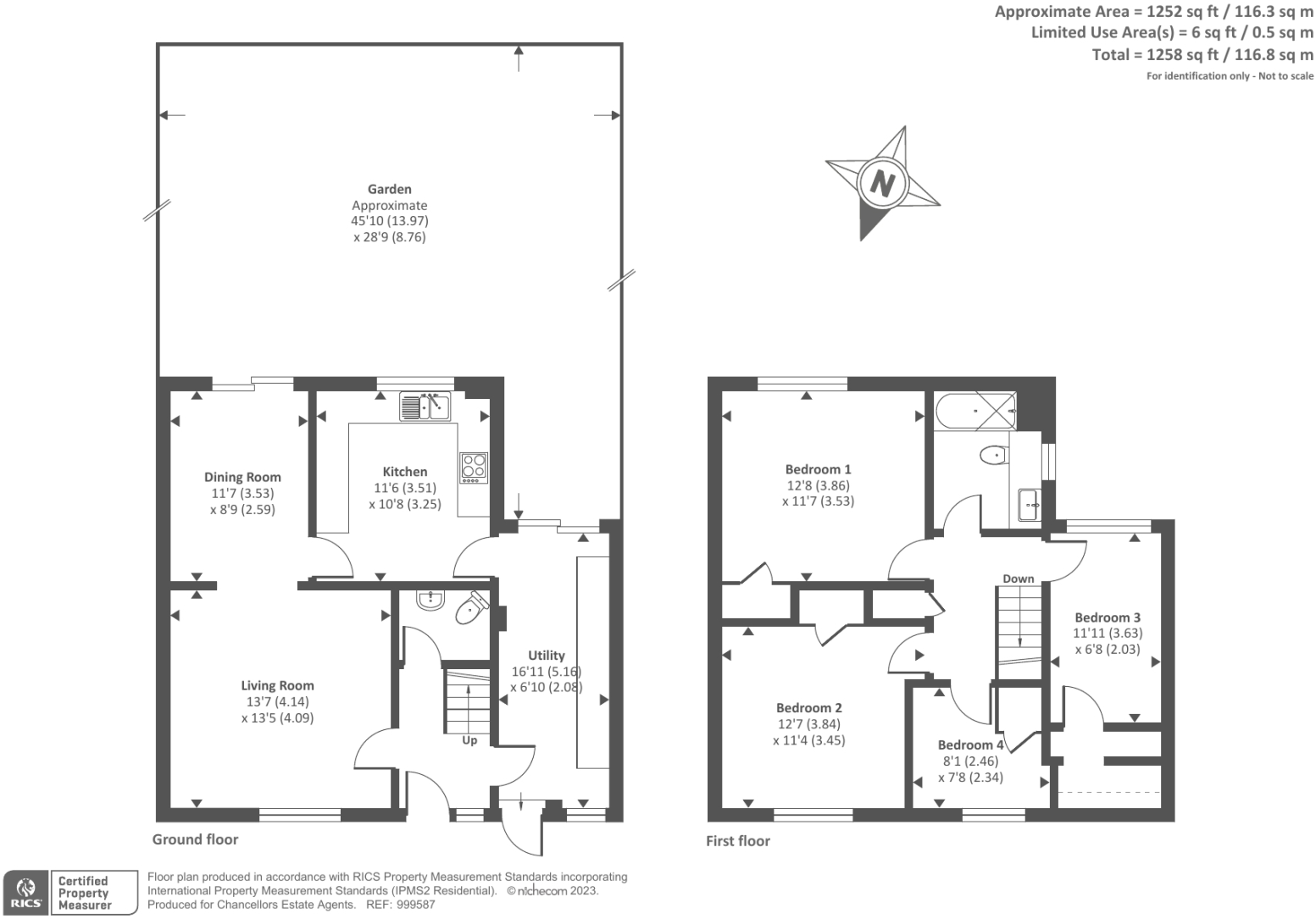
Set in this popular location, convenient for M4 J12, Reading Town Centre and amenities is this four bedroom link detached family home with sitting room, separate dining room, kitchen / breakfast room, ground floor WC, first floor family bathroom, enclosed rear garden and double garage.
Property Oracle says ..
This property is a 4-bedroom detached house located in Tilehurst South & Holybrook, Reading. The property benefits from being close to several primary schools with good Ofsted ratings, including Kennet Valley Primary School (0.45km), Churchend Primary Academy (1.03km), Thames Valley School (1.18km), The Holy Brook School (1.36km), and Manor Primary School (1.36km). Several train stations are also within a reasonable distance, including Tilehurst (3.40km), Reading West (4.59km), Theale (5.15km), Reading (6.62km), and Mortimer (7.71km). The property itself is in relatively good condition, though some modernisation may be desirable. It has a small garden, which is a positive aspect. The list price of £525,000 seems slightly higher than the average price of £434,167 for the area, but considering the number of bedrooms and the presence of a garden, it may be justifiable. Further analysis of comparable properties in the area would be beneficial to confirm this.
Therefore, we give this property 7 / 10. *Disclaimer: This is our option and does constitute a recommendation or financial advice. Do your own research. *
- Price
- 7
- Condition
- 7
- Location
- 8
- Land
- 6
- Bedrooms
- 4
- Bathrooms
- 1
- Sqft (est)
- 926.00
- Lot (est)
- 1,258.00
The heatmap indicates the level of crime in the area. The color of the heatmap indicates the crime severity and recency.
Metrics Year-on-Year
- Average area value
- 698,333.00 £Increased by 39.43 %
- Est sale value
- 1,343,626.00 £Increased by 216.12 %
- Average area rental value
- 1,400.00 £/moDecreased by 23.50 %
- Est letting value
- 1,852.00 £/moIncreased by 100.00 %
- Est rental Yield
- 2.41 %Decreased by 44.98 %
- Crime Rate
- 0.00 %
Agent Activity
Chancellors created the listing.
Nearby Schools
| Name | Type | Ofsted | Distance |
|---|---|---|---|
| Kennet Valley Primary School | Community School | Good | 0.45 KM |
| Churchend Primary Academy | Academy Converter | 1.03 KM | |
| Thames Valley School | Free Schools Special | Good | 1.18 KM |
| The Holy Brook School | Community Special School | Good | 1.36 KM |
| Manor Primary School | Community School | Good | 1.36 KM |
Images
Nearby Streets
| Name | Average Price | Average Sqft | Distance |
|---|---|---|---|
| Fox Hunt Grove | £ 0 | 0 | 0.00 KM |
| Holmwood Avenue | £ 0 | 0 | 0.00 KM |
| Grantham Road | £ 435,000 | 0 | 0.00 KM |
| Park Lane | £ 0 | 0 | 0.00 KM |
| Chelt Close | £ 0 | 0 | 0.00 KM |
Nearby Transport
| Name | NLC | TLC | Distance |
|---|---|---|---|
| Tilehurst | 3154 | TLH | 3.40 KM |
| Reading West | 3160 | RDW | 4.59 KM |
| Theale | 3153 | THE | 5.15 KM |
| Reading | 3149 | RDG | 6.62 KM |
| Mortimer | 5501 | MOR | 7.71 KM |
Nearby Listings
| Address | Price | Type | Score | Distance |
|---|---|---|---|---|
| Fords Farm, Reading, RG31 | £ 525,000 | BUY | 7 / 10 | 0.00 KM |
| Foxhunt Grove, Calcot, RG31 | £ 525,000 | BUY | 7 / 10 | 0.04 KM |
| Low Lane, Calcot, Reading, RG31 | £ 350,000 | BUY | 6 / 10 | 0.07 KM |
| Calcot Place, Low Lane, Calcot, Reading | £ 475,000 | BUY | 5 / 10 | 0.13 KM |
| May Park, Calcot, Reading | £ 600,000 | BUY | 8 / 10 | 0.14 KM |
Nearby Properties
| Address | Price | Distance |
|---|---|---|
| 6 Ladymask Close | £ 465,000 | 0.11 KM |
| 16 Ladymask Close | £ 414,000 | 0.11 KM |
| 10 Ladymask Close | £ 499,950 | 0.11 KM |
| 7 Ladymask Close | £ 300,000 | 0.12 KM |
| 9 Ladymask Close | £ 240,000 | 0.12 KM |