Shaftesbury Road, Brighton
By Kendrick Property Services
£ 800,000
Reviews
3 out of 5 stars
Kendrick Property Services says ..
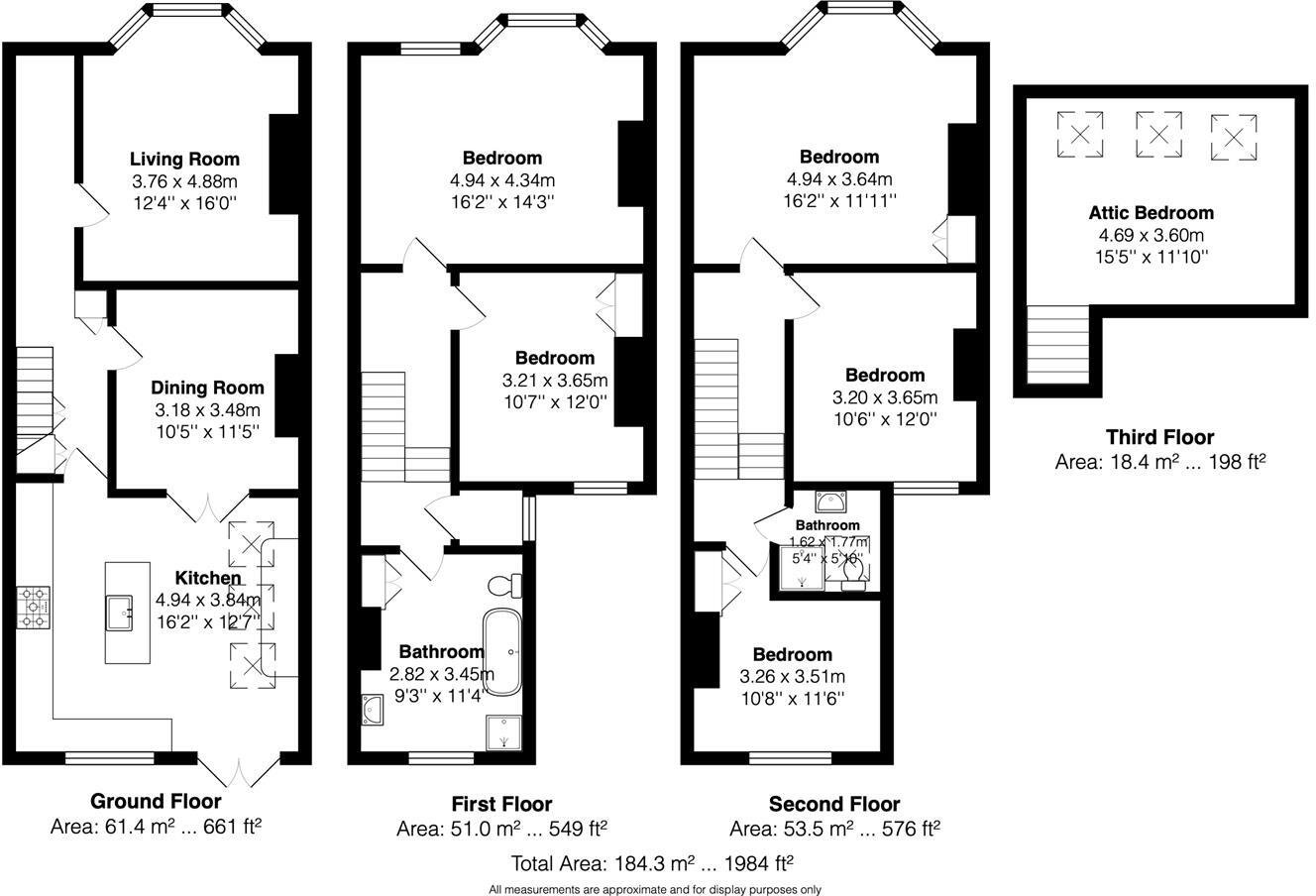
5 Bedrooms | 2 Bathrooms | Loft Room | No Chain | Garden | Kendrick Property Services are pleased to bring to market this property nestled on the charming Shaftesbury Road, this delightful terraced house offers a perfect blend of modern living and classic elegance. With five spacious bed...
Property Oracle says ..
This property is a 5 bedroom, 2 bathroom terraced house located on Shaftesbury Road in Brighton. The location is excellent, being close to several highly-rated schools and within walking distance of Brighton city centre. The property itself is a period property that has been well-maintained and updated, with a modern kitchen and bathrooms. There is a small, well-maintained patio garden. The list price of £800,000 seems high compared to other properties in the area, however, given the size, location, and condition of the property, it may be justifiable.
Therefore, we give this property 7 / 10. *Disclaimer: This is our option and does constitute a recommendation or financial advice. Do your own research. *
- Price
- 6
- Condition
- 9
- Location
- 10
- Land
- 3
- Bedrooms
- 5
- Bathrooms
- 2
- Sqft (est)
- 1,983.79
The heatmap indicates the level of crime in the area. The color of the heatmap indicates the crime severity and recency.
Metrics Year-on-Year
- Average area value
- 453,371.00 £Increased by 5.22 %
- Est sale value
- 1,434,280.17 £Increased by 35.39 %
- Average area rental value
- 1,827.00 £/moIncreased by 2.93 %
- Est letting value
- 3,967.58 £/moUnchanged by 0.00 %
- Est rental Yield
- 4.84 %Decreased by 2.02 %
- Crime Rate
- 4.00 %Unchanged by 0.00 %
Agent Activity
Kendrick Property Services created the listing.
Nearby Schools
| Name | Type | Ofsted | Distance |
|---|---|---|---|
| Preston Park Children'S Centre | Children's Centre Linked Site | 0.32 KM | |
| Downs Infant School | Community School | Outstanding | 0.44 KM |
| Downs Junior School | Community School | Outstanding | 0.48 KM |
| St Bartholomew'S Cofe Primary School | Voluntary Aided School | Good | 0.52 KM |
| Kings Brighton | Other Independent School | Good | 0.57 KM |
Images
Nearby Streets
| Name | Average Price | Average Sqft | Distance |
|---|---|---|---|
| The Open Market | £ 0 | 0 | 0.00 KM |
| Circus Parade | £ 0 | 0 | 0.00 KM |
| Isetta Square | £ 0 | 0 | 0.00 KM |
| St Andrews Close | £ 0 | 0 | 0.00 KM |
| Blackmore Court | £ 0 | 0 | 0.00 KM |
Nearby Transport
| Name | NLC | TLC | Distance |
|---|---|---|---|
| London Road (Brighton) | 5281 | LRB | 0.15 KM |
| Brighton | 5268 | BTN | 0.89 KM |
| Moulsecoomb | 5312 | MCB | 2.31 KM |
| Preston Park | 5285 | PRP | 2.40 KM |
| Hove | 5273 | HOV | 3.80 KM |
Nearby Listings
| Address | Price | Type | Score | Distance |
|---|---|---|---|---|
| Shaftesbury Road, Brighton | £ 800,000 | BUY | 7 / 10 | 0.00 KM |
| Warleigh Road, Brighton | £ 499,950 | BUY | 6 / 10 | 0.08 KM |
| Warleigh Road, Brighton | £ 375,000 | BUY | 6 / 10 | 0.08 KM |
| Shaftesbury Road, Brighton, East Sussex, BN1 | £ 350,000 | BUY | Unknown | 0.09 KM |
| Ditchling Rise, Brighton | £ 425,000 | BUY | 6 / 10 | 0.09 KM |
Nearby Properties
| Address | Price | Distance |
|---|---|---|
| 89 Shaftesbury Road | £ 39,950 | 0.03 KM |
| 71a Shaftesbury Road | £ 262,500 | 0.03 KM |
| 73a Shaftesbury Road | £ 215,000 | 0.03 KM |
| 94 Shaftesbury Road | £ 149,000 | 0.03 KM |
| 96 Shaftesbury Road | £ 230,000 | 0.03 KM |