Cope Street, Harbord House Cope Street, SE16
By Oliver Jaques
£ 430,000
Reviews
2 out of 5 stars
Oliver Jaques says ..
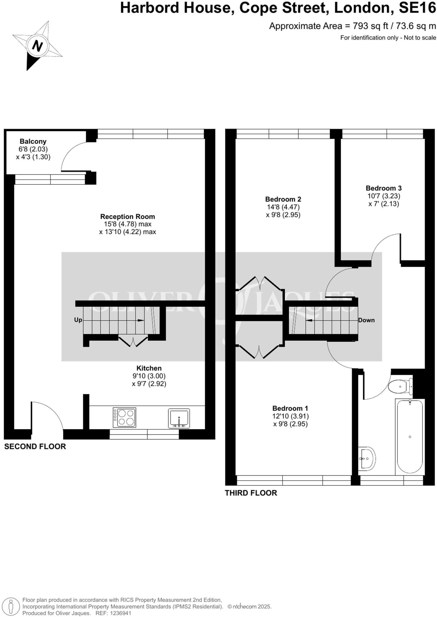
Located just 100yds from the underground station in the heart of Surrey Quays' shopping district and Canada Water masterplan, this chain free three double bedroomed split level maisonette occupies the top two floors of a four storey, post-war development.
Property Oracle says ..
This three-bedroom flat in Rotherhithe, Southwark, is situated in a convenient location with good access to public transport via Surrey Quays Overground station. Several well-regarded primary and secondary schools are within a reasonable distance, making it an attractive option for families. The property itself is presented in a clean and tidy condition, with modern fixtures and fittings. The interior is simple but functional, using light colours, which helps make the space feel brighter and more spacious. The flat benefits from a balcony offering views over surrounding buildings. The kitchen and bathroom appear well-maintained and functional, although not luxurious. While lacking a private garden, the overall condition of the property is respectable, and the location is a key selling point given the transport links and schooling options. However, prospective buyers should note that the lack of a garden and the relative lack of amenities may be deterrents for some potential purchasers. A thorough survey is recommended to assess any potential hidden issues and to determine the true value for money.
Therefore, we give this property 5 / 10. *Disclaimer: This is our option and does constitute a recommendation or financial advice. Do your own research. *
- Price
- 7
- Condition
- 6
- Location
- 7
- Land
- 1
- Bedrooms
- 3
- Bathrooms
- 1
- Sqft (est)
- 793.00
The heatmap indicates the level of crime in the area. The color of the heatmap indicates the crime severity and recency.
Metrics Year-on-Year
- Average area value
- 622,222.00 £Increased by 5.44 %
- Est sale value
- 786,656.00 £Increased by 48.95 %
- Average area rental value
- 2,241.00 £/moIncreased by 5.31 %
- Est letting value
- 2,379.00 £/moIncreased by 50.00 %
- Est rental Yield
- 4.32 %Decreased by 0.23 %
- Crime Rate
- 13.00 %Unchanged by 0.00 %
Agent Activity
Oliver Jaques created the listing.
Nearby Schools
| Name | Type | Ofsted | Distance |
|---|---|---|---|
| Rotherhithe Primary School & Children'S Centre | Children's Centre | 0.41 KM | |
| Rotherhithe Primary School | Community School | Good | 0.41 KM |
| Marathon Science School | Other Independent School | Good | 0.51 KM |
| Cavendish School | Other Independent Special School | Outstanding | 0.57 KM |
| St Joseph'S Catholic Primary School | Voluntary Aided School | Outstanding | 0.71 KM |
Images
Nearby Streets
| Name | Average Price | Average Sqft | Distance |
|---|---|---|---|
| Luxford Street | £ 0 | 0 | 0.00 KM |
| Worgan Street | £ 0 | 0 | 0.00 KM |
| Warndon Street | £ 0 | 0 | 0.00 KM |
| Hawkstone Road | £ 0 | 0 | 0.00 KM |
| Bolina Road | £ 0 | 0 | 0.00 KM |
Nearby Transport
| Name | NLC | TLC | Distance |
|---|---|---|---|
| Surrey Quays | 1083 | SQE | 0.18 KM |
| Canada Water | 1659 | ZCW | 0.75 KM |
| New Cross | 5150 | NWX | 0.75 KM |
| South Bermondsey | 5425 | SBM | 1.04 KM |
| Rotherhithe | 1039 | ROE | 1.16 KM |
Nearby Listings
| Address | Price | Type | Score | Distance |
|---|---|---|---|---|
| Cope Street, Harbord House Cope Street, SE16 | £ 430,000 | BUY | 5 / 10 | 0.00 KM |
| Rotherhithe New Road, Surrey Quays, London, SE16 2AB | £ 250,000 | BUY | 5 / 10 | 0.07 KM |
| Jasmine Court, 14-16 Rotherhithe New Road, Rotherhithe, London, SE16 | £ 1,400,000 | BUY | 6 / 10 | 0.07 KM |
| Tawny Way, Surrey Quays, SE16 | £ 325,000 | BUY | 6 / 10 | 0.08 KM |
| Rotherhithe New Road, London, SE16 | £ 600,000 | BUY | 8 / 10 | 0.08 KM |
Nearby Properties
| Address | Price | Distance |
|---|---|---|
| 197 Lower Road | £ 159,500 | 0.07 KM |
| 31 Tawny Way | £ 310,000 | 0.07 KM |
| 239 Lower Road | £ 10,000 | 0.07 KM |
| 235 Lower Road | £ 330,000 | 0.07 KM |
| 26 Tawny Way | £ 170,000 | 0.07 KM |