Greenfield Rise, Kippax
By Tudor Sales & Lettings
£ 320,000
Reviews
3 out of 5 stars
Tudor Sales & Lettings says ..
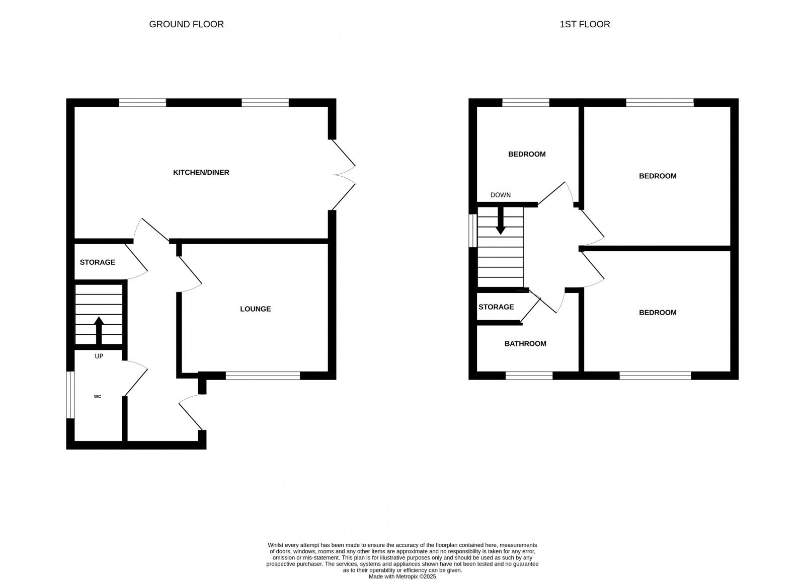
Offered for sale with no onward chain is this modern three-bedroom detached home, located on the popular Greenfield Rise in Kippax. Built in 2020, the property has been thoughtfully designed and well-maintained
Property Oracle says ..
This detached property on Greenfield Rise in Kippax, Leeds, offers three bedrooms and two bathrooms within 875 sqft. The house has been modernised with a new kitchen and updated bathrooms. The property benefits from a garden. While the asking price of £320,000 is above the average for the area, the detached status and recent renovations may account for the premium. Nearby Kippax Greenfield Primary School requires improvement. Commuting is facilitated by proximity to East Garforth and Garforth train stations. Overall, the property is well-presented and suitable for families looking for a modern home with outdoor space.
Therefore, we give this property 7 / 10. *Disclaimer: This is our option and does constitute a recommendation or financial advice. Do your own research. *
- Price
- 6
- Condition
- 9
- Location
- 7
- Land
- 7
- Bedrooms
- 3
- Bathrooms
- 2
- Sqft (est)
- 875.00
The heatmap indicates the level of crime in the area. The color of the heatmap indicates the crime severity and recency.
Metrics Year-on-Year
- Average area value
- 488,600.00 £Decreased by 6.01 %
- Est sale value
- 550,375.00 £Increased by 9.01 %
- Average area rental value
- 1,814.00 £/moIncreased by 6.02 %
- Est letting value
- 1,750.00 £/moIncreased by 100.00 %
- Est rental Yield
- 4.46 %Increased by 12.91 %
- Crime Rate
- 6.00 %Unchanged by 0.00 %
Agent Activity
Tudor Sales & Lettings created the listing.
Nearby Schools
| Name | Type | Ofsted | Distance |
|---|---|---|---|
| Kippax Greenfield Primary School | Academy Converter | Requires improvement | 0.13 KM |
| Kippax Ash Tree Primary School | Academy Converter | Requires improvement | 0.87 KM |
| Kippax Children'S Centre | Children's Centre | 1.09 KM | |
| Kippax North Primary School | Academy Converter | Good | 1.16 KM |
| Brigshaw High School | Academy Converter | Good | 1.85 KM |
Images
Nearby Streets
| Name | Average Price | Average Sqft | Distance |
|---|---|---|---|
| Ash Grove Mount | £ 0 | 0 | 0.00 KM |
| Grange Lane | £ 0 | 0 | 0.00 KM |
| Windsor Close | £ 0 | 0 | 0.00 KM |
| Birch Road | £ 0 | 0 | 0.00 KM |
| The Green | £ 0 | 0 | 0.00 KM |
Nearby Transport
| Name | NLC | TLC | Distance |
|---|---|---|---|
| East Garforth | 8472 | EGF | 2.38 KM |
| Garforth | 8474 | GRF | 3.03 KM |
| Micklefield | 8477 | MIK | 5.54 KM |
| Castleford | 8359 | CFD | 5.60 KM |
| Glasshoughton | 8360 | GLH | 7.71 KM |
Nearby Listings
| Address | Price | Type | Score | Distance |
|---|---|---|---|---|
| Greenfield Rise, Kippax | £ 320,000 | BUY | 7 / 10 | 0.00 KM |
| Greenfield Rise, Kippax, Leeds | £ 225,000 | BUY | 7 / 10 | 0.00 KM |
| Greenfield Garth, Kippax, Leeds | £ 260,000 | BUY | 7 / 10 | 0.12 KM |
| Ebor Mount, Kippax, Leeds | £ 255,000 | BUY | Unknown | 0.13 KM |
| Greenfield View, Kippax, Leeds | £ 235,000 | BUY | 6 / 10 | 0.17 KM |
Nearby Properties
| Address | Price | Distance |
|---|---|---|
| 14 Greenfield Garth | £ 227,000 | 0.10 KM |
| 3 Greenfield Garth | £ 75,000 | 0.10 KM |
| 5 Greenfield Garth | £ 156,000 | 0.10 KM |
| 9 Greenfield Close | £ 84,500 | 0.12 KM |
| 21 Greenfield Close | £ 320,000 | 0.12 KM |