Lorne Park Road, Lorne Park Mansions, BH1
By MK Estates
£ 95,000
Reviews
2 out of 5 stars
MK Estates says ..
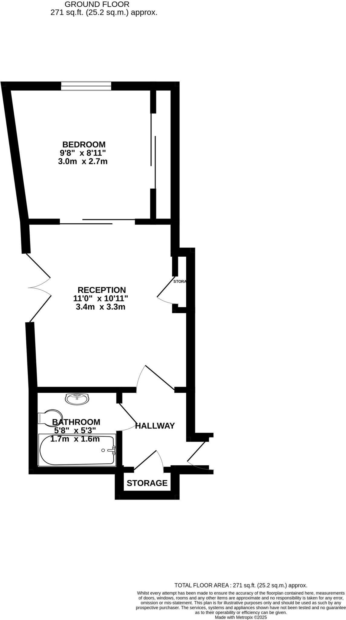
Welcome Homes are delighted to offer for sale this well presented one-bedroom flat with a Share of Freehold, set within the desirable development of Lorne Park Mansions in Bournemouth.The property is accessed via a secure communal entrance with convenient lift access to all floors.
Property Oracle says ..
Therefore, we give this property 5 / 10. *Disclaimer: This is our option and does constitute a recommendation or financial advice. Do your own research. *
- Price
- 8
- Condition
- 5
- Location
- 7
- Land
- 3
- Bedrooms
- 1
- Bathrooms
- 1
- Sqft (est)
- 271.00
The heatmap indicates the level of crime in the area. The color of the heatmap indicates the crime severity and recency.
Metrics Year-on-Year
- Average area value
- 219,474.00 £Decreased by 15.67 %
- Est sale value
- 77,777.00 £Decreased by 17.29 %
- Average area rental value
- 1,322.00 £/moDecreased by 1.42 %
- Est letting value
- 271.00 £/moUnchanged by 0.00 %
- Est rental Yield
- 7.23 %Increased by 16.99 %
- Crime Rate
- 20.00 %Unchanged by 0.00 %
from 260,256.00 £
from 94,037.00 £
from 1,341.00 £/mo
from 271.00 £/mo
from 6.18 %
from 20.00 %
Agent Activity
MK Estates created the listing.
Nearby Schools
| Name | Type | Ofsted | Distance |
|---|---|---|---|
| Livingstone Academy Bournemouth | Free Schools | 0.15 KM | |
| Bournemouth Christian School | Other Independent School | Good | 0.99 KM |
| Kings Bournemouth | Other Independent School | Good | 1.10 KM |
| Malmesbury Park Primary School | Academy Converter | Good | 1.29 KM |
| St Martin'S School | Other Independent School | 1.58 KM |
Images
Nearby Streets
| Name | Average Price | Average Sqft | Distance |
|---|---|---|---|
| The Firs | £ 175,000 | 0 | 0.00 KM |
| Lansdowne Crescent | £ 0 | 0 | 0.00 KM |
| Madeira Roundabout | £ 0 | 0 | 0.00 KM |
| St Paul's Place | £ 0 | 0 | 0.00 KM |
| St Pauls Road | £ 0 | 0 | 0.00 KM |
Nearby Transport
| Name | NLC | TLC | Distance |
|---|---|---|---|
| Bournemouth | 5876 | BMH | 0.74 KM |
| Pokesdown | 5885 | POK | 4.97 KM |
| Branksome | 5875 | BSM | 5.60 KM |
| Parkstone (Dorset) | 5882 | PKS | 8.70 KM |
| Christchurch | 5879 | CHR | 9.53 KM |
Nearby Listings
| Address | Price | Type | Score | Distance |
|---|---|---|---|---|
| Lorne Park Road, Lorne Park Mansions, BH1 | £ 110,000 | BUY | 5 / 10 | 0.00 KM |
| Lorne Park Road, Lorne Park Mansions, BH1 | £ 95,000 | BUY | 5 / 10 | 0.00 KM |
| Lorne Park Road, Central Bournemouth, Dorset, BH1 | £ 85,000 | BUY | Unknown | 0.04 KM |
| Lorne Park Road, Bournemouth, BH1 | £ 80,000 | BUY | 6 / 10 | 0.04 KM |
| Lorne Park Road, Dorset | £ 110,000 | BUY | 5 / 10 | 0.04 KM |
Nearby Properties
| Address | Price | Distance |
|---|---|---|
| 36 Lorne Park Road | £ 157,500 | 0.04 KM |
| 34 Stafford Road | £ 219,000 | 0.07 KM |
| 22 Stafford Road | £ 105,000 | 0.07 KM |
| 262 Old Christchurch Road | £ 375,000 | 0.07 KM |
| 238a Old Christchurch Road | £ 125,000 | 0.08 KM |