Church Street, Whittington, Lichfield
Lovett&Co. Estate Agents logo

Church Street, Whittington, Lichfield

By Lovett&Co. Estate Agents

£ 700,000

Reviews

4 out of 5 stars

Lovett&Co. Estate Agents says ..

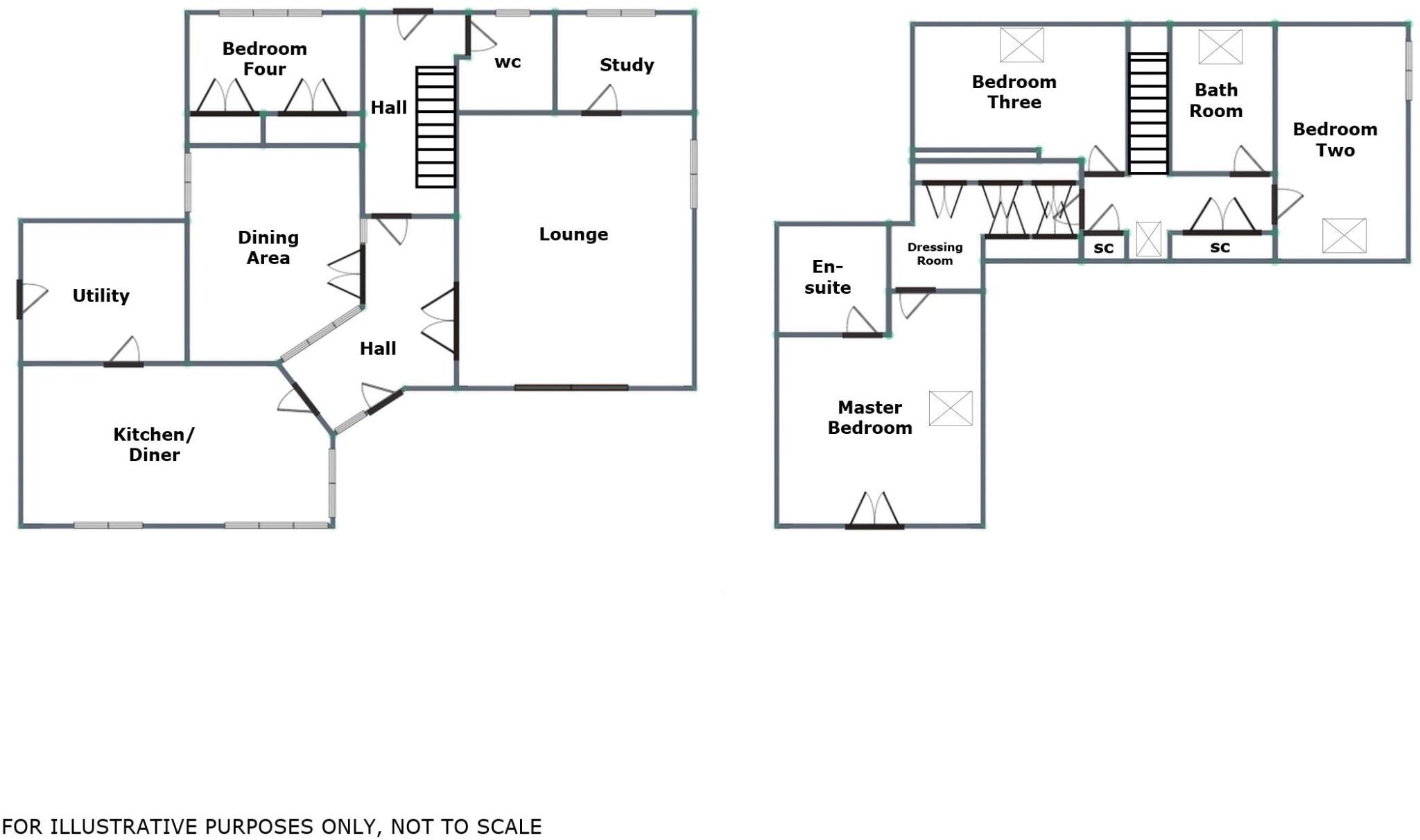
Lovett&Co. Estate Agents are proud to present this one-of-a-kind, bespoke built four-bedroom detached family home, enjoying an exceptional countryside setting with panoramic green belt views. Tucked away in a truly secluded spot at the edge of the village, this residence offers the rare feelin...

Property Oracle says ..

Therefore, we give this property 8 / 10. *Disclaimer: This is our option and does constitute a recommendation or financial advice. Do your own research. *

Price
8
Condition
7
Location
9
Land
8
Bedrooms
4
Bathrooms
2
Sqft (est)
1,530.00

The heatmap indicates the level of crime in the area. The color of the heatmap indicates the crime severity and recency.

Metrics Year-on-Year

Average area value
618,125.00 £
Increased by 37.82 %
from 448,508.00 £
Est sale value
740,520.00 £
Increased by 46.22 %
from 506,430.00 £
Average area rental value
1,363.00 £/mo
Decreased by 1.87 %
from 1,389.00 £/mo
Est letting value
1,530.00 £/mo
Unchanged by 0.00 %
from 1,530.00 £/mo
Est rental Yield
2.65 %
Decreased by 28.76 %
from 3.72 %
Crime Rate
3.00 %
Unchanged by 0.00 %
from 3.00 %

Agent Activity

  • Lovett&Co. Estate Agents created the listing.

Nearby Schools

NameTypeOfstedDistance
Whittington Primary SchoolCommunity SchoolGood0.37 KM
Streethay Primary SchoolFree Schools3.92 KM
Thomas Barnes Primary SchoolFoundation SchoolOutstanding4.46 KM
St Stephen'S Primary SchoolCommunity SchoolGood5.18 KM
The Howard Primary SchoolAcademy ConverterGood5.28 KM

Images

Photo 40 Photo 7 Photo 4 Photo 6 Photo 42 Photo 24 Photo 28 Photo 25 Photo 27 Photo 32 Photo 33 Photo 34 Photo 35 Photo 23 Photo 31 Photo 29 Photo 30 Photo 16 Photo 19 Photo 17 Photo 18 Photo 15 Photo 8 Photo 9 Photo 10 Photo 11 Photo 13 Photo 14 Photo 21 Photo 26 Photo 1 Photo 2 Photo 12 Photo 36 Photo 22 Photo 38 Photo 20 Photo 37 Photo 41 Photo 39 Photo 44 Photo 45 Photo 46 Photo 43 Photo 5 Photo 47 Photo 48 Photo 49

Nearby Streets

NameAverage PriceAverage SqftDistance
Barley Croft £ 382,47500.00 KM
Broad Lane £ 000.00 KM

Nearby Transport

NameNLCTLCDistance
Lichfield Trent Valley1291LTV4.17 KM
Lichfield City1177LIC6.68 KM
Shenstone1178SEN9.43 KM
Tamworth1322TAM9.56 KM

Nearby Listings

AddressPriceTypeScoreDistance
Church Street, Whittington, Lichfield £ 700,000BUY8 / 100.00 KM
Bramley Way, Whittington, Lichfield £ 799,950BUY7 / 100.17 KM
Main Street, Whittington £ 495,000BUY6 / 100.27 KM
Fisherwick Road, Whittington £ 850,000BUY7 / 100.32 KM
Pass Avenue, Whittington, Lichfield, WS14 £ 375,000BUY7 / 100.52 KM

Nearby Properties

AddressPriceDistance
9 Church Street £ 330,0000.01 KM
17 Church Street £ 257,0000.01 KM
15 Church Street £ 260,0000.02 KM
33 Church Street £ 225,0000.02 KM
21 Church Street £ 295,0000.02 KM