Barnard Marcus says ..
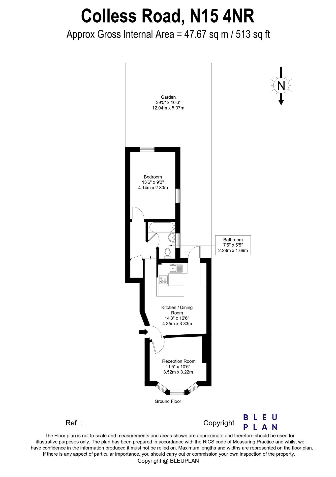
Situated along a quiet residential road you will find this ground floor period conversion garden flat. This property is ideal for first time buyers, professional couples and investors.
Property Oracle says ..
This is a one-bedroom ground floor flat in Tottenham Green, Haringey. The property is in good condition, with a modern kitchen and bathroom. It also benefits from a garden. The location is convenient, with good access to schools and public transport. The asking price of £400,000 seems reasonable for the property type and location. The flat would likely appeal to first-time buyers or investors.
Therefore, we give this property 7 / 10. *Disclaimer: This is our option and does constitute a recommendation or financial advice. Do your own research. *
- Price
- 7
- Condition
- 8
- Location
- 7
- Land
- 6
- Bedrooms
- 1
- Bathrooms
- 1
The heatmap indicates the level of crime in the area. The color of the heatmap indicates the crime severity and recency.
Metrics Year-on-Year
- Average area value
- 789,000.00 £Increased by 13.27 %
- Average area rental value
- 2,233.00 £/moIncreased by 4.05 %
- Est rental Yield
- 3.40 %Decreased by 8.11 %
- Crime Rate
- 10.00 %Unchanged by 0.00 %
Agent Activity
Barnard Marcus created the listing.
Nearby Schools
| Name | Type | Ofsted | Distance |
|---|---|---|---|
| Earlsmead Children'S Centre | Children's Centre | 0.36 KM | |
| Earlsmead Primary School | Community School | Good | 0.36 KM |
| Crowland Primary School | Community School | Outstanding | 0.44 KM |
| Ambitious College | Special Post 16 Institution | Good | 0.54 KM |
| Gladesmore Community School | Community School | Outstanding | 0.56 KM |
Images
Nearby Streets
| Name | Average Price | Average Sqft | Distance |
|---|---|---|---|
| Platinum Mews | £ 700,000 | 0 | 0.00 KM |
| A10 | £ 0 | 0 | 0.00 KM |
| Houghton Road | £ 0 | 0 | 0.00 KM |
| Fairview Road | £ 0 | 0 | 0.00 KM |
| Barry Avenue | £ 0 | 0 | 0.00 KM |
Nearby Transport
| Name | NLC | TLC | Distance |
|---|---|---|---|
| South Tottenham | 7404 | STO | 0.20 KM |
| Seven Sisters | 6931 | SVS | 0.49 KM |
| Stamford Hill | 6968 | SMH | 1.02 KM |
| Bruce Grove | 6958 | BCV | 1.38 KM |
| Tottenham Hale | 6951 | TOM | 1.42 KM |
Nearby Listings
| Address | Price | Type | Score | Distance |
|---|---|---|---|---|
| Colless Road, London | £ 400,000 | BUY | 7 / 10 | 0.00 KM |
| Colless Road, N15 | £ 400,000 | BUY | 7 / 10 | 0.01 KM |
| Colless Road, London N15 | £ 850,000 | BUY | 5 / 10 | 0.01 KM |
| Townsend Road, London, N15 | £ 300,000 | BUY | 5 / 10 | 0.05 KM |
| Townsend Road, Tottenham, London, N15 | £ 475,000 | BUY | 7 / 10 | 0.06 KM |
Nearby Properties
| Address | Price | Distance |
|---|---|---|
| 20 Colless Road | £ 220,000 | 0.00 KM |
| 22a Colless Road | £ 360,000 | 0.00 KM |
| 30 Colless Road | £ 363,000 | 0.00 KM |
| 7 Colless Road | £ 330,000 | 0.00 KM |
| 11 Colless Road | £ 300,000 | 0.00 KM |