Dexters says ..
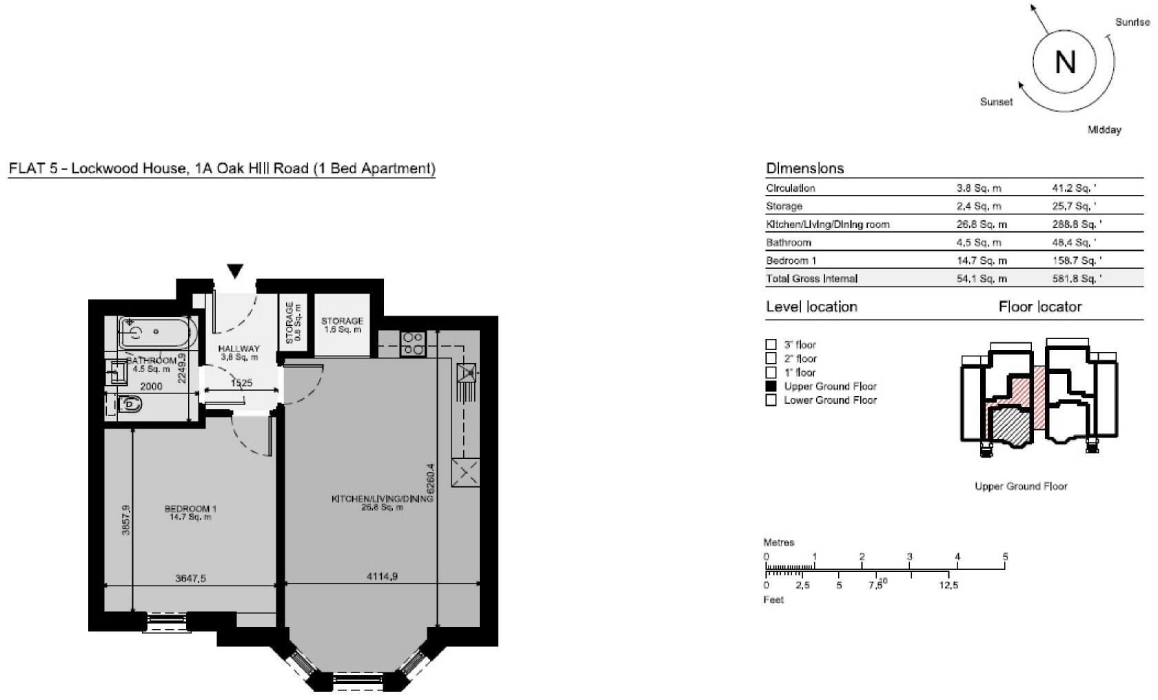
Apartment 5 Lockwood House is a one bedroom apartment located on a quiet residential street in Surbiton. The chain free apartment boosts a light and airy feel with its open planned kitchen/living room and a generously sized bedroom.
Property Oracle says ..
This is a modern flat located in the Surbiton Hill area of Kingston Upon Thames. The property appears to be in excellent condition, with a modern kitchen and bathroom. While it doesn’t have a large garden, its location offers good access to local amenities and transport links. The price is slightly above the average price per square foot for the area, but this is likely reflective of the property’s condition.
Therefore, we give this property 6 / 10. *Disclaimer: This is our option and does constitute a recommendation or financial advice. Do your own research. *
- Price
- 6
- Condition
- 9
- Location
- 7
- Land
- 3
- Bedrooms
- 1
- Bathrooms
- 1
- Sqft (est)
- 582.33
The heatmap indicates the level of crime in the area. The color of the heatmap indicates the crime severity and recency.
Metrics Year-on-Year
- Average area value
- 887,143.00 £Increased by 60.41 %
- Est sale value
- 413,454.30 £Decreased by 7.67 %
- Average area rental value
- 2,469.00 £/moIncreased by 31.61 %
- Est letting value
- 582.33 £/moDecreased by 50.00 %
- Est rental Yield
- 3.34 %Decreased by 17.94 %
- Crime Rate
- 8.00 %Unchanged by 0.00 %
Agent Activity
Dexters created the listing.
Nearby Schools
| Name | Type | Ofsted | Distance |
|---|---|---|---|
| St Matthew'S Cofe Primary School | Voluntary Aided School | Good | 0.19 KM |
| Lime Tree Primary School | Foundation School | Requires improvement | 0.26 KM |
| Dysart School | Academy Special Converter | Outstanding | 0.32 KM |
| Richmond And Hillcroft Adult And Community College (Rhacc) | Further Education | Good | 0.35 KM |
| Surbiton Children'S Centre | Children's Centre | 0.47 KM |
Images
Nearby Streets
| Name | Average Price | Average Sqft | Distance |
|---|---|---|---|
| Glass Place | £ 0 | 0 | 0.00 KM |
| Hythe Road | £ 150,000 | 0 | 0.00 KM |
| The Drive | £ 0 | 0 | 0.00 KM |
| Crummocks Chase | £ 332,500 | 0 | 0.00 KM |
| Sage Yard | £ 0 | 0 | 0.00 KM |
Nearby Transport
| Name | NLC | TLC | Distance |
|---|---|---|---|
| Surbiton | 5571 | SUR | 0.62 KM |
| Berrylands | 5581 | BRS | 2.30 KM |
| Kingston | 5565 | KNG | 2.59 KM |
| Tolworth | 5573 | TOL | 2.60 KM |
| Chessington North | 5582 | CSN | 2.84 KM |
Nearby Listings
| Address | Price | Type | Score | Distance |
|---|---|---|---|---|
| Oak Hill Road, Surbiton | £ 425,000 | BUY | 6 / 10 | 0.00 KM |
| Oak Hill Road, Surbiton | £ 425,000 | BUY | 7 / 10 | 0.00 KM |
| Oak Hill Road, Surbiton | £ 315,000 | BUY | Unknown | 0.04 KM |
| Oak Hill Road, Surbiton, KT6 | £ 460,000 | BUY | 6 / 10 | 0.04 KM |
| Oakhill Road, Surbiton, KT6 | £ 275,000 | BUY | 6 / 10 | 0.05 KM |
Nearby Properties
| Address | Price | Distance |
|---|---|---|
| 108a Ewell Road | £ 300,000 | 0.10 KM |
| 124a Ewell Road | £ 137,000 | 0.10 KM |
| 3 Oakhill Road | £ 2,140,000 | 0.11 KM |
| Oak Cottage | £ 200,000 | 0.12 KM |
| 4a Langley Road | £ 430,000 | 0.12 KM |