Longmeadow Road, Lympstone, Exmouth
ST

Longmeadow Road, Lympstone, Exmouth

By Stags

£ 300,000

Reviews

3 out of 5 stars

Stags says ..

A charming two-bedroom, Grade II Listed cottage in the heart of Lympstone, offering a generous garden and potential for modernisation. No onward chain, walking distance to village amenities and train station, EPC: D

Property Oracle says ..

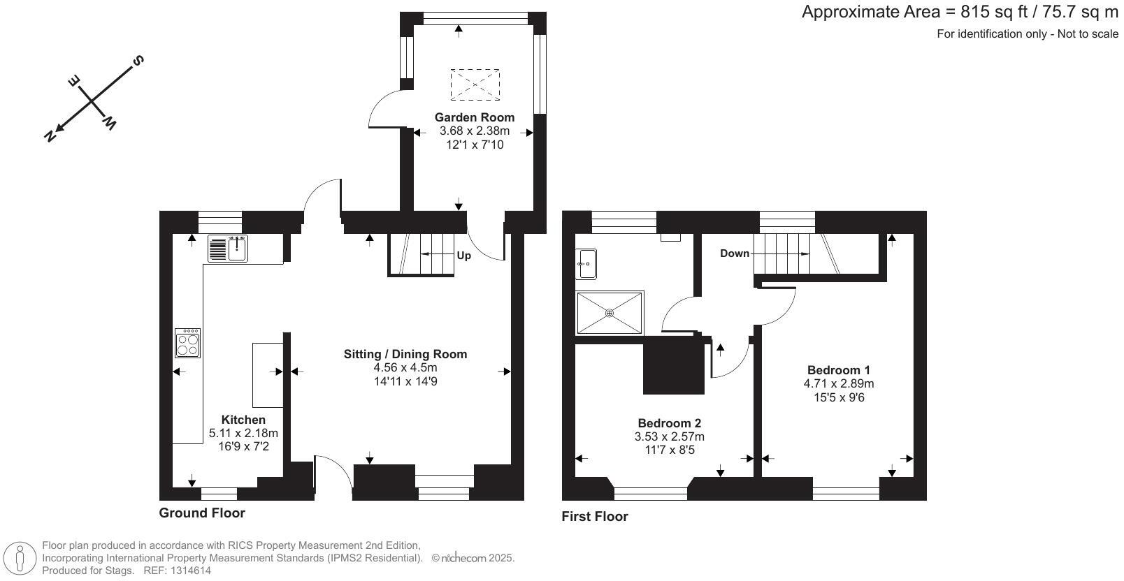
This terraced property is located on Longmeadow Road in Lympstone, East Devon. The property appears to be a period property with traditional features. The interior images suggest that the property may benefit from some modernisation, particularly in the bathroom and conservatory. The property has a small garden. The property is listed at £300,000. With a square footage of 679.20, this property is priced competitively for the area.

Therefore, we give this property 6 / 10. *Disclaimer: This is our option and does constitute a recommendation or financial advice. Do your own research. *

Price
8
Condition
5
Location
7
Land
6
Bedrooms
2
Bathrooms
1
Sqft (est)
679.20

The heatmap indicates the level of crime in the area. The color of the heatmap indicates the crime severity and recency.

Metrics Year-on-Year

Average area value
633,850.00 £
Increased by 20.04 %
from 528,026.00 £
Est sale value
184,063.20 £
Decreased by 36.68 %
from 290,697.60 £
Average area rental value
1,138.00 £/mo
Decreased by 18.71 %
from 1,400.00 £/mo
Est letting value
0.00 £/mo
Decreased by 100.00 %
from 679.20 £/mo
Est rental Yield
2.15 %
Decreased by 32.39 %
from 3.18 %
Crime Rate
22.00 %
Unchanged by 0.00 %
from 22.00 %

Agent Activity

  • Stags marked this listing as sold.

  • Stags created the listing.

Nearby Schools

NameTypeOfstedDistance
St Peter'S Preparatory SchoolOther Independent School0.65 KM
Lympstone Church Of England Primary SchoolVoluntary Controlled SchoolRequires improvement1.11 KM
Exmouth Community CollegeAcademy ConverterRequires improvement2.57 KM
Brixington Primary AcademyAcademy Sponsor LedRequires improvement2.74 KM
Withycombe Raleigh Church Of England Primary SchoolVoluntary Controlled SchoolGood2.80 KM

Images

Front Sitting/diner Fireplace Garden room Rear garden 1314614-11-685c2d3970935.jpg 1314614-14-685c2d59342cc.jpg 1314614-22-685c2dbd15c43.jpg Bedroom 1 Bedroom 2 1314614-8-685c2d04ce330.jpg Rear view 1314614-21-685c2dae7e45a.jpg 1314614-7-685c2cfd03846.jpg 1314614-5-685c2c9ee2d6c-ARW.jpg 1314614-3-685c2cbe2cb89.jpg 1314614-2-685c2c8746e36-ARW.jpg

Nearby Streets

NameAverage PriceAverage SqftDistance
Grange Close £ 000.00 KM
Hunton Close £ 000.00 KM
Charles Court £ 000.00 KM
Gibraltar Road £ 250,00000.00 KM
Victoria Gardens £ 375,00000.00 KM

Nearby Transport

NameNLCTLCDistance
Lympstone Village5761LYM1.54 KM
Exmouth5756EXM2.90 KM
Lympstone Commando5762LYC3.09 KM
Exton5760EXN3.77 KM
Starcross3413SCS4.04 KM

Nearby Listings

AddressPriceTypeScoreDistance
Longmeadow Road, Lympstone, Exmouth £ 300,000BUY6 / 100.00 KM
Longmeadow Road, Lympstone, Exmouth £ 500,000BUY6 / 100.04 KM
Malt Field, Lympstone, Exmouth £ 675,000BUY7 / 100.08 KM
Longmeadow Road, Lympstone, Devon, EX8 5LP £ 370,000BUY6 / 100.09 KM
Bakers Cottages, Longmeadow Road, Lympstone £ 370,000BUY6 / 100.09 KM

Nearby Properties

AddressPriceDistance
Marstrand £ 510,0000.05 KM
Shaun £ 149,9500.05 KM
Berry Cottage £ 470,0000.05 KM
Vine Cottage £ 340,0000.05 KM
Basses £ 506,9400.05 KM