The Marina, Deal, CT14
By Jenkinson Estates
£ 1,200,000
Reviews
3 out of 5 stars
Jenkinson Estates says ..
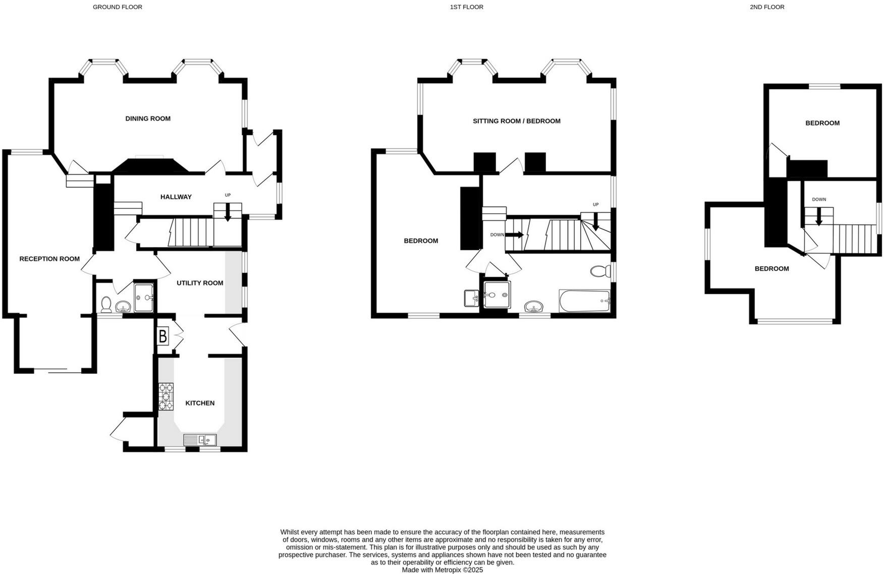
Exclusively via Jenkinson Estates is this impressive, Edwardian detached home situated on The Marina, Deal. The property offers spacious versatile accommodation, being arranged over three floors and being located on the historic coastline of Deal, this property benefits from unrivalled, uninterru...
Property Oracle says ..
The property is located on The Marina in Deal, offering potential sea views and proximity to the coast. Deal is a historic town in Kent, providing a blend of coastal living and local amenities. Nearby transportation includes Deal and Walmer train stations, offering connections to Southeastern rail services. Several schools are located within a few kilometers, including Sandown School and Warden House Primary School.
The interior photos suggest the property is in generally good condition, with modern kitchen and bathroom fittings. The living spaces appear well-maintained, and the bedrooms seem comfortable. The exterior of the property looks tidy, with a garden featuring a patio area and a gazebo. The images suggest the property is a traditional build that has been modernised.
The property is listed at £1,200,000. The average price per square foot in the area is £494.00, while this property is listed at approximately £1,244 per square foot. The average property price in the area is £505,375. Nearby properties on The Marina have sold for between £393,000 and £520,000, but these appear to be for smaller semi-detached properties. A detached property on Sandown Road sold for £600,000. Given the location and the condition of the property, the price appears high.
Therefore, we give this property 6 / 10. *Disclaimer: This is our option and does constitute a recommendation or financial advice. Do your own research. *
- Price
- 3
- Condition
- 7
- Location
- 8
- Land
- 7
- Bedrooms
- 4
- Bathrooms
- 2
- Sqft (est)
- 964.13
The heatmap indicates the level of crime in the area. The color of the heatmap indicates the crime severity and recency.
Metrics Year-on-Year
- Average area value
- 505,375.00 £Increased by 53.39 %
- Est sale value
- 476,280.22 £Increased by 26.99 %
- Average area rental value
- 1,085.00 £/moDecreased by 20.22 %
- Est letting value
- 964.13 £/moUnchanged by 0.00 %
- Est rental Yield
- 2.58 %Decreased by 47.88 %
- Crime Rate
- 3.00 %Unchanged by 0.00 %
Agent Activity
Jenkinson Estates created the listing.
Nearby Schools
| Name | Type | Ofsted | Distance |
|---|---|---|---|
| Sandown School | Academy Converter | 0.82 KM | |
| Brewood Secondary School | Other Independent Special School | Good | 2.03 KM |
| Goodwin Academy | Academy Sponsor Led | 2.50 KM | |
| Deal Parochial Church Of England Primary School | Academy Converter | 2.59 KM | |
| Warden House Primary School | Academy Converter | Outstanding | 2.99 KM |
Images
Nearby Streets
| Name | Average Price | Average Sqft | Distance |
|---|---|---|---|
| Hengist Road | £ 0 | 0 | 0.00 KM |
| Dibdin Road | £ 0 | 0 | 0.00 KM |
| Peter Street | £ 0 | 0 | 0.00 KM |
| Sandown Court | £ 0 | 0 | 0.00 KM |
| Brewer Street | £ 950,000 | 0 | 0.00 KM |
Nearby Transport
| Name | NLC | TLC | Distance |
|---|---|---|---|
| Deal | 5011 | DEA | 1.45 KM |
| Walmer | 5041 | WAM | 4.21 KM |
| Sandwich | 5026 | SDW | 7.73 KM |
| Martin Mill | 5040 | MTM | 9.42 KM |
Nearby Listings
| Address | Price | Type | Score | Distance |
|---|---|---|---|---|
| The Marina, Deal, CT14 | £ 1,200,000 | BUY | 6 / 10 | 0.00 KM |
| The Marina, Deal, Kent, CT14 | £ 650,000 | BUY | 6 / 10 | 0.10 KM |
| The Marina, Deal, Kent, CT14 | £ 450,000 | BUY | 8 / 10 | 0.11 KM |
| The Marina, Deal, Kent, CT14 | £ 450,000 | BUY | 8 / 10 | 0.14 KM |
| Sandown Road, Deal, CT14 | £ 575,000 | BUY | 6 / 10 | 0.15 KM |
Nearby Properties
| Address | Price | Distance |
|---|---|---|
| 78 The Marina | £ 393,000 | 0.09 KM |
| 74 The Marina | £ 520,000 | 0.09 KM |
| 75 The Marina | £ 485,000 | 0.09 KM |
| 12 Harold Road | £ 227,000 | 0.15 KM |
| 10 Harold Road | £ 258,000 | 0.15 KM |