Riverside Close, Elvington
Churchills Estate Agents logo

Riverside Close, Elvington

By Churchills Estate Agents

£ 235,000

Reviews

3 out of 5 stars

Churchills Estate Agents says ..

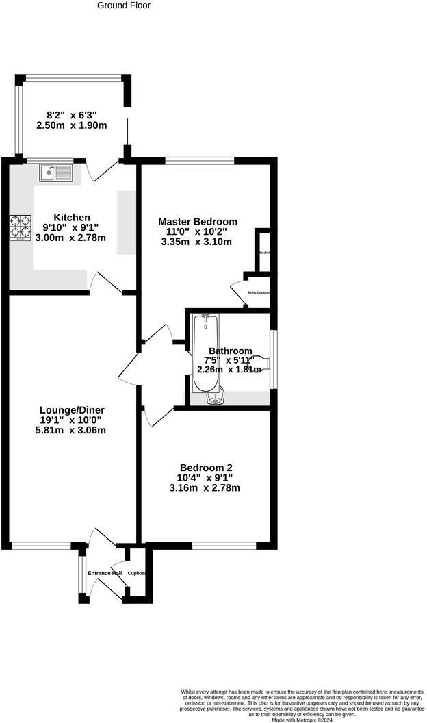
NO FORWARD CHAIN - CUL-DE-SAC POSITION - WELL MAINTAINED THROUGHOUT - ALLOCATED PARKING SPACE. We are delighted to offer to the market this lovely two double bedroom bungalow in this quiet cul-de-sac location in the popular village of Elvington on the east side of York. Local amenities include po...

Property Oracle says ..

This property is a 2-bedroom, 1-bathroom bungalow located in Elvington, York. The list price is £235,000, which is significantly below the average price for the area (£482,353). However, it is important to note that the average property size in the area is considerably larger (1,562 sqft) compared to this property (739.64 sqft). The property benefits from a small garden, as shown in the images. The property appears to be in reasonable condition, although some modernisation may be needed in the kitchen and bathroom. The location is close to several primary schools with good Ofsted ratings, making it potentially attractive to families. The lack of information regarding plot size and nearby transportation limits a more comprehensive evaluation.

Therefore, we give this property 6 / 10. *Disclaimer: This is our option and does constitute a recommendation or financial advice. Do your own research. *

Price
8
Condition
6
Location
7
Land
4
Bedrooms
2
Bathrooms
1
Sqft (est)
739.64

The heatmap indicates the level of crime in the area. The color of the heatmap indicates the crime severity and recency.

Metrics Year-on-Year

Average area value
591,875.00 £
Increased by 5.13 %
from 562,987.00 £
Est sale value
352,808.28 £
Decreased by 6.47 %
from 377,216.40 £
Average area rental value
1,194.00 £/mo
Decreased by 3.63 %
from 1,239.00 £/mo
Est letting value
0.00 £/mo
Decreased by 100.00 %
from 739.64 £/mo
Est rental Yield
2.42 %
Decreased by 8.33 %
from 2.64 %
Crime Rate
119.00 %
Unchanged by 0.00 %
from 119.00 %

Agent Activity

  • Churchills Estate Agents created the listing.

Nearby Schools

NameTypeOfstedDistance
Elvington Church Of England Voluntary Controlled Primary SchoolVoluntary Controlled SchoolGood0.84 KM
Sutton Upon Derwent Church Of England Voluntary Controlled Primary SchoolVoluntary Controlled SchoolGood1.32 KM
Wheldrake With Thorganby Church Of England Primary SchoolAcademy Converter4.36 KM
Wilberfoss Church Of England Voluntary Controlled Primary SchoolVoluntary Controlled SchoolGood5.78 KM
Dunnington Church Of England Primary SchoolAcademy Converter7.51 KM

Images

DSC_6662.jpg DSC_6634.jpg DSC_6606.jpg DSC_6619.jpg DSC_6659.jpg DSC_6647.jpg DSC_6650.jpg DSC_6618.jpg DSC_6615.jpg DSC_6632.jpg new external.jpg New bthroom 2.jpg new loounge 2.jpg new lounge 1.jpg New garden 1.jpg New bathroom.jpg New bedroom 1.jpg new pic.jpg new external 1.jpg

Nearby Streets

NameAverage PriceAverage SqftDistance
Church Green £ 000.00 KM
Derwent Close £ 425,00000.00 KM
Sandhill Lane £ 1,000,00000.00 KM
Wynam Lane £ 000.00 KM

Nearby Listings

AddressPriceTypeScoreDistance
Riverside Close, Elvington, York £ 220,000BUY5 / 100.00 KM
Riverside Close, York, YO41 £ 255,000BUY7 / 100.07 KM
11 Riverside Close, Elvington, YO41 4DU £ 550,000BUY7 / 100.07 KM
Main Street, Elvington, York YO41 4HG £ 300,000BUY6 / 100.11 KM
Main Street, Elvington, York £ 550,000BUY6 / 100.12 KM

Nearby Properties

AddressPriceDistance
25 Riverside Close £ 220,0000.06 KM
5 Riverside Close £ 123,0000.06 KM
1 Riverside Close £ 210,0000.06 KM
3 Riverside Close £ 180,0000.06 KM
22 Riverside Close £ 138,1250.06 KM