Lulworth Avenue, Leeds, West Yorkshire, LS15
By YOUR MOVE James Barrett
£ 255,000
Reviews
3 out of 5 stars
YOUR MOVE James Barrett says ..
A lovely semi detached bungalow in good order throughout and located within this most popular development which is ideally placed for Cross Gates and all it's amenities. The property has a gas central heating system and double glazing along with a good sized modern kitchen and pretty gardens to t...
Property Oracle says ..
This two-bedroom semi-detached bungalow in Leeds, West Yorkshire, presents a compelling proposition for prospective buyers. Located on Lulworth Avenue in the Temple Newsam area, it benefits from proximity to Cross Gates train station, enhancing its accessibility. The property shows signs of being well maintained and recently updated, particularly the kitchen and bathroom appear modern. The images reveal a neat and tidy exterior with a garden and patio area. While not extensive, this outdoor space still provides additional value. The price point of £255,000 seems competitive within its locality, based on comparable listings, although accurate per sqft comparison is hampered by a lack of consistent sqft data across the provided dataset. Overall, the property offers a good balance of convenience, condition, and price. Potential buyers should independently verify the Ofsted ratings of nearby schools and conduct a thorough survey before proceeding. The absence of plot size information prevents a more in-depth analysis of the land. Further research into local council tax rates and other property-related costs should be undertaken before purchase.
Therefore, we give this property 6 / 10. *Disclaimer: This is our option and does constitute a recommendation or financial advice. Do your own research. *
- Price
- 7
- Condition
- 7
- Location
- 7
- Land
- 4
- Bedrooms
- 2
- Bathrooms
- 1
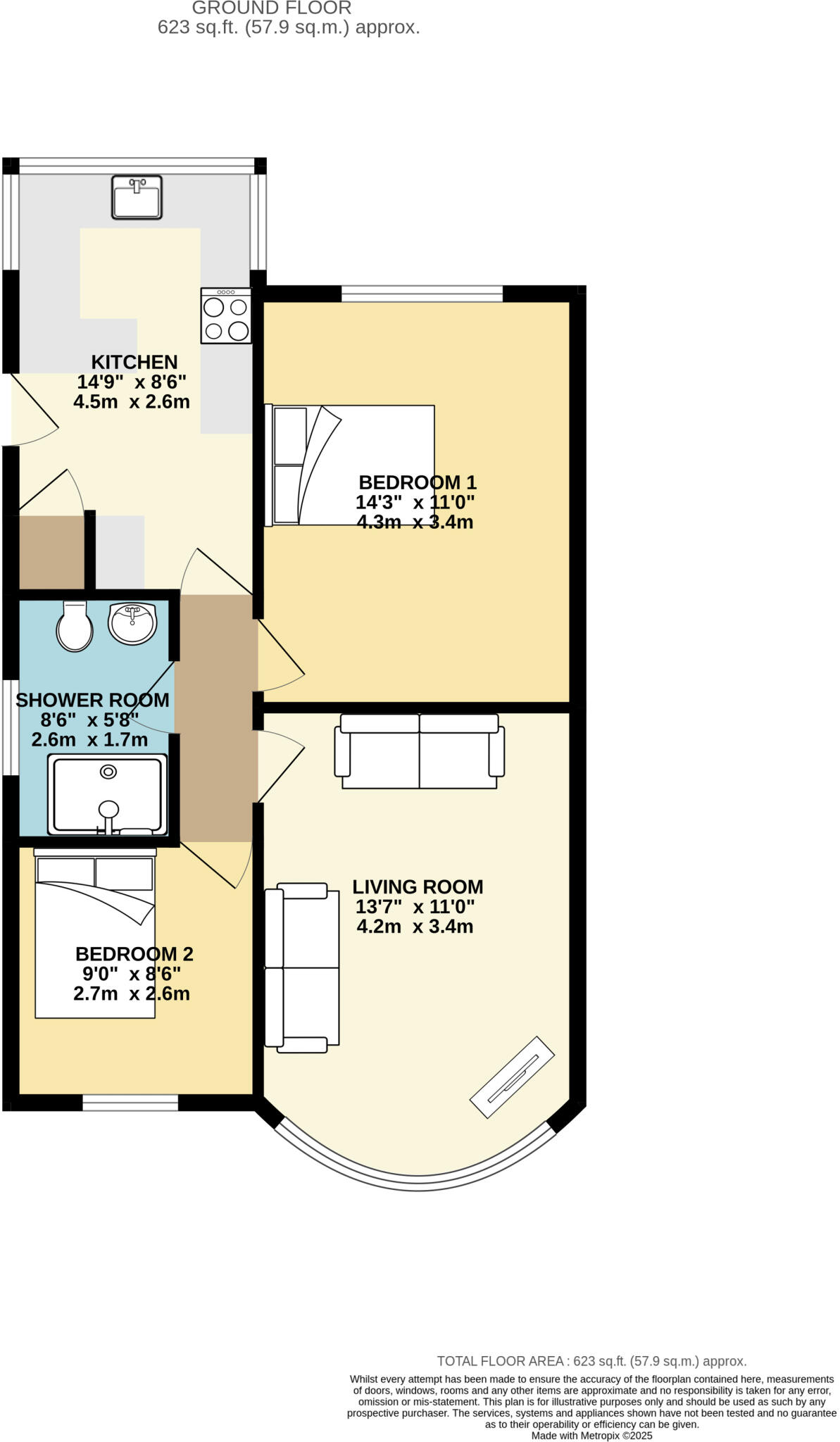
- Sqft (est)
- 623.23
The heatmap indicates the level of crime in the area. The color of the heatmap indicates the crime severity and recency.
Metrics Year-on-Year
- Average area value
- 260,997.00 £Decreased by 2.01 %
- Est sale value
- 289,178.72 £Increased by 62.81 %
- Average area rental value
- 1,210.00 £/moUnchanged by 0.00 %
- Est letting value
- 1,246.46 £/moIncreased by 100.00 %
- Est rental Yield
- 5.56 %Increased by 2.02 %
- Crime Rate
- 1.00 %Unchanged by 0.00 %
Agent Activity
YOUR MOVE James Barrett created the listing.
Nearby Schools
| Name | Type | Ofsted | Distance |
|---|---|---|---|
| Austhorpe Primary School | Academy Converter | 1.01 KM | |
| Manston St James Primary Academy | Academy Converter | Good | 1.10 KM |
| Manston Primary School | Community School | Good | 1.35 KM |
| Colton Primary School | Academy Converter | 1.39 KM | |
| Whitkirk Primary School | Academy Converter | 1.43 KM |
Images
Nearby Streets
| Name | Average Price | Average Sqft | Distance |
|---|---|---|---|
| Old Ring Road Halton | £ 0 | 0 | 0.00 KM |
| Cake Walk | £ 0 | 0 | 0.00 KM |
| Back Marshall Avenue | £ 0 | 0 | 0.00 KM |
| Back Hollyshaw Terrace | £ 0 | 0 | 0.00 KM |
| Back Marshall Terrace | £ 0 | 0 | 0.00 KM |
Nearby Transport
| Name | NLC | TLC | Distance |
|---|---|---|---|
| Cross Gates | 8473 | CRG | 0.77 KM |
| Woodlesford | 8578 | WDS | 4.99 KM |
| Garforth | 8474 | GRF | 7.00 KM |
| East Garforth | 8472 | EGF | 8.35 KM |
Nearby Listings
| Address | Price | Type | Score | Distance |
|---|---|---|---|---|
| Lulworth Avenue, Leeds, West Yorkshire, LS15 | £ 250,000 | BUY | 7 / 10 | 0.00 KM |
| Lulworth Avenue, Leeds | £ 260,000 | BUY | Unknown | 0.05 KM |
| Kingswear Parade, Crossgates, Leeds 15 | £ 266,000 | BUY | 7 / 10 | 0.06 KM |
| Lulworth Avenue, Leeds | £ 265,000 | BUY | 7 / 10 | 0.09 KM |
| Lulworth Avenue, Leeds | £ 250,000 | BUY | 7 / 10 | 0.09 KM |
Nearby Properties
| Address | Price | Distance |
|---|---|---|
| 6 Lulworth Close | £ 148,000 | 0.04 KM |
| 3 Lulworth Close | £ 146,883 | 0.04 KM |
| 2 Lulworth Close | £ 140,000 | 0.04 KM |
| 1 Lulworth Close | £ 215,000 | 0.04 KM |
| 5 Lulworth Close | £ 145,950 | 0.04 KM |