GR
Doddington Road, Twydall, Gillingham, ME8
By Greyfox Estate Agents
£ 300,000
Reviews
3 out of 5 stars
Greyfox Estate Agents says ..
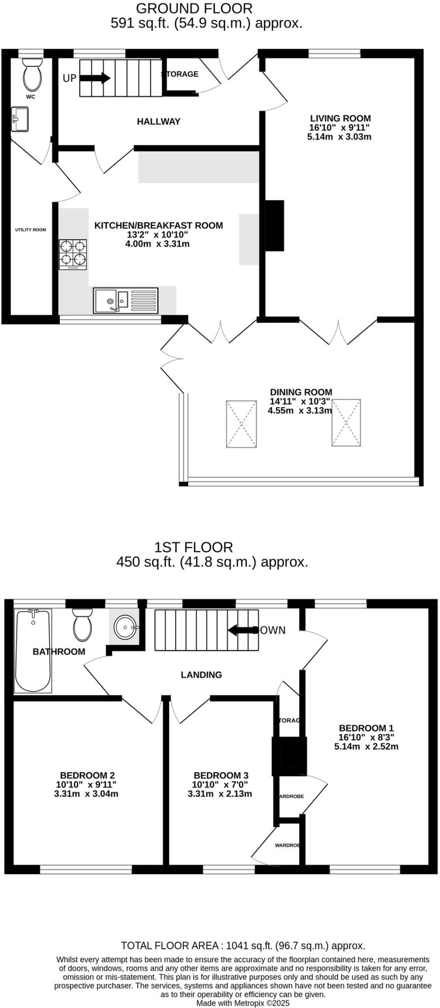
**Guide Price £300,000-£325,000** This spacious and well-presented extended family home offers excellent living accommodation, starting with a large entrance hallway complete with built-in storage. The modern kitchen/breakfast room is ideal for everyday family living and is complem...
Property Oracle says ..
Therefore, we give this property 7 / 10. *Disclaimer: This is our option and does constitute a recommendation or financial advice. Do your own research. *
- Price
- 8
- Condition
- 6
- Location
- 7
- Land
- 7
- Bedrooms
- 3
- Bathrooms
- 1
- Sqft (est)
- 786.52
The heatmap indicates the level of crime in the area. The color of the heatmap indicates the crime severity and recency.
Metrics Year-on-Year
- Average area value
- 405,000.00 £Increased by 14.70 %
- Est sale value
- 312,248.44 £Increased by 5.03 %
- Average area rental value
- 1,825.00 £/moIncreased by 1.45 %
- Est letting value
- 786.52 £/moUnchanged by 0.00 %
- Est rental Yield
- 5.41 %Decreased by 11.46 %
- Crime Rate
- 10.00 %Unchanged by 0.00 %
from 353,082.00 £
from 297,304.56 £
from 1,799.00 £/mo
from 786.52 £/mo
from 6.11 %
from 10.00 %
Agent Activity
Greyfox Estate Agents created the listing.
Nearby Schools
| Name | Type | Ofsted | Distance |
|---|---|---|---|
| Rainham Mark Grammar School | Academy Converter | Outstanding | 0.42 KM |
| Thames View Primary School | Academy Converter | Good | 0.84 KM |
| Twydall Primary School And Nursery | Academy Sponsor Led | Requires improvement | 0.93 KM |
| Hand In Hand Children'S Centre | Children's Centre | 0.93 KM | |
| The Howard School | Academy Converter | Good | 1.03 KM |
Images
Nearby Streets
| Name | Average Price | Average Sqft | Distance |
|---|---|---|---|
| Beechings Green | £ 0 | 0 | 0.00 KM |
| Wright Close | £ 0 | 0 | 0.00 KM |
| Truro Close | £ 462,500 | 0 | 0.00 KM |
| Dorset Square | £ 265,000 | 0 | 0.00 KM |
| Minster Road | £ 0 | 0 | 0.00 KM |
Nearby Transport
| Name | NLC | TLC | Distance |
|---|---|---|---|
| Rainham (Kent) | 5177 | RAI | 2.29 KM |
| Gillingham (Kent) | 5169 | GLM | 4.88 KM |
| Chatham | 5199 | CTM | 7.85 KM |
| Newington | 5175 | NGT | 8.77 KM |
| Rochester | 5203 | RTR | 9.12 KM |
Nearby Listings
| Address | Price | Type | Score | Distance |
|---|---|---|---|---|
| Doddington Road, Twydall, Gillingham, ME8 | £ 300,000 | BUY | 7 / 10 | 0.00 KM |
| Doddington Road, Twydall, Gillingham, Kent | £ 265,000 | BUY | 7 / 10 | 0.09 KM |
| Doddington Road, Twydall, Gillingham, Kent | £ 175,500 | BUY | 7 / 10 | 0.09 KM |
| Hawthorne Avenue, Twydall, Kent, ME8 | £ 350,000 | BUY | 7 / 10 | 0.10 KM |
| Beechings Green, Twydall, Gillingham, ME8 | £ 325,000 | BUY | 5 / 10 | 0.14 KM |
Nearby Properties
| Address | Price | Distance |
|---|---|---|
| 7 Doddington Road | £ 119,000 | 0.08 KM |
| 37 Doddington Road | £ 51,000 | 0.08 KM |
| 36 Doddington Road | £ 147,000 | 0.08 KM |
| 64 Hollingbourne Road | £ 213,000 | 0.08 KM |
| 57 Hollingbourne Road | £ 280,000 | 0.08 KM |