Brown & Co says ..
Brown&Co offers an outstanding home of superior size and quality to the market in Upwell, eight miles from a mainline station to Ely, Cambridge and London. Further details in full listing.
Property Oracle says ..
The property is a detached house located on New Road, Upwell, in the King’s Lynn and West Norfolk area of Norfolk. The area has an average house price of £265,511, with an average price per square foot of £302. While the property’s square footage is not provided, its list price of £750,000 is significantly higher than the average for the area. Nearby properties on New Road range in price from £182,500 to £225,000, further highlighting the significant price difference. Several nearby listings also show prices ranging from £200,000 to £795,000, indicating a wide range of property values in the immediate vicinity. The lack of square footage data for both the subject property and nearby listings makes a precise price per square foot comparison impossible, hindering a definitive conclusion on price value.
The images suggest the property is in excellent condition, appearing modern and recently built. It features a contemporary design with high-quality finishes throughout. The property includes a substantial garden with a well-maintained lawn, patio area, and a hot tub. The presence of a garden and its apparent size contribute positively to the overall property appeal.
The proximity to several schools, including Beaupre Community Primary School and Upwell Academy, is a positive aspect for families. However, the provided Ofsted ratings for some of these schools indicate a need for improvement in certain areas. The distance to these schools is relatively short, which is beneficial. There is no information on nearby transportation links.
In summary, while the property appears to be in excellent condition and benefits from a large garden, its list price is substantially above the average for the area. The lack of square footage information makes it difficult to accurately assess the price per square foot and determine if the asking price is justified. The location offers proximity to schools, but further information on transportation links and a more detailed analysis of the property’s size would be needed for a complete evaluation.
Therefore, we give this property 7 / 10. *Disclaimer: This is our option and does constitute a recommendation or financial advice. Do your own research. *
- Price
- 4
- Condition
- 10
- Location
- 7
- Land
- 8
- Bedrooms
- 6
- Bathrooms
- 3
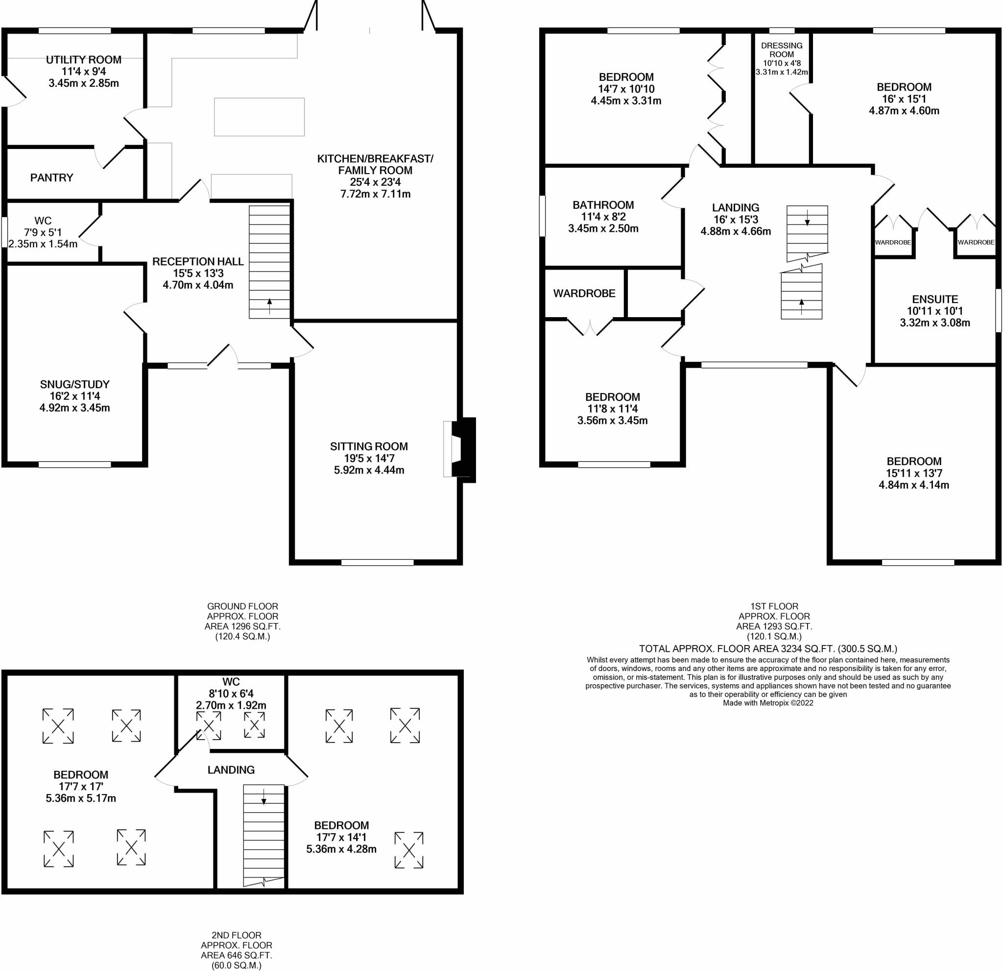
- Sqft (est)
- 3,234.56
The heatmap indicates the level of crime in the area. The color of the heatmap indicates the crime severity and recency.
Metrics Year-on-Year
- Average area value
- 245,074.00 £Decreased by 15.93 %
- Est sale value
- 760,121.60 £Decreased by 37.50 %
- Average area rental value
- 1,254.00 £/moDecreased by 5.43 %
- Est letting value
- 3,234.56 £/moUnchanged by 0.00 %
- Est rental Yield
- 6.14 %Increased by 12.45 %
- Crime Rate
- 14.00 %Unchanged by 0.00 %
Agent Activity
Brown & Co created the listing.
Nearby Schools
| Name | Type | Ofsted | Distance |
|---|---|---|---|
| Beaupre Community Primary School | Community School | Requires improvement | 1.59 KM |
| Upwell Academy | Academy Sponsor Led | 1.69 KM | |
| Emneth Children'S Centre | Children's Centre | 4.35 KM | |
| Emneth Academy | Academy Sponsor Led | Requires improvement | 4.35 KM |
| Emneth Nursery School | Local Authority Nursery School | Outstanding | 4.59 KM |
Images
Nearby Streets
| Name | Average Price | Average Sqft | Distance |
|---|---|---|---|
| Bridle Close | £ 0 | 0 | 0.00 KM |
| Hallbridge Road | £ 190,000 | 0 | 0.00 KM |
| Saint Andrew's Close | £ 175,000 | 0 | 0.00 KM |
Nearby Listings
| Address | Price | Type | Score | Distance |
|---|---|---|---|---|
| New Road, Upwell | £ 750,000 | BUY | 7 / 10 | 0.00 KM |
| New Road, Upwell, WISBECH | £ 280,000 | BUY | 5 / 10 | 0.00 KM |
| New Road, Upwell | £ 795,000 | BUY | Unknown | 0.00 KM |
| Small Lode, Upwell, Wisbech, PE14 9BA | £ 325,000 | BUY | 7 / 10 | 0.19 KM |
| 3 Green Road, Upwell, Wisbech, Cambridgeshire, PE14 9HS | £ 80,000 | BUY | 6 / 10 | 0.26 KM |
Nearby Properties
| Address | Price | Distance |
|---|---|---|
| 36 New Road | £ 225,000 | 0.09 KM |
| 33 New Road | £ 185,000 | 0.09 KM |
| 34 New Road | £ 182,500 | 0.09 KM |
| 5 New Road | £ 200,000 | 0.09 KM |
| The Old Chapel | £ 195,000 | 0.09 KM |