Fletcher & Poole says ..
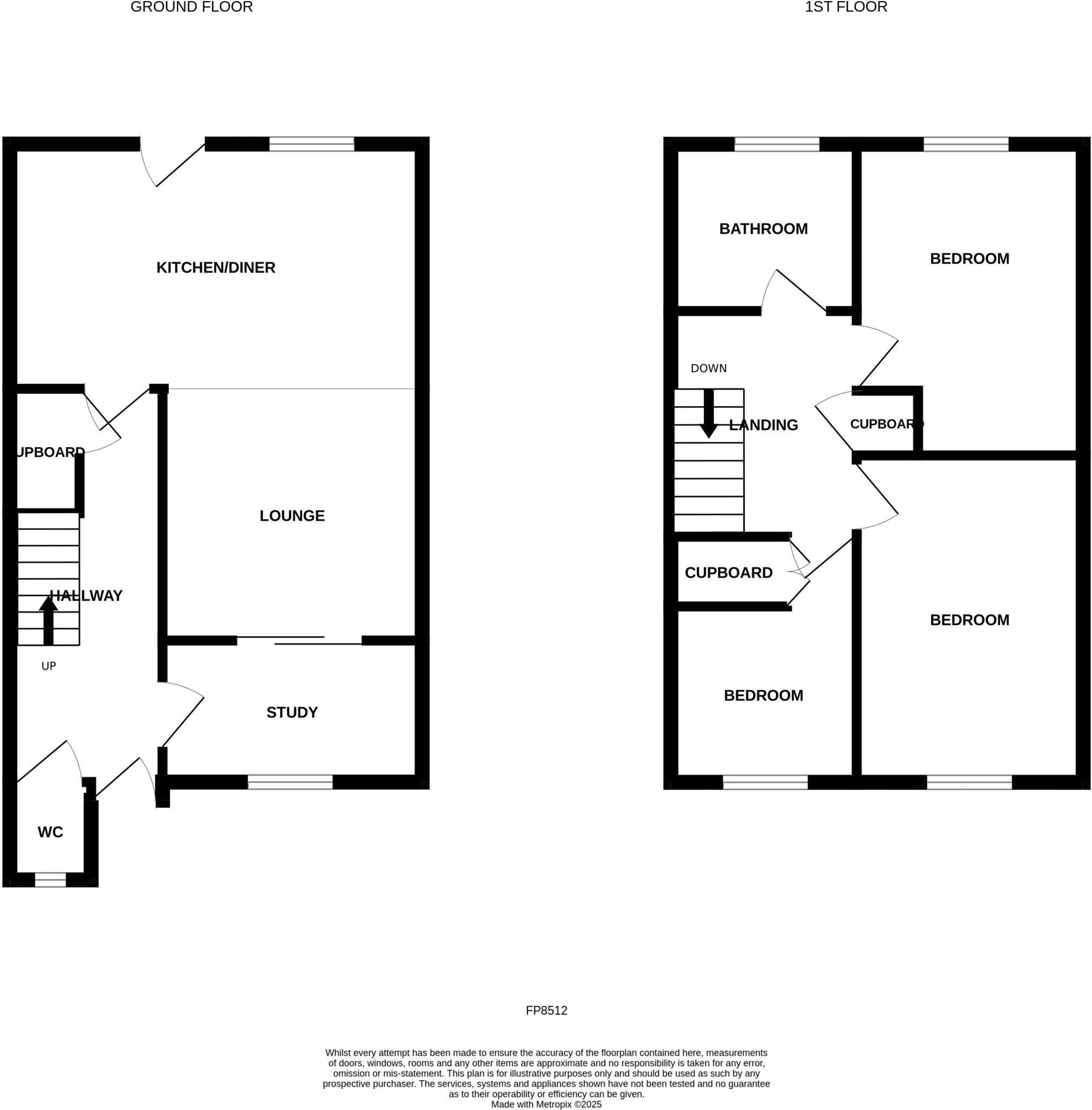
An immaculately presented three bedroom semi-detached home situated close to the shops, amenities and schools, and within easy access to the beach. The current owners have refurbished and reconfigured the accommodation to a high standard and comprises: Hallway, cloakroom, study area with pocke...
Property Oracle says ..
This semi-detached property on King’s Drive, Llandudno, presents a well-maintained living space in a convenient location. The modern kitchen and bathroom are notable highlights, and the presence of a garden, albeit small, adds to its appeal. The property is situated within reasonable proximity to local schools and transportation, making it suitable for families or commuters. While the exterior shows some signs of wear, the overall condition is good, and the price appears competitive for the area. The property also benefits from off street parking and a garage.
Therefore, we give this property 7 / 10. *Disclaimer: This is our option and does constitute a recommendation or financial advice. Do your own research. *
- Price
- 7
- Condition
- 8
- Location
- 7
- Land
- 6
- Bedrooms
- 3
- Bathrooms
- 1
- Sqft (est)
- 880.00
The heatmap indicates the level of crime in the area. The color of the heatmap indicates the crime severity and recency.
Metrics Year-on-Year
- Average area value
- 238,333.00 £Decreased by 7.74 %
- Est sale value
- 192,720.00 £Increased by 27.33 %
- Average area rental value
- 595.00 £/moDecreased by 19.81 %
- Est letting value
- 0.00 £/mo
- Est rental Yield
- 3.00 %Decreased by 13.04 %
- Crime Rate
- 22.00 %Unchanged by 0.00 %
Agent Activity
Fletcher & Poole created the listing.
Nearby Schools
| Name | Type | Ofsted | Distance |
|---|---|---|---|
| Ysgol Ffordd Dyffryn | Welsh Establishment | 0.14 KM | |
| Ysgol Tudno | Welsh Establishment | 0.45 KM | |
| Ysgol Morfa Rhiannedd | Welsh Establishment | 0.85 KM | |
| Ysgol San Sior | Welsh Establishment | 1.02 KM | |
| Ysgol John Bright | Welsh Establishment | 1.08 KM |
Images
Nearby Streets
| Name | Average Price | Average Sqft | Distance |
|---|---|---|---|
| King's Drive | £ 0 | 0 | 0.00 KM |
| Herkomer Road | £ 245,000 | 0 | 0.00 KM |
| Hospital Road | £ 0 | 0 | 0.00 KM |
| New Street | £ 153,000 | 0 | 0.00 KM |
| Norwood Passage | £ 0 | 0 | 0.00 KM |
Nearby Transport
| Name | NLC | TLC | Distance |
|---|---|---|---|
| Llandudno | 2484 | LLD | 0.87 KM |
| Deganwy | 2480 | DGY | 2.51 KM |
| Conwy | 2486 | CNW | 4.15 KM |
| Llandudno Junction | 2485 | LLJ | 4.62 KM |
| Glan Conwy | 2454 | GCW | 6.84 KM |
Nearby Listings
| Address | Price | Type | Score | Distance |
|---|---|---|---|---|
| Kings Drive, Llandudno | £ 199,950 | BUY | 7 / 10 | 0.00 KM |
| Kings Road, Llandudno, Conwy, LL30 | £ 170,000 | BUY | 5 / 10 | 0.08 KM |
| Trinity Court, Llandudno, LL30 | £ 125,000 | BUY | 7 / 10 | 0.10 KM |
| Trinity Court, Llandudno, Conwy, LL30 | £ 130,000 | BUY | 6 / 10 | 0.11 KM |
| Trinity Avenue, Llandudno, LL30 | £ 264,950 | BUY | 6 / 10 | 0.17 KM |
Nearby Properties
| Address | Price | Distance |
|---|---|---|
| 10 Kings Place | £ 125,000 | 0.05 KM |
| 4 Kings Place | £ 56,500 | 0.05 KM |
| 5 Kings Place | £ 130,000 | 0.05 KM |
| 33 Kings Road | £ 120,000 | 0.08 KM |
| 66 Kings Road | £ 110,000 | 0.08 KM |