PA
South Terrace, Horden, Peterlee, Durham, SR8 4NG
By Pattinson Estate Agents
£ 50,000
Reviews
2 out of 5 stars
Pattinson Estate Agents says ..
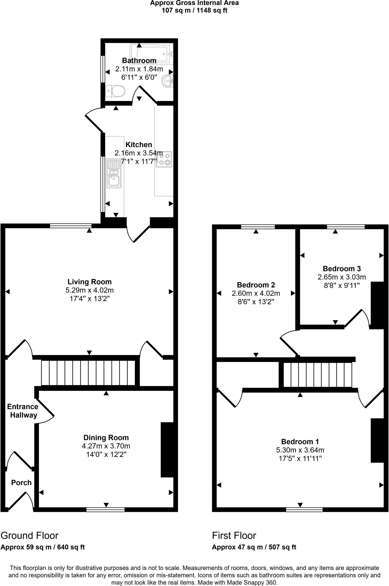
***3 BEDROOMS*** ***TENANT IN SITU*** ***FREEHOLD*** Pattinson welcome to the market this three bedroom terraced property located on South Terrace in Horden. The property is to be sold with tenant in-situ. To the ground floor, the property comprises an entrance hallway, Living Room, ...
Property Oracle says ..
Therefore, we give this property 4 / 10. *Disclaimer: This is our option and does constitute a recommendation or financial advice. Do your own research. *
- Price
- 7
- Condition
- 3
- Location
- 6
- Land
- 3
- Bedrooms
- 3
- Bathrooms
- 1
- Sqft (est)
- 930.00
The heatmap indicates the level of crime in the area. The color of the heatmap indicates the crime severity and recency.
Metrics Year-on-Year
- Average area value
- 41,429.00 £Decreased by 46.58 %
- Est sale value
- 41,850.00 £Decreased by 48.86 %
- Average area rental value
- 513.00 £/moDecreased by 4.65 %
- Est letting value
- 0.00 £/mo
- Est rental Yield
- 14.86 %Increased by 78.39 %
- Crime Rate
- 48.00 %Unchanged by 0.00 %
from 77,547.00 £
from 81,840.00 £
from 538.00 £/mo
from 0.00 £/mo
from 8.33 %
from 48.00 %
Agent Activity
Pattinson Estate Agents created the listing.
Nearby Schools
| Name | Type | Ofsted | Distance |
|---|---|---|---|
| Dene Academy | Academy Converter | 0.61 KM | |
| Dene House Primary School | Academy Sponsor Led | Requires improvement | 0.77 KM |
| Horden Children'S Centre | Children's Centre | 0.85 KM | |
| Cotsford Primary School | Community School | Good | 0.86 KM |
| Seascape Primary School | Community School | Good | 0.94 KM |
Images
Nearby Streets
| Name | Average Price | Average Sqft | Distance |
|---|---|---|---|
| Aged Miners Homes | £ 0 | 0 | 0.00 KM |
| Eden Vale Estate | £ 0 | 0 | 0.00 KM |
| Dene Street | £ 0 | 0 | 0.00 KM |
| Northumberland Street | £ 0 | 0 | 0.00 KM |
| Second Street | £ 0 | 0 | 0.00 KM |
Nearby Transport
| Name | NLC | TLC | Distance |
|---|---|---|---|
| Seaham | 7814 | SEA | 8.95 KM |
Nearby Listings
| Address | Price | Type | Score | Distance |
|---|---|---|---|---|
| South Terrace, Horden, Peterlee, Durham, SR8 4NG | £ 50,000 | BUY | 4 / 10 | 0.00 KM |
| South Terrace, Peterlee, SR8 | £ 57,000 | BUY | 5 / 10 | 0.07 KM |
| Tees Street, Peterlee, SR8 | £ 48,000 | BUY | 5 / 10 | 0.09 KM |
| 21 Eleventh Street, Horden, Peterlee, County Durham, SR8 4QQ | £ 10,000 | BUY | 4 / 10 | 0.09 KM |
| Eleventh Street, Peterlee, SR8 4 | £ 25,000 | BUY | 5 / 10 | 0.09 KM |
Nearby Properties
| Address | Price | Distance |
|---|---|---|
| 4 South Terrace | £ 39,999 | 0.07 KM |
| 8 South Terrace | £ 33,000 | 0.07 KM |
| 6 South Terrace | £ 34,000 | 0.07 KM |
| 29 South Terrace | £ 38,500 | 0.07 KM |
| 10 South Terrace | £ 75,000 | 0.07 KM |