Ben Rose says ..
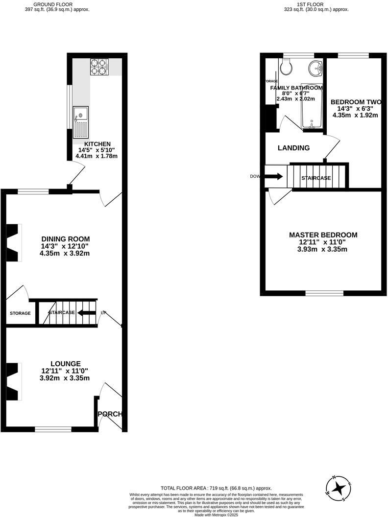
Ben Rose Estate Agents are pleased to present to the market this NO CHAIN two-bedroom, mid-terrace property located in a popular area of Chorley. This would be an ideal home for a first-time buyer looking to get onto the property ladder or as a buy-to-let investment in a prominent area. The prope...
Property Oracle says ..
Therefore, we give this property 6 / 10. *Disclaimer: This is our option and does constitute a recommendation or financial advice. Do your own research. *
- Price
- 8
- Condition
- 8
- Location
- 7
- Land
- 3
- Bedrooms
- 2
- Bathrooms
- 1
- Sqft (est)
- 692.00
The heatmap indicates the level of crime in the area. The color of the heatmap indicates the crime severity and recency.
Metrics Year-on-Year
- Average area value
- 445,205.00 £Decreased by 3.69 %
- Est sale value
- 446,340.00 £Increased by 20.34 %
- Average area rental value
- 1,836.00 £/moIncreased by 4.79 %
- Est letting value
- 1,384.00 £/moUnchanged by 0.00 %
- Est rental Yield
- 4.95 %Increased by 8.79 %
- Crime Rate
- 5.00 %Unchanged by 0.00 %
from 462,259.00 £
from 370,912.00 £
from 1,752.00 £/mo
from 1,384.00 £/mo
from 4.55 %
from 5.00 %
Agent Activity
Ben Rose created the listing.
Nearby Schools
| Name | Type | Ofsted | Distance |
|---|---|---|---|
| Duke Street Children'S Centre | Children's Centre | 0.40 KM | |
| Duke Street Nursery School | Local Authority Nursery School | Outstanding | 0.45 KM |
| Duke Street Primary School | Community School | Good | 0.51 KM |
| Mayfield School | Community Special School | Good | 0.73 KM |
| St George'S Church Of England Primary School, Chorley | Voluntary Aided School | Outstanding | 0.74 KM |
Images
Nearby Streets
| Name | Average Price | Average Sqft | Distance |
|---|---|---|---|
| Princess Street | £ 69,995 | 0 | 0.00 KM |
| Tennyson Avenue | £ 0 | 0 | 0.00 KM |
| Standish Street | £ 175,000 | 0 | 0.00 KM |
| Berkeley Close | £ 0 | 0 | 0.00 KM |
| Furness Close | £ 249,998 | 0 | 0.00 KM |
Nearby Transport
| Name | NLC | TLC | Distance |
|---|---|---|---|
| Chorley | 2745 | CRL | 0.84 KM |
| Adlington (Lancashire) | 2641 | ADL | 4.39 KM |
| Buckshaw Parkway | 7501 | BSV | 4.92 KM |
| Euxton Balshaw Lane | 2080 | EBA | 5.30 KM |
| Blackrod | 2732 | BLK | 8.68 KM |
Nearby Listings
| Address | Price | Type | Score | Distance |
|---|---|---|---|---|
| Smith Street, Chorley | £ 119,995 | BUY | 6 / 10 | 0.00 KM |
| Poplar Street, Chorley | £ 145,000 | BUY | 7 / 10 | 0.03 KM |
| 10 Smith Street, Chorley, Lancashire PR7 3EJ | £ 55,000 | BUY | 5 / 10 | 0.03 KM |
| Poplar Street, Chorley, PR7 3EN | £ 130,000 | BUY | 7 / 10 | 0.03 KM |
| Pilling Lane, Chorley | £ 109,995 | BUY | 5 / 10 | 0.08 KM |
Nearby Properties
| Address | Price | Distance |
|---|---|---|
| 8 Smith Street | £ 119,995 | 0.01 KM |
| 11 Smith Street | £ 25,250 | 0.01 KM |
| 6 Smith Street | £ 100,000 | 0.01 KM |
| 12 Smith Street | £ 80,000 | 0.01 KM |
| 1 Smith Street | £ 113,000 | 0.01 KM |