Jenkinson Estates says ..
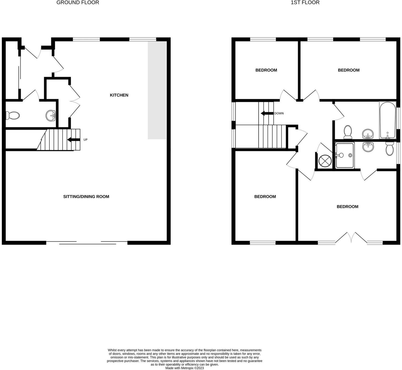
Jenkinson Estates are pleased to bring to the market this new build home, with an ornate design and smooth contemporary lines, in the popular location of Golf Road, Deal. The property offers all that is expected from a new build, including a spacious open plan living area to the ground floor. Thi...
Property Oracle says ..
This property, located on Golf Road in Deal, Kent, is presented as a modern, well-maintained home. The images depict a newly built or extensively refurbished property exhibiting a contemporary design and high-quality finishes. The open-plan living area, modern kitchen, and en-suite bathrooms showcase a stylish and functional layout. The inclusion of a garden offers some outdoor space, although its size remains unconfirmed. Deal is a popular coastal town, benefiting from good transport connections via Deal train station. The property’s proximity to Sandown School is also a positive aspect for families. The asking price, at £695,000, needs further contextualisation via sqft data to conclusively determine value. However, based on available comparable sales data in the vicinity, the pricing appears competitive, aligning with the contemporary standards showcased. Further investigation into the precise plot size and local market comparables is recommended to obtain a complete valuation and assess the suitability for potential buyers. The lack of square footage data for nearby properties prevents a definitive assessment of value for money. The impressive condition of the property is a noteworthy feature, however.
Therefore, we give this property 6 / 10. *Disclaimer: This is our option and does constitute a recommendation or financial advice. Do your own research. *
- Price
- 7
- Condition
- 9
- Location
- 7
- Land
- 4
- Bedrooms
- 4
- Bathrooms
- 3
- Sqft (est)
- 1,000.00
The heatmap indicates the level of crime in the area. The color of the heatmap indicates the crime severity and recency.
Metrics Year-on-Year
- Average area value
- 505,375.00 £Increased by 53.39 %
- Est sale value
- 494,000.00 £Increased by 26.99 %
- Average area rental value
- 1,085.00 £/moDecreased by 20.22 %
- Est letting value
- 1,000.00 £/moUnchanged by 0.00 %
- Est rental Yield
- 2.58 %Decreased by 47.88 %
- Crime Rate
- 16.00 %Unchanged by 0.00 %
Agent Activity
Jenkinson Estates marked this listing as sold.
Jenkinson Estates created the listing.
Nearby Schools
| Name | Type | Ofsted | Distance |
|---|---|---|---|
| Sandown School | Academy Converter | 0.29 KM | |
| Brewood Secondary School | Other Independent Special School | Good | 1.44 KM |
| Goodwin Academy | Academy Sponsor Led | 1.96 KM | |
| Deal Parochial Church Of England Primary School | Academy Converter | 2.10 KM | |
| Warden House Primary School | Academy Converter | Outstanding | 2.38 KM |
Images
Nearby Streets
| Name | Average Price | Average Sqft | Distance |
|---|---|---|---|
| Sandown Court | £ 0 | 0 | 0.00 KM |
| Peter Street | £ 0 | 0 | 0.00 KM |
| Dibdin Road | £ 0 | 0 | 0.00 KM |
| Hengist Road | £ 0 | 0 | 0.00 KM |
| Lydden Close | £ 380,833 | 0 | 0.00 KM |
Nearby Transport
| Name | NLC | TLC | Distance |
|---|---|---|---|
| Deal | 5011 | DEA | 0.96 KM |
| Walmer | 5041 | WAM | 3.63 KM |
| Sandwich | 5026 | SDW | 7.56 KM |
| Martin Mill | 5040 | MTM | 8.81 KM |
Nearby Listings
| Address | Price | Type | Score | Distance |
|---|---|---|---|---|
| Golf Road, Deal, CT14 | £ 695,000 | BUY | 6 / 10 | 0.00 KM |
| Golf Road, Deal, CT14 | £ 440,000 | BUY | 7 / 10 | 0.03 KM |
| Golf Road, Deal, Kent, CT14 | £ 300,000 | BUY | Unknown | 0.03 KM |
| Golf Road, Deal, CT14 | £ 210,000 | BUY | 6 / 10 | 0.06 KM |
| Golf Road, Deal, CT14 | £ 335,000 | BUY | 7 / 10 | 0.06 KM |
Nearby Properties
| Address | Price | Distance |
|---|---|---|
| 58 Golf Road | £ 235,000 | 0.05 KM |
| 56 Golf Road | £ 390,000 | 0.05 KM |
| 62 Golf Road | £ 225,000 | 0.05 KM |
| 82 Golf Road | £ 123,000 | 0.05 KM |
| 77 Golf Road | £ 195,000 | 0.07 KM |