Burnham Road, Knaphill, Woking, Surrey, GU21
By Seymours Estate Agents
£ 525,000
Reviews
3 out of 5 stars
Seymours Estate Agents says ..
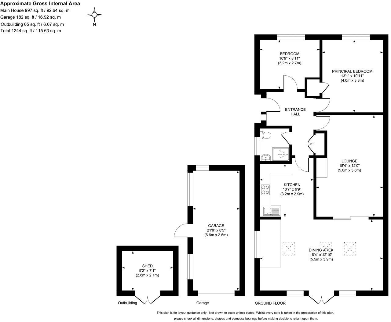
This beautifully presented and extended semi-detached bungalow offers spacious and versatile accommodation throughout, perfectly blending comfort and modern living and is offered to the market in excellent internal condition. The property features two generous double bedrooms and a modern fa...
Property Oracle says ..
This is a two-bedroom bungalow located on Burnham Road in Knaphill, Woking. The property is listed for £525,000. It features a modern interior, a garden with a shed, and a patio area. The property is located near local amenities and schools, with transportation links available via Brookwood train station. While generally well-maintained, some areas could benefit from updates. The price is within the range of nearby listings, but the price per square foot is higher than average.
Therefore, we give this property 6 / 10. *Disclaimer: This is our option and does constitute a recommendation or financial advice. Do your own research. *
- Price
- 6
- Condition
- 7
- Location
- 7
- Land
- 6
- Bedrooms
- 2
- Bathrooms
- 1
- Sqft (est)
- 3,733.89
The heatmap indicates the level of crime in the area. The color of the heatmap indicates the crime severity and recency.
Metrics Year-on-Year
- Average area value
- 586,400.00 £Increased by 18.76 %
- Est sale value
- 1,777,331.64 £Increased by 6.01 %
- Average area rental value
- 2,150.00 £/moIncreased by 9.47 %
- Est letting value
- 3,733.89 £/moUnchanged by 0.00 %
- Est rental Yield
- 4.40 %Decreased by 7.76 %
- Crime Rate
- 5.00 %Unchanged by 0.00 %
Agent Activity
Seymours Estate Agents created the listing.
Nearby Schools
| Name | Type | Ofsted | Distance |
|---|---|---|---|
| St John'S Primary School | Academy Sponsor Led | Requires improvement | 0.34 KM |
| St John'S Primary School And Sure Start Children'S Centre | Children's Centre | 0.34 KM | |
| St Hugh Of Lincoln Catholic Primary School | Academy Converter | Good | 0.49 KM |
| The Oaktree School | Academy Converter | 0.71 KM | |
| The Hermitage School | Academy Converter | Good | 0.80 KM |
Images
Nearby Streets
| Name | Average Price | Average Sqft | Distance |
|---|---|---|---|
| Beechwood Close | £ 0 | 0 | 0.00 KM |
| Elmgrove Close | £ 425,000 | 0 | 0.00 KM |
| Oakway | £ 475,000 | 0 | 0.00 KM |
| Oakwood Road | £ 0 | 0 | 0.00 KM |
| Rose Lodge | £ 0 | 0 | 0.00 KM |
Nearby Transport
| Name | NLC | TLC | Distance |
|---|---|---|---|
| Brookwood | 5687 | BKO | 3.14 KM |
| Worplesdon | 5686 | WPL | 4.26 KM |
| Woking | 5685 | WOK | 5.88 KM |
| Longcross | 5674 | LNG | 7.91 KM |
| Sunningdale | 5671 | SNG | 8.85 KM |
Nearby Listings
| Address | Price | Type | Score | Distance |
|---|---|---|---|---|
| Burnham Road, Knaphill, Woking, Surrey, GU21 | £ 525,000 | BUY | 6 / 10 | 0.00 KM |
| Burnham Road, Knaphill, Woking, Surrey, GU21 | £ 485,000 | BUY | 7 / 10 | 0.01 KM |
| Burnham Road, Knaphill, Woking, Surrey, GU21 | £ 439,950 | BUY | 6 / 10 | 0.04 KM |
| Victoria Road, Knaphill, Woking, Surrey, GU21 | £ 425,000 | BUY | 6 / 10 | 0.07 KM |
| Clinton Close, Knaphill, Woking, GU21 | £ 550,000 | BUY | 6 / 10 | 0.14 KM |
Nearby Properties
| Address | Price | Distance |
|---|---|---|
| 29 Burnham Road | £ 239,950 | 0.01 KM |
| 19 Burnham Road | £ 275,000 | 0.01 KM |
| 39 Burnham Road | £ 399,950 | 0.01 KM |
| 6 Burnham Road | £ 300,000 | 0.01 KM |
| 31 Burnham Road | £ 354,000 | 0.01 KM |