Arins says ..
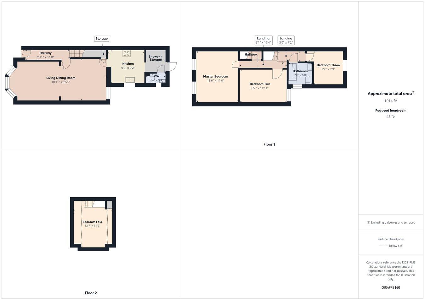
This stunning and recently renovated four-bedroom property is presented in exceptional condition and perfectly located within easy reach of Reading Town Centre, Reading Station, and local shops and amenities. The home features a welcoming entrance hallway, separate reception and dining rooms, ...
Property Oracle says ..
This is a four-bedroom terraced house located on Audley Street, Reading. The property has two bathrooms and is 1,014 sqft. The property is located in a good location, close to schools and transport links. The property appears to be in generally good condition, with a modern interior. The property has a garden. The property is listed for £425,000, which is slightly above the average price for the area. Overall, this is a good property that would be suitable for families and commuters.
Therefore, we give this property 6 / 10. *Disclaimer: This is our option and does constitute a recommendation or financial advice. Do your own research. *
- Price
- 6
- Condition
- 7
- Location
- 7
- Land
- 6
- Bedrooms
- 4
- Bathrooms
- 2
- Sqft (est)
- 1,014.00
The heatmap indicates the level of crime in the area. The color of the heatmap indicates the crime severity and recency.
Metrics Year-on-Year
- Average area value
- 317,000.00 £Increased by 3.08 %
- Est sale value
- 492,804.00 £Increased by 24.94 %
- Average area rental value
- 1,341.00 £/moIncreased by 9.47 %
- Est letting value
- 2,028.00 £/moIncreased by 100.00 %
- Est rental Yield
- 5.08 %Increased by 6.28 %
- Crime Rate
- 21.00 %Unchanged by 0.00 %
Agent Activity
Arins created the listing.
Nearby Schools
| Name | Type | Ofsted | Distance |
|---|---|---|---|
| St Edward'S Prep | Other Independent School | 0.65 KM | |
| Battle Primary Academy | Academy Sponsor Led | Good | 0.67 KM |
| Cranbury College | Academy Alternative Provision Converter | 0.77 KM | |
| Oxford Road Community School | Community School | Good | 0.81 KM |
| All Saints Church Of England Aided Infant School | Voluntary Aided School | Good | 0.93 KM |
Images
Nearby Streets
| Name | Average Price | Average Sqft | Distance |
|---|---|---|---|
| Connaught Road | £ 0 | 0 | 0.00 KM |
| Josephine Court | £ 0 | 0 | 0.00 KM |
| Richmond Road | £ 350,000 | 0 | 0.00 KM |
| Stanley Grove | £ 0 | 0 | 0.00 KM |
| Monck Court | £ 0 | 0 | 0.00 KM |
Nearby Transport
| Name | NLC | TLC | Distance |
|---|---|---|---|
| Reading West | 3160 | RDW | 0.50 KM |
| Reading | 3149 | RDG | 2.43 KM |
| Tilehurst | 3154 | TLH | 4.25 KM |
| Earley | 5694 | EAR | 8.60 KM |
| Theale | 3153 | THE | 9.38 KM |
Nearby Listings
| Address | Price | Type | Score | Distance |
|---|---|---|---|---|
| Audley Street, Reading, RG30 | £ 425,000 | BUY | 6 / 10 | 0.00 KM |
| Audley Street, Reading, RG30 | £ 360,000 | BUY | Unknown | 0.00 KM |
| Audley Street, Reading | £ 350,000 | BUY | 6 / 10 | 0.01 KM |
| Nightingale Way, Reading, Berkshire, RG30 | £ 500,000 | BUY | 6 / 10 | 0.06 KM |
| Curzon Street, Reading, Berkshire, RG30 | £ 350,000 | BUY | 7 / 10 | 0.07 KM |
Nearby Properties
| Address | Price | Distance |
|---|---|---|
| 105 Audley Street | £ 360,000 | 0.01 KM |
| 58 Audley Street | £ 330,000 | 0.01 KM |
| 119 Audley Street | £ 347,000 | 0.01 KM |
| 97 Audley Street | £ 117,000 | 0.01 KM |
| 79 Audley Street | £ 255,000 | 0.01 KM |