AR
Plot 17, Cherry Trees, Boston Road, Gosberton
By Ark Property Centre
£ 550,000
Reviews
4 out of 5 stars
Ark Property Centre says ..
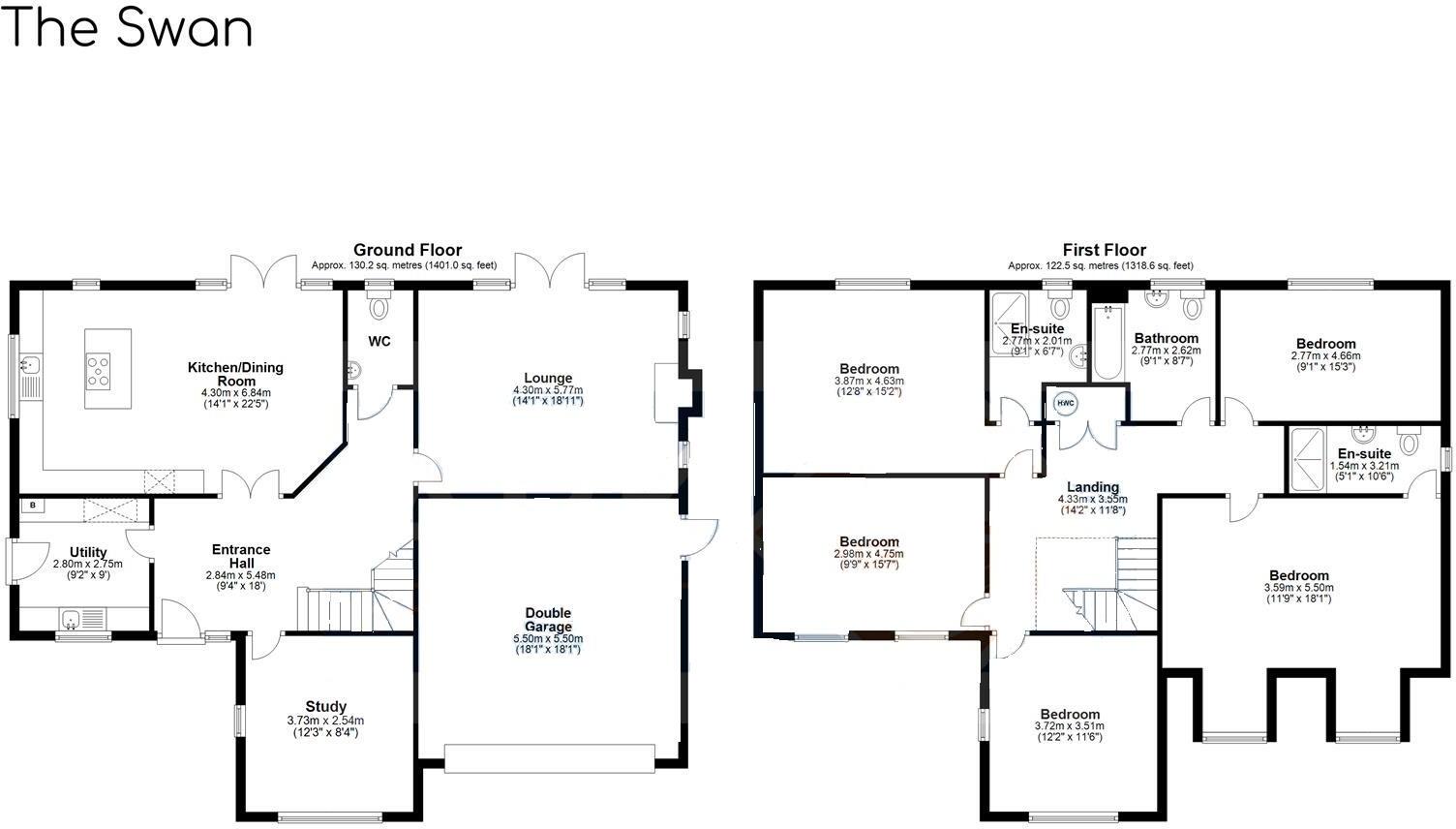
Welcome to Cherry Trees - A unique development by Emerald Homes, offering an exclusive collection of high-specification properties in the village of Gosberton, located in the heart of South Holland. Specifically designed and built to create a rural cul-de-sac, these homes provide the per...
Property Oracle says ..
Therefore, we give this property 8 / 10. *Disclaimer: This is our option and does constitute a recommendation or financial advice. Do your own research. *
- Price
- 6
- Condition
- 9
- Location
- 7
- Land
- 10
- Bedrooms
- 5
- Bathrooms
- 3
- Sqft (est)
- 2,130.29
- Lot (est)
- 15,080.24
The heatmap indicates the level of crime in the area. The color of the heatmap indicates the crime severity and recency.
Metrics Year-on-Year
- Average area value
- 291,975.00 £Decreased by 0.13 %
- Est sale value
- 566,657.14 £Increased by 20.91 %
- Average area rental value
- 650.00 £/moDecreased by 26.39 %
- Est letting value
- 0.00 £/mo
- Est rental Yield
- 2.67 %Decreased by 26.24 %
- Crime Rate
- 0.00 %
from 292,354.00 £
from 468,663.80 £
from 883.00 £/mo
from 0.00 £/mo
from 3.62 %
from 0.00 %
Agent Activity
Ark Property Centre created the listing.
Nearby Schools
| Name | Type | Ofsted | Distance |
|---|---|---|---|
| Gosberton Academy | Academy Converter | Requires improvement | 0.48 KM |
| Gosberton House Academy | Academy Special Converter | Outstanding | 1.42 KM |
| Surfleet Primary School | Academy Sponsor Led | 3.74 KM | |
| Quadring Cowley & Brown'S Primary School | Voluntary Controlled School | Good | 4.17 KM |
| The Pinchbeck East Church Of England Primary Academy | Academy Converter | 6.02 KM |
Images
Nearby Streets
| Name | Average Price | Average Sqft | Distance |
|---|---|---|---|
| York Gardens | £ 0 | 0 | 0.00 KM |
Nearby Transport
| Name | NLC | TLC | Distance |
|---|---|---|---|
| Spalding | 6388 | SPA | 8.85 KM |
Nearby Listings
| Address | Price | Type | Score | Distance |
|---|---|---|---|---|
| Plot 17, Cherry Trees, Boston Road, Gosberton | £ 550,000 | BUY | 8 / 10 | 0.00 KM |
| Plot 7, Cherry Trees, Boston Road, Gosberton | £ 550,000 | BUY | 7 / 10 | 0.03 KM |
| Plot 18 The Mallard, Cherry Trees, Gosberton | £ 485,000 | BUY | 7 / 10 | 0.04 KM |
| Platinum Close, Gosberton, Spalding | £ 289,950 | BUY | 8 / 10 | 0.10 KM |
| Plot 19, Cherry Trees, Boston Road, Gosberton | £ 510,000 | BUY | 7 / 10 | 0.16 KM |
Nearby Properties
| Address | Price | Distance |
|---|---|---|
| The Bungalow | £ 134,250 | 0.03 KM |
| Orchard House | £ 385,000 | 0.03 KM |
| Fairholme | £ 177,500 | 0.03 KM |
| Peachwood | £ 298,500 | 0.35 KM |
| Fairview | £ 359,000 | 0.35 KM |