Goodfellows says ..
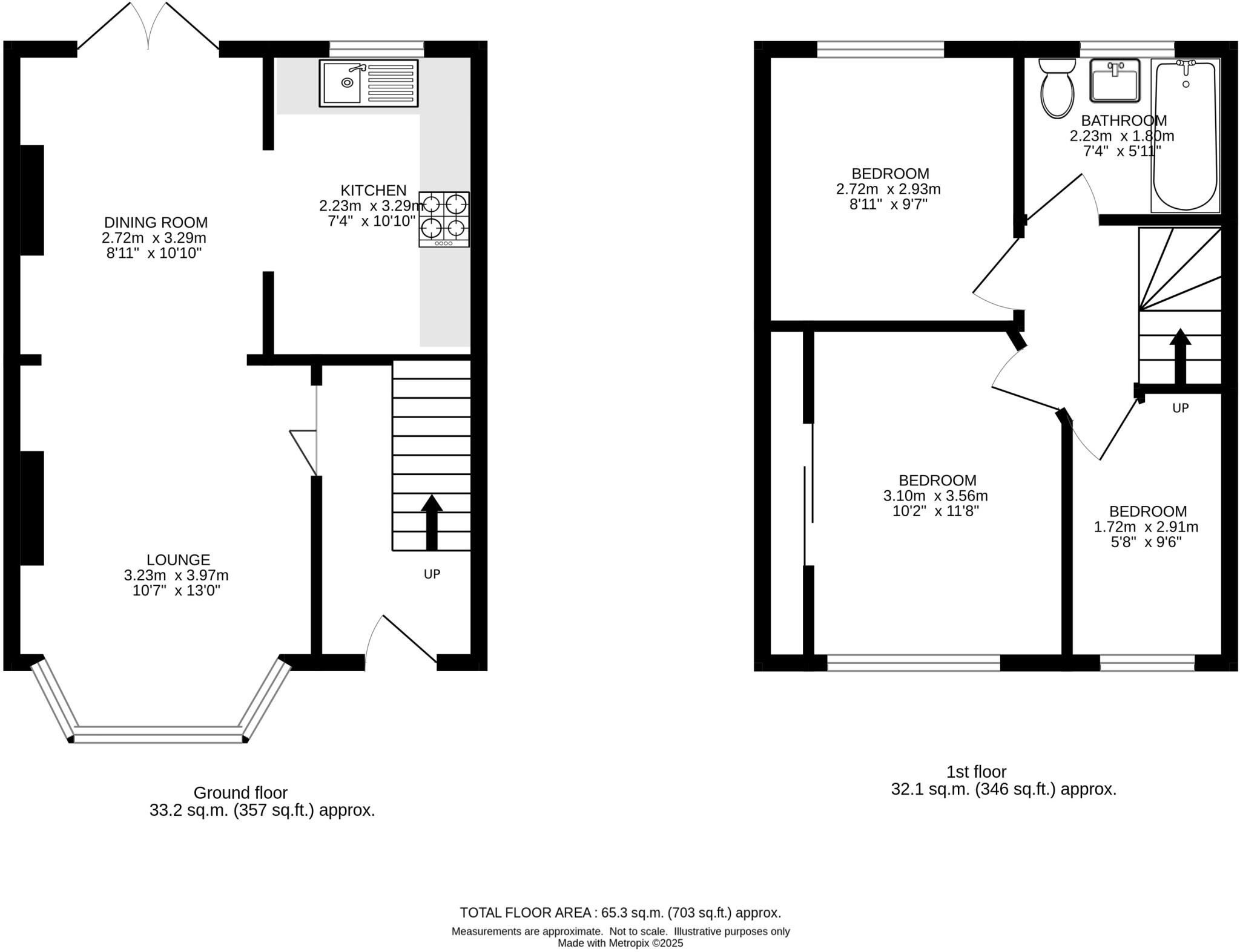
Offered to the market in good condition and with the vendor suited, is this well presented three bedroom end of terraced home. The current vendors have planning permission for not only a rear extension, but also an outbuilding. Currently, the accommodation available is a welcoming ent...
Property Oracle says ..
This end-of-terrace property on Kingsbridge Road, Lower Morden, offers three bedrooms and one bathroom. The house is in a traditional style and appears to be in generally good condition, although some modernisation could enhance its appeal. The property benefits from a garden, providing outdoor space. Located in a suburban area of London, it is conveniently close to schools and transportation links. The asking price of £550,000 is within the range of similar properties in the area, making it a reasonable option for potential buyers looking for a family home in a well-connected location.
Therefore, we give this property 6 / 10. *Disclaimer: This is our option and does constitute a recommendation or financial advice. Do your own research. *
- Price
- 7
- Condition
- 7
- Location
- 7
- Land
- 6
- Bedrooms
- 3
- Bathrooms
- 1
- Sqft (est)
- 702.88
The heatmap indicates the level of crime in the area. The color of the heatmap indicates the crime severity and recency.
Metrics Year-on-Year
- Average area value
- 575,778.00 £Increased by 14.54 %
- Est sale value
- 354,954.40 £Decreased by 6.48 %
- Average area rental value
- 2,096.00 £/moDecreased by 8.39 %
- Est letting value
- 702.88 £/moDecreased by 50.00 %
- Est rental Yield
- 4.37 %Decreased by 19.96 %
- Crime Rate
- 10.00 %Unchanged by 0.00 %
Agent Activity
Goodfellows created the listing.
Nearby Schools
| Name | Type | Ofsted | Distance |
|---|---|---|---|
| Aragon Primary School | Academy Converter | Good | 0.45 KM |
| Lower Morden Children'S Centre | Children's Centre Linked Site | 0.52 KM | |
| St Cecilia'S Catholic Primary School | Voluntary Aided School | Outstanding | 0.79 KM |
| Brookfield Primary Academy | Academy Converter | Good | 0.81 KM |
| Green Oak Children'S Centre (Formally Nonsuch And Cheam Sure Start Children'S Centre) | Children's Centre | 0.86 KM |
Images
Nearby Streets
| Name | Average Price | Average Sqft | Distance |
|---|---|---|---|
| Trafalgar Avenue | £ 396,250 | 0 | 0.00 KM |
| Stanton Close | £ 0 | 0 | 0.00 KM |
| Westbourne Avenue | £ 1,990,000 | 0 | 0.00 KM |
| Pig Farm Alley | £ 0 | 0 | 0.00 KM |
| Essex Close | £ 0 | 0 | 0.00 KM |
Nearby Transport
| Name | NLC | TLC | Distance |
|---|---|---|---|
| Motspur Park | 5645 | MOT | 2.38 KM |
| St Helier | 5290 | SIH | 2.52 KM |
| South Merton | 5292 | SMO | 2.69 KM |
| Morden South | 5291 | MDS | 2.70 KM |
| Worcester Park | 5579 | WCP | 2.71 KM |
Nearby Listings
| Address | Price | Type | Score | Distance |
|---|---|---|---|---|
| Kingsbridge Road, Morden, SM4 | £ 550,000 | BUY | 6 / 10 | 0.00 KM |
| Kingsbridge Road, Morden, SM4 | £ 565,000 | BUY | 6 / 10 | 0.07 KM |
| Lynmouth Avenue, Morden, SM4 | £ 625,000 | BUY | 7 / 10 | 0.08 KM |
| Kingsbridge Road, Morden | £ 500,000 | BUY | 7 / 10 | 0.10 KM |
| Kingsbridge Road, Morden, SM4 | £ 625,000 | BUY | 7 / 10 | 0.11 KM |
Nearby Properties
| Address | Price | Distance |
|---|---|---|
| 177 Kingsbridge Road | £ 440,000 | 0.06 KM |
| 171 Kingsbridge Road | £ 306,250 | 0.06 KM |
| 135 Kingsbridge Road | £ 235,500 | 0.06 KM |
| 85 Kingsbridge Road | £ 275,000 | 0.06 KM |
| 107 Kingsbridge Road | £ 385,000 | 0.06 KM |