Balmoral Road, Wordsley, Stourbridge
TH

Balmoral Road, Wordsley, Stourbridge

By The Lee Shaw Partnership

£ 290,000

Reviews

3 out of 5 stars

The Lee Shaw Partnership says ..

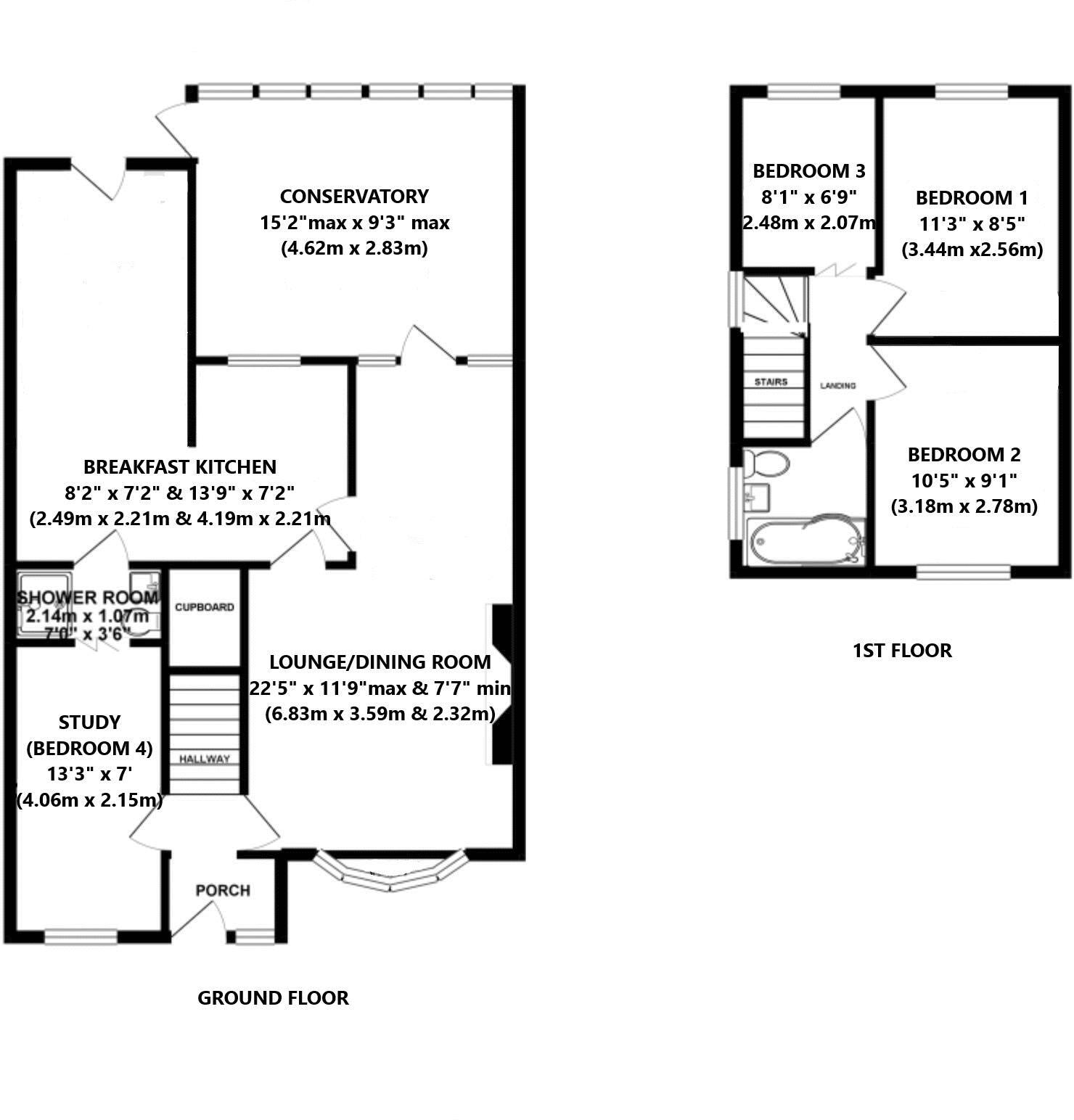
This improved and well appointed, 3 Bedroom Semi-detached property is surprisingly spacious and warrants a full inspection to truly appreciate benefitting from a Garage Conversion (with flexible use as a Study or 4th Bedroom with Shower Room off) and there is also a large Rear Conservatory furthe...

Property Oracle says ..

This three-bedroom semi-detached house in Wordsley, Dudley, is listed at £290,000. The property benefits from a modern extension and has been recently updated, presenting in excellent condition. The average house price in the area is £266,010, with an average price per square foot of £276. This property is slightly above average in terms of price, but its modern updates and good condition may justify the higher cost. The plot size is not specified, but the images show a well-maintained and sizable rear garden with a patio and decking area, suggesting a good land score. The location is in Wordsley, a suburb of Stourbridge, offering proximity to local amenities and schools. Train stations are within reasonable distance. Overall, this property seems to be a well-maintained and updated home in a convenient location, though the lack of plot size information makes a definitive assessment of value difficult.

Therefore, we give this property 7 / 10. *Disclaimer: This is our option and does constitute a recommendation or financial advice. Do your own research. *

Price
7
Condition
9
Location
7
Land
7
Bedrooms
3
Bathrooms
1
Sqft (est)
910.95

The heatmap indicates the level of crime in the area. The color of the heatmap indicates the crime severity and recency.

Metrics Year-on-Year

Average area value
260,247.00 £
Increased by 8.41 %
from 240,064.00 £
Est sale value
234,114.15 £
Increased by 7.08 %
from 218,628.00 £
Average area rental value
1,136.00 £/mo
Increased by 16.51 %
from 975.00 £/mo
Est letting value
910.95 £/mo
from 0.00 £/mo
Est rental Yield
5.24 %
Increased by 7.60 %
from 4.87 %
Crime Rate
5.00 %
Unchanged by 0.00 %
from 5.00 %

Agent Activity

  • The Lee Shaw Partnership created the listing.

Nearby Schools

NameTypeOfstedDistance
Wordsley Children'S CentreChildren's Centre0.52 KM
Belle Vue Primary SchoolCommunity SchoolGood0.52 KM
Ashwood Park Primary SchoolCommunity SchoolGood0.88 KM
Fairhaven Primary SchoolCommunity SchoolRequires improvement1.21 KM
St James'S Cofe Primary SchoolVoluntary Aided SchoolGood1.29 KM

Images

FRONT CONSERVATORY LOUNGE/DINING ROOM LOUNGE/DINING ROOM LOUNGE/DINING ROOM BREAKFAST KITCHEN CONSERVATORY CONSERVATORY GROUND FLOOR SHOWER ROOM HALL HALL LOUNGE/DINING ROOM BREAKFAST KITCHEN BREAKFAST KITCHEN BREAKFAST KITCHEN BREAKFAST KITCHEN CONSERVATORY STUDY/BEDROOM 4 STUDY/BEDROOM 4 BEDROOM 2 BEDROOM 2 BEDROOM 2 BEDROOM 3 BEDROOM 1 STUDY/BEDROOM 4 LANDING BEDROOM 1 BEDROOM 1 BEDROOM 1 BEDROOM 3 BATHROOM BATHROOM REAR GARDEN REAR GARDEN REAR GARDEN REAR GARDEN REAR GARDEN REAR GARDEN REAR GARDEN REAR GARDEN REAR GARDEN REAR GARDEN

Nearby Streets

NameAverage PriceAverage SqftDistance
Woodstock Close £ 325,00000.00 KM
Meadow Way £ 000.00 KM
Helston Close £ 258,50000.00 KM
Kenilworth Close £ 240,00000.00 KM
Newbury Road £ 000.00 KM

Nearby Transport

NameNLCTLCDistance
Stourbridge Town4643SBT4.18 KM
Stourbridge Junction4646SBJ5.41 KM
Lye (West Midlands)4640LYE6.59 KM
Hagley4577HAG6.70 KM
Blakedown4574BKD7.82 KM

Nearby Listings

AddressPriceTypeScoreDistance
Balmoral Road, Wordsley, Stourbridge £ 290,000BUY7 / 100.00 KM
WORDSLEY, Woodstock Drive £ 290,000BUYUnknown0.08 KM
Balmoral Road, Wordsley £ 289,950BUY7 / 100.15 KM
Arundel Road, Wordsley, DY8 5EQ £ 285,000BUY7 / 100.16 KM
Arundel Road, Stourbridge £ 285,000BUY7 / 100.19 KM

Nearby Properties

AddressPriceDistance
65 Balmoral Road £ 215,0000.06 KM
84 Balmoral Road £ 147,0000.06 KM
55 Balmoral Road £ 159,9500.06 KM
63 Balmoral Road £ 175,0000.06 KM
61 Balmoral Road £ 235,0000.06 KM